Vuokrataan tuotantotilat - Oulu
Voudintie 1, Limingantulli, 90400 Oulu #10849443
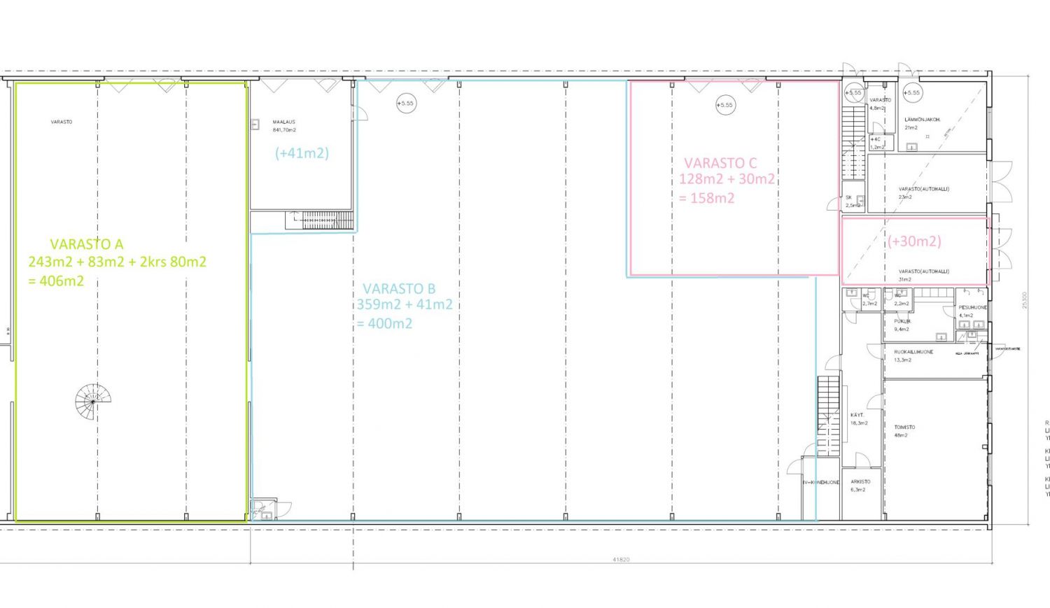
Halli- tuotantotila 406 m2
Osoite
Voudintie 1, 90400 Oulu
Tilatyyppi
Tuotantotilaa
406 m2
Kiinteistö
Vuokrattavana
Limingantullissa on vapaana vuokrattavaksi halli-, varasto- ja tuotantotilaa.
Halli A: yhteensä 406 m². Sisältää taukotilat kahdessa kerroksessa sekä kaksi toimistohuonetta.
Rakennuksen päädyssä on vuokrattavana toimistotila 369 m2, jossa on useampi toimistohuone, kokous- ja saunatilat.
Sijainti
Kiinteistö sijaitsee erinomaisella paikalla Limingantullissa n. kolme kilometriä Oulun keskustasta. Alueella on paljon kaupallista ja teollista toimintaa, mikä tuo alueelle asiakasvirtaa. Uusittua Poikkimaantietä pitkin pääset kätevästi E8-moottoritielle ja sitä kautta ympäri Oulun seutua.
Tästä huippupaikalta toimiva ja viihtyisä tukikohta yrityksellesi. Ota yhteyttä, niin mennään paikan päälle suunnittelemaan juuri sinulle sopiva tilaratkaisu.
Limingantullissa on vapaana vuokrattavaksi halli-, varasto- ja tuotantotilaa.
Halli A: yhteensä 406 m². Sisältää taukotilat kahdessa kerroksessa sekä kaksi toimistohuonetta.
Rakennuksen päädyssä on vuokrattavana toimistotila 369 m2, jossa on useampi toimistohuone, kokous- ja saunatilat.
Sijainti
Kiinteistö sijaitsee erinomaisella paikalla Limingantullissa n. kolme kilometriä Oulun keskustasta. Alueella on paljon kaupallista ja teollista toimintaa, mikä tuo alueelle asiakasvirtaa. Uusittua Poikkimaantietä pitkin pääset kätevästi E8-moottoritielle ja sitä kautta ympäri Oulun seutua.
Tästä huippupaikalta toimiva ja viihtyisä tukikohta yrityksellesi. Ota yhteyttä, niin mennään paikan päälle suunnittelemaan juuri sinulle sopiva tilaratkaisu.
Vapautuu
Kysy
Ota yhteyttä
Logistila Oy
Kiilakiventie 1, 90250 OULU
Sami Karppinen
Näytä puhelinnumero
+358401994722
Pyydä lisätietoa
