Vuokrataan tuotantotilat - Oulu
Voudintie 1, Limingantulli, 90400 Oulu #10849442
Halli- tuotantotila 806 m2
Osoite
Voudintie 1, 90400 Oulu
Tilatyyppi
Tuotantotilaa
806 m2
Kiinteistö
Vuokrattavana
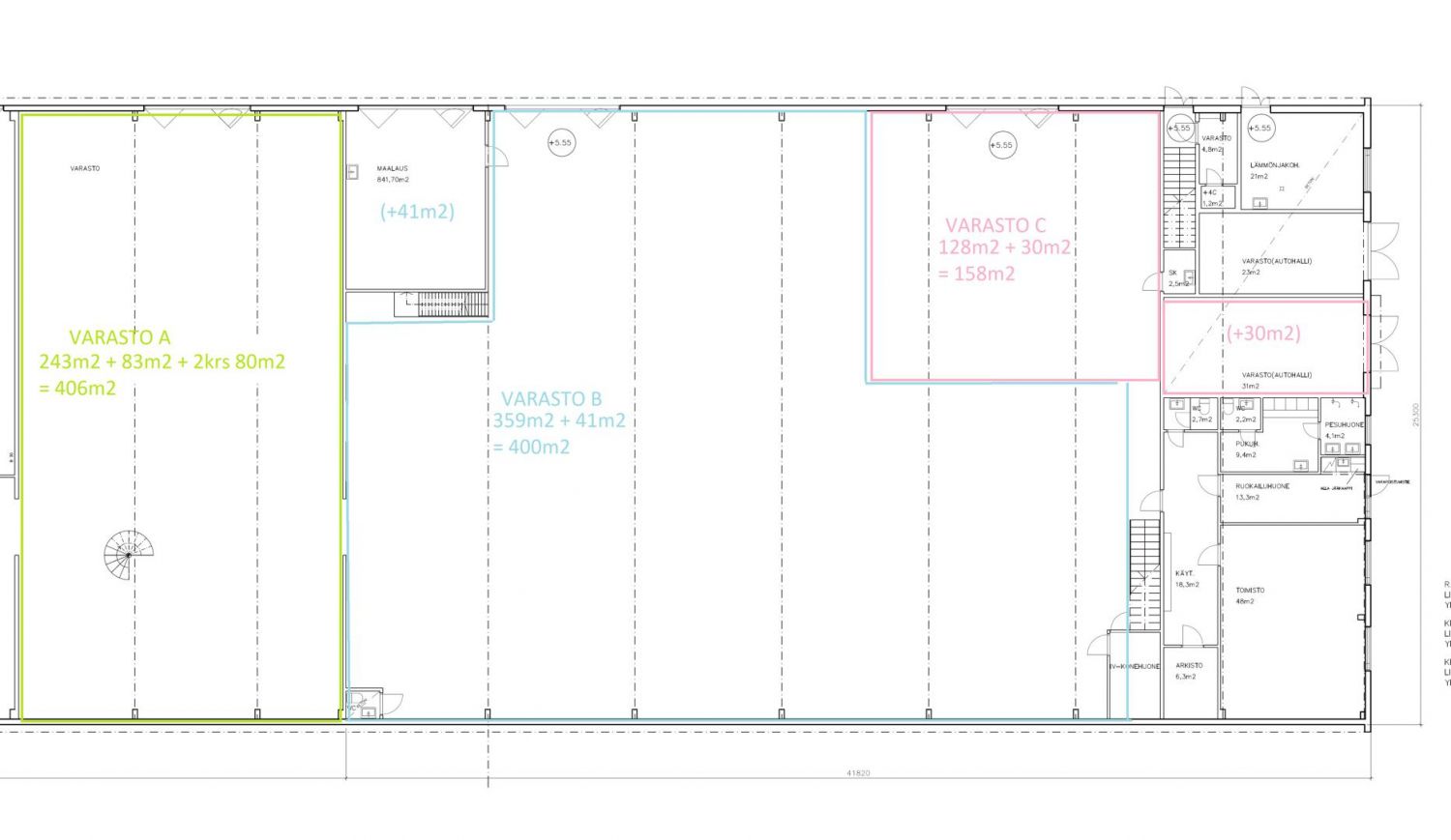
Limingantullissa on vapaana vuokrattavaksi halli-, varasto- ja tuotantotilaa. Tilat ovat jaettavissa pienempiin kokonaisuuksiin alkaen 128 m².
Halli A: yhteensä 406 m². Sisältää taukotilat kahdessa kerroksessa sekä kaksi toimistohuonetta.
Halli B: 359 m² yhtenäistä tilaa sekä lisäksi 41 m² erillinen varasto. Tilassa on yksi WC ja siltanosturi.
Halli C: 128 m², johon sisältyy myös 30 m² erillinen varastotila sekä WC.
Rakennuksen päädyssä on vuokrattavana toimistotila 369 m2, jossa on useampi toimistohuone, kokous- ja saunatilat.
Sijainti
Kiinteistö sijaitsee erinomaisella paikalla Limingantullissa n. kolme kilometriä Oulun keskustasta. Alueella on paljon kaupallista ja teollista toimintaa, mikä tuo alueelle asiakasvirtaa. Uusittua Poikkimaantietä pitkin pääset kätevästi E8-moottoritielle ja sitä kautta ympäri Oulun seutua.
Tästä huippupaikalta toimiva ja viihtyisä tukikohta yrityksellesi. Ota yhteyttä, niin mennään paikan päälle suunnittelemaan juuri sinulle sopiva tilaratkaisu.
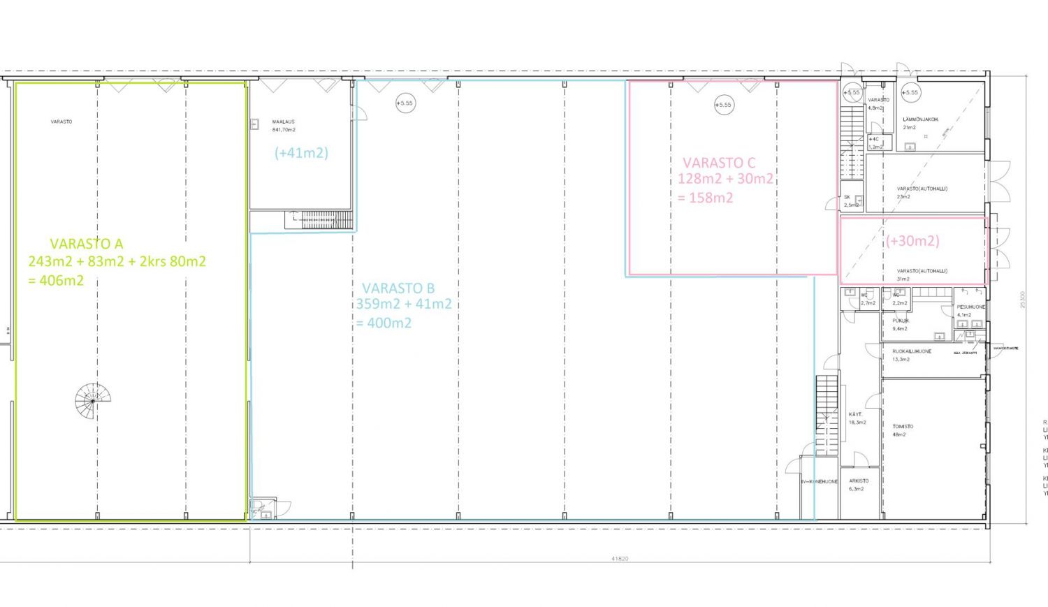
Limingantullissa on vapaana vuokrattavaksi halli-, varasto- ja tuotantotilaa. Tilat ovat jaettavissa pienempiin kokonaisuuksiin alkaen 128 m².
Halli A: yhteensä 406 m². Sisältää taukotilat kahdessa kerroksessa sekä kaksi toimistohuonetta.
Halli B: 359 m² yhtenäistä tilaa sekä lisäksi 41 m² erillinen varasto. Tilassa on yksi WC ja siltanosturi.
Halli C: 128 m², johon sisältyy myös 30 m² erillinen varastotila sekä WC.
Rakennuksen päädyssä on vuokrattavana toimistotila 369 m2, jossa on useampi toimistohuone, kokous- ja saunatilat.
Sijainti
Kiinteistö sijaitsee erinomaisella paikalla Limingantullissa n. kolme kilometriä Oulun keskustasta. Alueella on paljon kaupallista ja teollista toimintaa, mikä tuo alueelle asiakasvirtaa. Uusittua Poikkimaantietä pitkin pääset kätevästi E8-moottoritielle ja sitä kautta ympäri Oulun seutua.
Tästä huippupaikalta toimiva ja viihtyisä tukikohta yrityksellesi. Ota yhteyttä, niin mennään paikan päälle suunnittelemaan juuri sinulle sopiva tilaratkaisu.
Vapautuu
Kysy
Siltanosturi
Liitetiedostot
Ota yhteyttä
Logistila Oy
Kiilakiventie 1, 90250 OULU
Sami Karppinen
Näytä puhelinnumero
+358401994722
Pyydä lisätietoa
