Vuokrataan varastotilat - Kaarina
KOY Krossin Talliosake tila 8 – parvi, wc, Peltsaarenkatu 2, 20780 Kaarina #10849423
Suositulta Krossin Talliosakkeelta monikäyttöinen varasto, autotalli, harraste-, toimitila 8. Tilassa jo valmiina parvi sekä wc.
Osoite
Peltsaarenkatu 2, 20780 Kaarina
Tilatyyppi
Varastotilaa
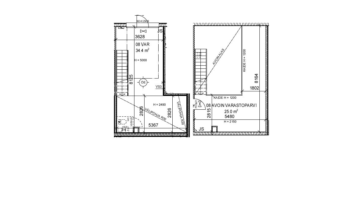
59 m2
Vuokra
570 € / kk
Kiinteistö
KOY Krossin Talliosake
Sijainti
Krossin Talliosake sijaitsee Kaarinassa, loistavien liikenneyhteyksien varrella Helsingin valtatie 1:n eteläisellä puolella. Skanssin laajat palvelut ovat vain noin kahden minuutin ajomatkan päässä ja Turun keskustaan ajomatkaa kertyy noin 10 minuuttia. Lisäksi aivan lähiympäristöstä löytyy paljon muita palveluita.
Muuta
Vain yksi tila vuokrattavana!
Tilan lattiapinta-ala on 34 m² ja parven 25 m². Yhteispinta-ala 59 m².
Moottoroitu nosto-ovi erillisellä käyntiovella. Autolla sisään ajettava tila. Tilamitat: 8,10 (Pituus) 3,60 (Leveys) 5,00 (Korkeus). Ovimitat: 2,50 (Leveys) 3,90 (Korkeus).
Käyttötarkoitusesimerkkejä: - toimitila - varastotila - yrityksen työtarvikevarasto / kalustovarasto - kimppatalli - harrastetila - bändikämppä - autotalli - moottoripyörätalli - mönkijätalli. Tila ei sovellu autokorjaamoksi eikä autopesulaksi.
Tila on sähkölämmitteinen. Vuokralainen tekee tilaan oman sähkösopimuksen. Vesi- ja sähkömaksu kulutuksen mukaan. Vakuus kahden kuukauden vuokraa vastaava määrä. Haetaan pitkäaikaista vuokralaista. Luottotiedot tarkistetaan.
Talliosake tuottaa joustavasti muunneltavia hallitiloja ympäri Suomen, joita yritykset ja yksityishenkilöt käyttävät tukikohtinaan erilaisille toiminnoille: yritys- ja liiketoimintaan, varastointiin sekä harrastuksiin.
Tilan lattiapinta-ala on 34 m² ja parven 25 m². Yhteispinta-ala 59 m².
Moottoroitu nosto-ovi erillisellä käyntiovella. Autolla sisään ajettava tila. Tilamitat: 8,10 (Pituus) 3,60 (Leveys) 5,00 (Korkeus). Ovimitat: 2,50 (Leveys) 3,90 (Korkeus).
Käyttötarkoitusesimerkkejä: - toimitila - varastotila - yrityksen työtarvikevarasto / kalustovarasto - kimppatalli - harrastetila - bändikämppä - autotalli - moottoripyörätalli - mönkijätalli. Tila ei sovellu autokorjaamoksi eikä autopesulaksi.
Tila on sähkölämmitteinen. Vuokralainen tekee tilaan oman sähkösopimuksen. Vesi- ja sähkömaksu kulutuksen mukaan. Vakuus kahden kuukauden vuokraa vastaava määrä. Haetaan pitkäaikaista vuokralaista. Luottotiedot tarkistetaan.
Talliosake tuottaa joustavasti muunneltavia hallitiloja ympäri Suomen, joita yritykset ja yksityishenkilöt käyttävät tukikohtinaan erilaisille toiminnoille: yritys- ja liiketoimintaan, varastointiin sekä harrastuksiin.
Vapautuu
Heti vapaa
Katutasossa
Näkyvällä paikalla
Ota yhteyttä
Talliosake Oy
Jani Sanevuori
Aluemyyntipäällikkö,
Etelä-Suomi, Vuokrauspalvelu, LVV
Näytä puhelinnumero
050 361 4814
Pyydä lisätietoa
