Vuokrataan toimistotilat, työtilat - Helsinki
Halmetie 7, Tapanila, 00730 Helsinki #10849384
Toimistotila Tapanilassa moneen käyttöön! Kuukausivuokrahinta 399 €/kk, alv-vapaa tila
Osoite
Halmetie 7, 00730 Helsinki
Tilatyyppi
Toimistotilaa
30 m2
Työtilaa
30 m2
Yhteensä
30 m2
Virtuaaliesittely
Vuokra
399 €/kk, alv-vapaa
Vuokraan sisältyy lämpö
Muuta
Peruskorjattu toimistotila vuokrattavissa Tapanilasta. Tila voidaan vuokrata myös yksityishenkilöille eli vuokra on arvonlisäverovapaa.
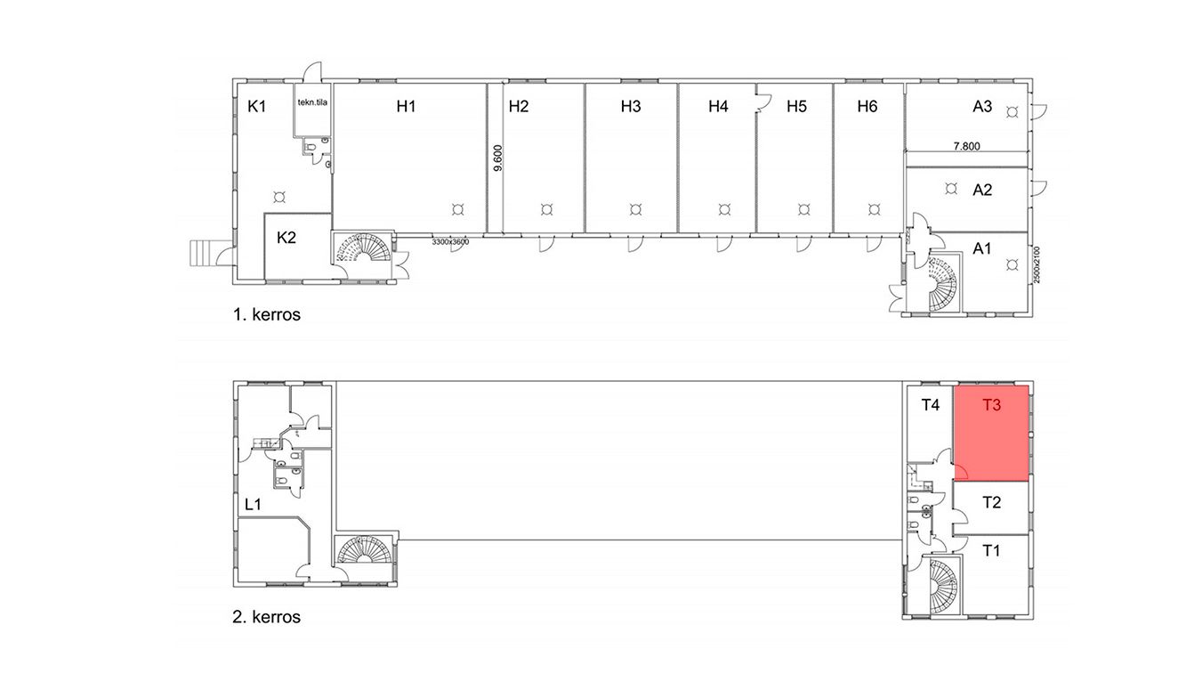
Tila sijaitsee rakennuksen toisessa kerroksessa. Huone ovat valoisia ja avara. Toimisto on pohjakuvassa merkittynä numero- ja kirjainyhdistelmällä T3. Tiloissa on yhteiset keittiö ja wc-tilat.
Hyvä toimisto vuokrattavana!
Kohdetiedot
Sijainti
Katuosoite: Halmetie 7, 00730 Helsinki
Kaupunginosa: Tapanila
Ympäristö: Teollisuus- ja asuinaluetta
Tontti
Pinta-ala: 1’527 m²
Omistusmuoto: Vuokratontti (sopimus voimassa 31.12.2040 asti)
Kiinteistötunnus: 91-39-124-16
Rakennus/huoneisto
Pinta-ala: Noin 30 m²
Rakennustyyppi: Hallirakennus
Rakennusvuosi: 1989
Huoneistoselitelmä: Toimistotila
Hissi: Ei
Kerros: 2/2
Lämmitys: Ilmakeskuslämmitys
Kunto, varusteet ja palvelut: Uudenveroiset, peruskorjatut tilat
Energiatodistus: Ei lain edellyttämää todistusta
Vapautuu: Heti vapaa
Pysäköinti: Pihalla
Vuokrahinta ja kulut
Kuukausivuokra: 399 €/kk, alv-vapaa
Sähkö- ja vesimaksu: Mittauksen mukaan
Lämmitys: Sisältyy vuokraan
Muuta: Vakuus 3kk vuokraa vastaava summa, minimisopimus 12kk ja luottotietojen on oltava kunnossa
Tila sijaitsee rakennuksen toisessa kerroksessa. Huone ovat valoisia ja avara. Toimisto on pohjakuvassa merkittynä numero- ja kirjainyhdistelmällä T3. Tiloissa on yhteiset keittiö ja wc-tilat.
Hyvä toimisto vuokrattavana!
Kohdetiedot
Sijainti
Katuosoite: Halmetie 7, 00730 Helsinki
Kaupunginosa: Tapanila
Ympäristö: Teollisuus- ja asuinaluetta
Tontti
Pinta-ala: 1’527 m²
Omistusmuoto: Vuokratontti (sopimus voimassa 31.12.2040 asti)
Kiinteistötunnus: 91-39-124-16
Rakennus/huoneisto
Pinta-ala: Noin 30 m²
Rakennustyyppi: Hallirakennus
Rakennusvuosi: 1989
Huoneistoselitelmä: Toimistotila
Hissi: Ei
Kerros: 2/2
Lämmitys: Ilmakeskuslämmitys
Kunto, varusteet ja palvelut: Uudenveroiset, peruskorjatut tilat
Energiatodistus: Ei lain edellyttämää todistusta
Vapautuu: Heti vapaa
Pysäköinti: Pihalla
Vuokrahinta ja kulut
Kuukausivuokra: 399 €/kk, alv-vapaa
Sähkö- ja vesimaksu: Mittauksen mukaan
Lämmitys: Sisältyy vuokraan
Muuta: Vakuus 3kk vuokraa vastaava summa, minimisopimus 12kk ja luottotietojen on oltava kunnossa
Vapautuu
Heti
Rakennusvuosi
1989
Kerros
2 / 2
Huoneiden lukumäärä
1
Ota yhteyttä
Tilat.fi
KTM, LKV Antti Soivio
Näytä puhelinnumero
0400 446 553
OTM, LKV Riikka Tuominen
Näytä puhelinnumero
0400 551 790
KTM, LKV Maria-Sofia Puhakka
Näytä puhelinnumero
0400-150330
HTM, LKV Aleksandra Riki
Näytä puhelinnumero
0400-211288
LKV Tilat.fi Oy on toimitilojen välitykseen erikoistunut yritys.
http://www.tilat.fiPyydä lisätietoa
