Vuokrataan toimistotilat - Helsinki
Museokatu 8, Keskusta, 00100 Helsinki #10849372
Upea kolmannen kerroksen 219,5 m² toimisto Mannerheimintien vieressä.
Osoite
Museokatu 8, 00100 Helsinki
Tilatyyppi
Toimistotilaa
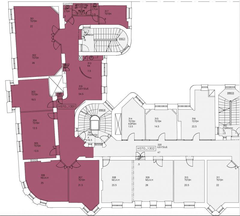
219,5 m2
Pohjapiirros
Kiinteistö
Saneeratussa arvokiinteistössä Museokadun ja Aurorankadun kulmassa vuokrattavissa hieno ja siisti kolmannen kerroksen toimisto. Tila on aiemmin toiminut asianajotoimistona. Tilassa on huoneita, omat wc-tilat ja siisti keittiö.
Kohde sijaitsee ydinkeskustan tuntumassa, hyvien julkisten ja yksityisten kulkuyhteyksien päässä.
Kaunis arvokiinteistö Helsingin Etu-Töölössä, aivan Eduskuntatalon vieressä. Kiinteistö sijaitsee aivan Mannerheimintien varressa ja sitä ympyröi kaksi kaunista puistoaluetta, Eduskunta- ja Museonpuisto.
Sijainti on loistava ja talolta on vain kivenheitto keskustan alueen palveluille. Mannerheimintietä kulkee useita raitiovaunu- bussilinjoja.
Vanha kiinteistö on teknisesti nykyajan tasalla ja tilat soveltuvat hyvin modernille toimijalle.
Rakennus on liitetty kaukolämpöverkkoon ja toimistohuoneistot on varustettu ilmanjäähdytyksellä. Rakennuksessa on hissi.
Metroasema 700 m, Raitiovaunupysäkki 100 m, Bussipysäkki 100 m, Juna-asema 500 m, Lentoasema 20 km
Kohde sijaitsee ydinkeskustan tuntumassa, hyvien julkisten ja yksityisten kulkuyhteyksien päässä.
Kaunis arvokiinteistö Helsingin Etu-Töölössä, aivan Eduskuntatalon vieressä. Kiinteistö sijaitsee aivan Mannerheimintien varressa ja sitä ympyröi kaksi kaunista puistoaluetta, Eduskunta- ja Museonpuisto.
Sijainti on loistava ja talolta on vain kivenheitto keskustan alueen palveluille. Mannerheimintietä kulkee useita raitiovaunu- bussilinjoja.
Vanha kiinteistö on teknisesti nykyajan tasalla ja tilat soveltuvat hyvin modernille toimijalle.
Rakennus on liitetty kaukolämpöverkkoon ja toimistohuoneistot on varustettu ilmanjäähdytyksellä. Rakennuksessa on hissi.
Metroasema 700 m, Raitiovaunupysäkki 100 m, Bussipysäkki 100 m, Juna-asema 500 m, Lentoasema 20 km
Vapautuu
Heti
Rakennusvuosi
1924
Kerros
3 / 5
Energiatehokkuusluokka
Ei lain edellyttämää energiatodistusta
Katutasossa
Näkyvällä paikalla
Hissi
Ota yhteyttä
ScanReal Oy LKV
Opus Business Park
Hitsaajankatu 24
00810 Helsinki
info@scanreal.fi
Puh:
Näytä puhelinnumero
020 730 8830
Sopivat toimitilat yhdellä otolla!
Kartoitamme toimitilatarpeesi ja etsimme yrityksellesi parhaiten sopivat vapaat toimitilat. Koska vuokranantajat maksavat palvelumme, on tämä yrityksellesi veloituksetonta.
OTA YHTEYTTÄ - SOVI NÄYTTÖ!
Kaikki kohteemme eivät ole netissä, kerro tilatarpeesi niin kartoitamme vaihtoehdot.
Palvelumme on tilanhakijalle ilmainen
Pyydä lisätietoa
