Vuokrataan toimistotilat - Helsinki
Mäkitorpantie 3, Oulunkylä, 00620 Helsinki #10849357
Tarpeen mukaan muunneltavaa modernia toimistotilaa Oulunkylässä
Osoite
Mäkitorpantie 3, 00620 Helsinki
Tilatyyppi
Toimistotilaa
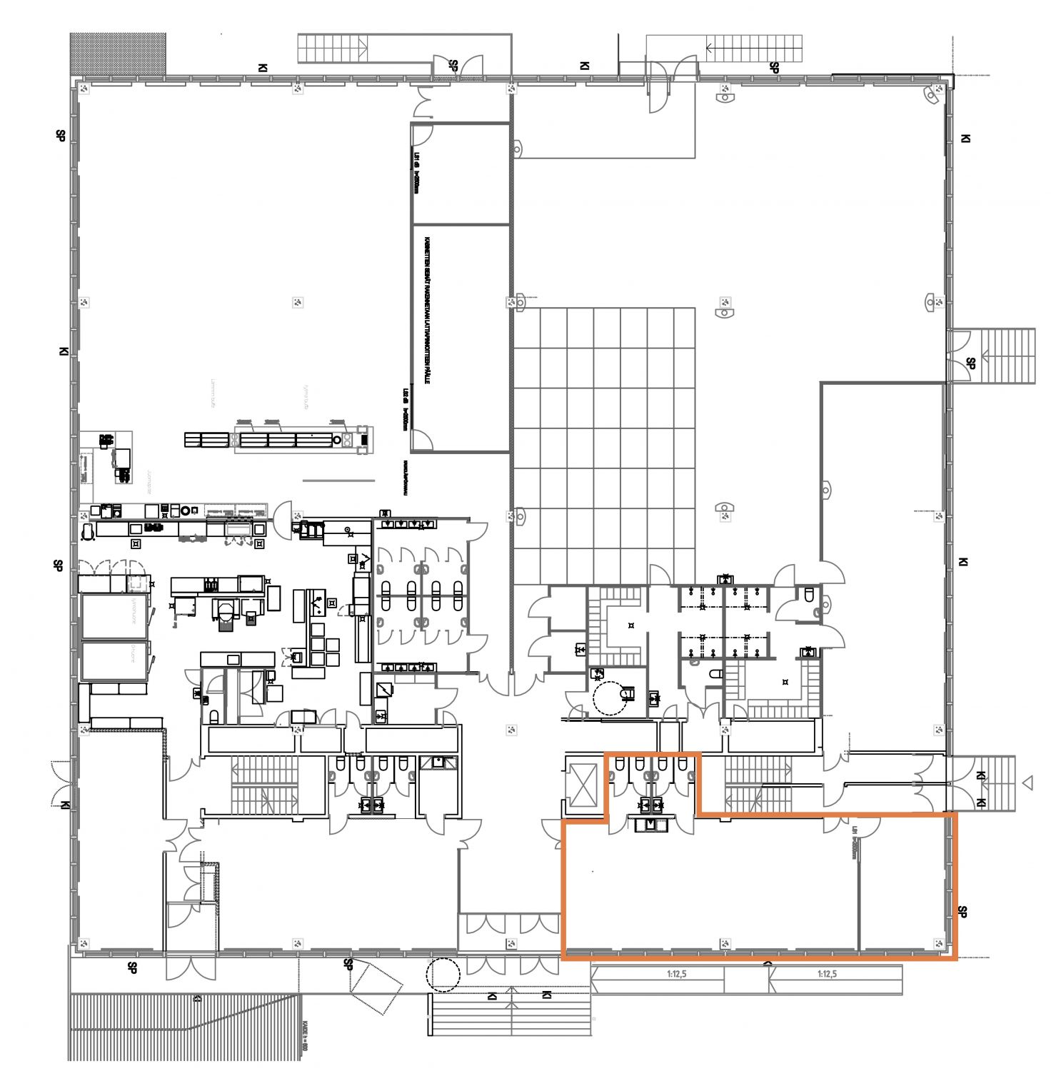
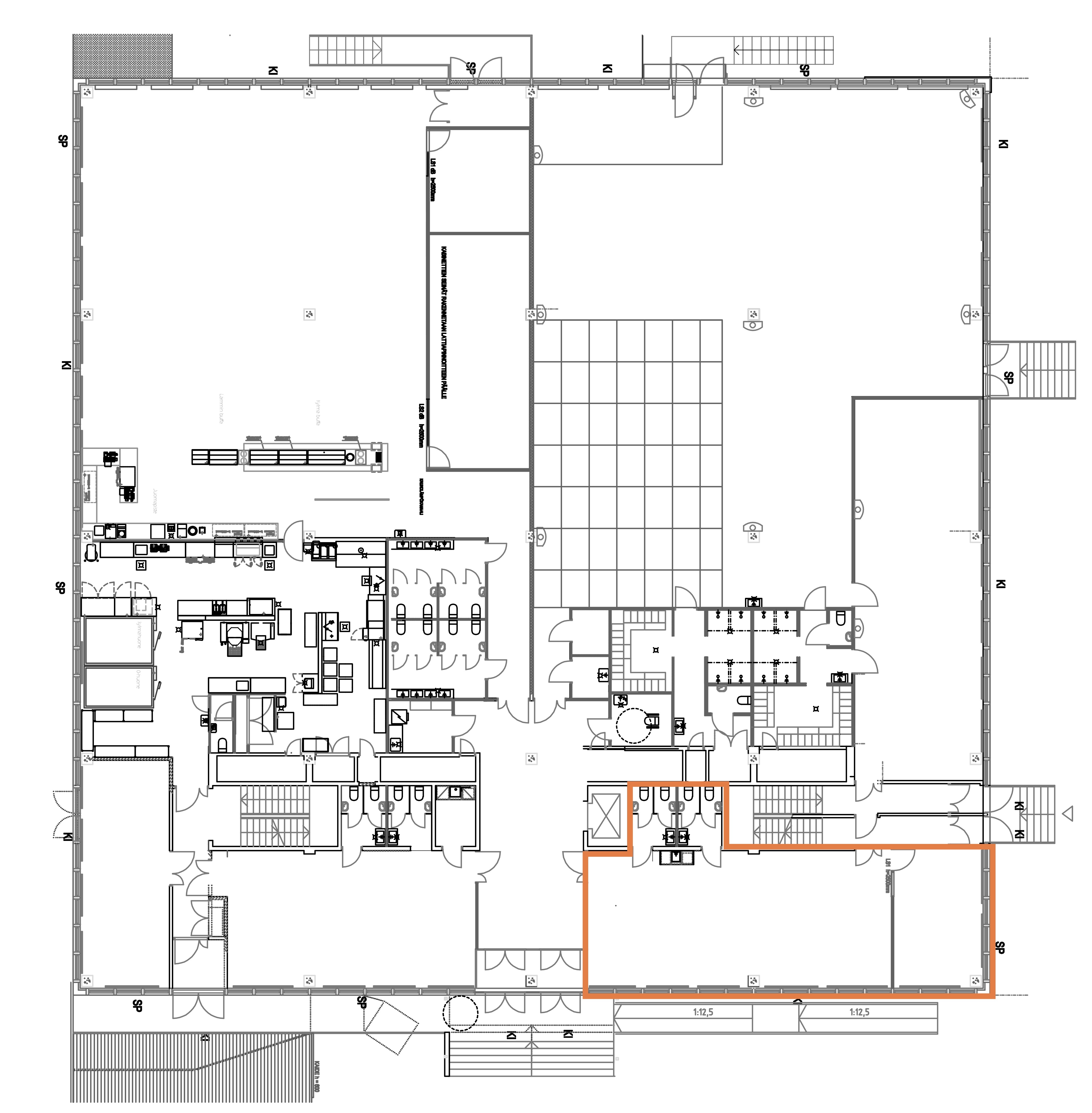
111 m2
Kiinteistö
Sisääntulokerroksen kivan kokoinen valoisa toimistotila. Avara toimitila sijaitsee pihan puolella, pääsisäänkäynnin vieressä.
Mäkitorpantie 3b on helposti saavutettavissa sekä omalla autolla että julkisilla liikennevälineillä. Käpylän juna-asema on kävelymatkan päässä ja bussipysäkkejä löytyy aivan kiinteistön edestä sekä Tuusulanväylän varrelta. Helsinki-Vantaan lentoasemalle on noin 20 minuutin ajomatka.
Piha-alueella on vuokrattavia autopaikkoja yhteensä 70 kappaletta sekä kaksi vieraspaikkaa ja esteetön pysäköintipaikka. Kellarikerroksessa on yhteiskäyttöiset sosiaalitilat esimerkiksi työmatkapyöräilijöiden käyttöön. Kellarikerroksessa on kiinteistön käyttäjille vuokrattavissa muutamia varastotiloja. Kerroksiin on hissiyhteys (1000 kg).
Sisääntulokerroksessa toimii kaupallinen kuntosaliyritys sekä lounasravintola, jossa on kaksi neuvottelutilaa. Lähinaapurissa sijaitsevan, tarjonnaltaan monipuolinen päivittäistavarakaupan yhteydessä on mm. Postin pakettiautomaatti, Ottopiste ja kukkakauppa.
Mäkitorpantie 3b on helposti saavutettavissa sekä omalla autolla että julkisilla liikennevälineillä. Käpylän juna-asema on kävelymatkan päässä ja bussipysäkkejä löytyy aivan kiinteistön edestä sekä Tuusulanväylän varrelta. Helsinki-Vantaan lentoasemalle on noin 20 minuutin ajomatka.
Piha-alueella on vuokrattavia autopaikkoja yhteensä 70 kappaletta sekä kaksi vieraspaikkaa ja esteetön pysäköintipaikka. Kellarikerroksessa on yhteiskäyttöiset sosiaalitilat esimerkiksi työmatkapyöräilijöiden käyttöön. Kellarikerroksessa on kiinteistön käyttäjille vuokrattavissa muutamia varastotiloja. Kerroksiin on hissiyhteys (1000 kg).
Sisääntulokerroksessa toimii kaupallinen kuntosaliyritys sekä lounasravintola, jossa on kaksi neuvottelutilaa. Lähinaapurissa sijaitsevan, tarjonnaltaan monipuolinen päivittäistavarakaupan yhteydessä on mm. Postin pakettiautomaatti, Ottopiste ja kukkakauppa.
Vapautuu
Heti
Rakennusvuosi
1978
Saneerausvuosi
2012
Kerros
1 / 3
Energiatehokkuusluokka
E2007
Näkyvällä paikalla
Hissi
Lastauslaituri
Ota yhteyttä
ScanReal Oy LKV
Opus Business Park
Hitsaajankatu 24
00810 Helsinki
info@scanreal.fi
Puh:
Näytä puhelinnumero
020 730 8830
Sopivat toimitilat yhdellä otolla!
Kartoitamme toimitilatarpeesi ja etsimme yrityksellesi parhaiten sopivat vapaat toimitilat. Koska vuokranantajat maksavat palvelumme, on tämä yrityksellesi veloituksetonta.
OTA YHTEYTTÄ - SOVI NÄYTTÖ!
Kaikki kohteemme eivät ole netissä, kerro tilatarpeesi niin kartoitamme vaihtoehdot.
Palvelumme on tilanhakijalle ilmainen
Pyydä lisätietoa
