Myydään liiketilat - Pori
Keskikatu 15, Toejoki, 28200 Pori #10849194
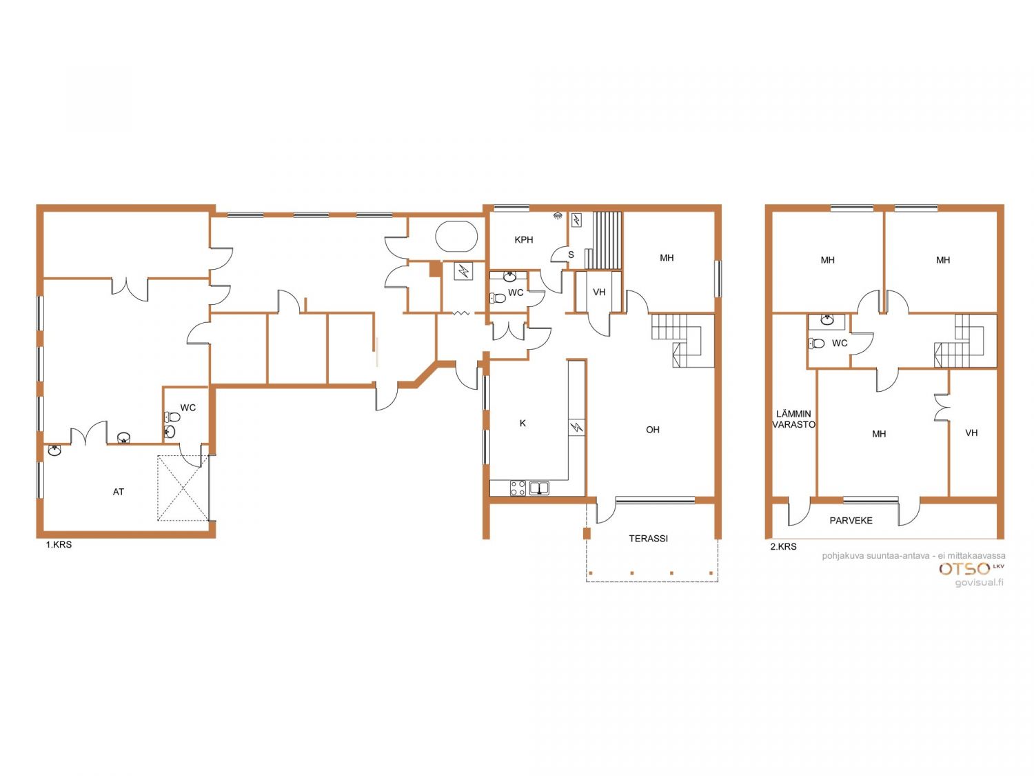
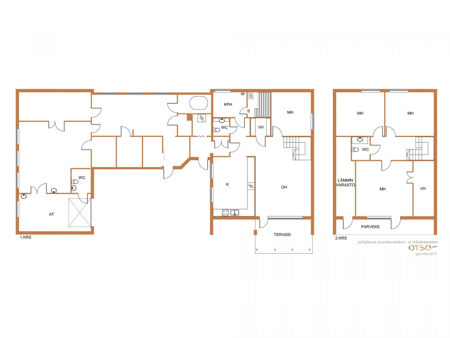
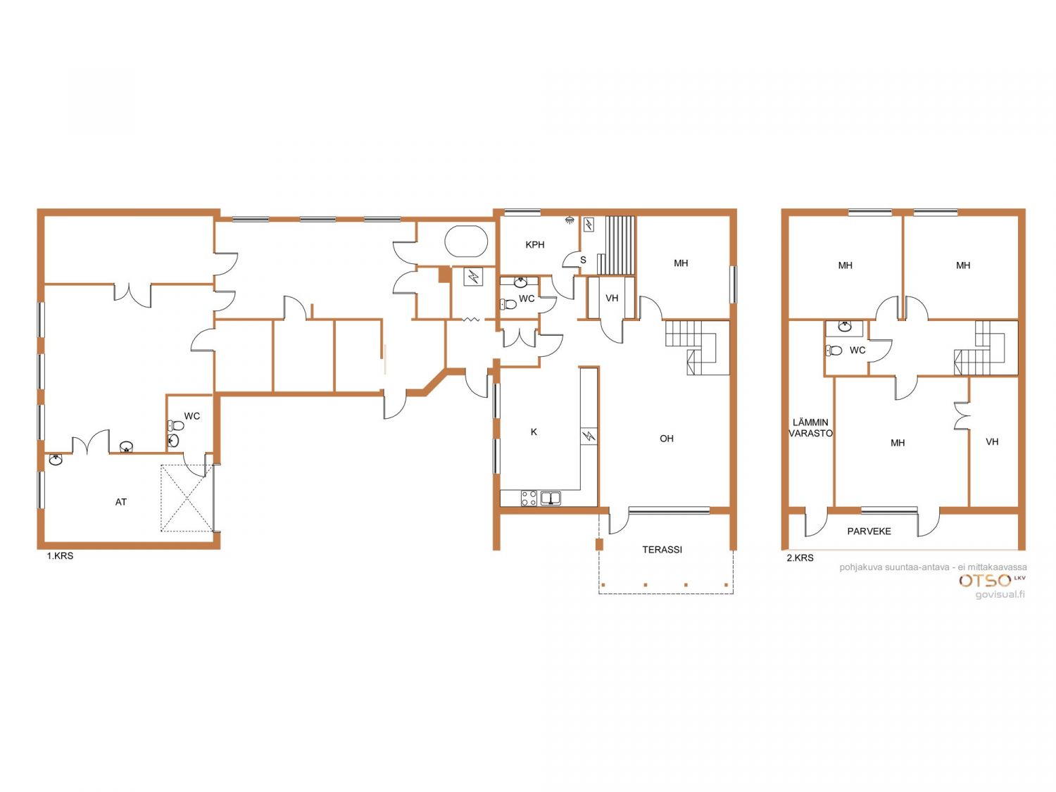
Tämä omakotitalon yhteydessä sijaitseva entinen liiketila toimii lämpimänä varastona/harrastetilana ja autotallina (110 m²), ja sen mahdollisuudet ovat lähes rajattomat. Haluatko perustaa oman yrityksen ja sen toimintatilat, studion, työpajan, tai hankkia harrastetilan? Täällä se onnistuu! Tilassa on koneellinen ilmastointi ja oma WC. Varastosta/autotallista löytyy kauttaaltaan lattiaviemäröinti, monta vesipistettä ja veden kestävä pinnoitus lattioissa. Kauttaaltaan pellitetyistä (seinät ja katot) tiloista löytyy voimavirtapistokkeet (380V). Tehokkaan työskentelyn mahdollistaa talon valokuitunetti.
Tämä kokonaisuus tarjoaa ainutlaatuisen yhdistelmän yrittämistä ja asumista.
Soita niin mennään katsomaan.
Riina Kuusijoensuu
041 462 5535
