Vuokrataan liiketilat, varastotilat - Espoo
Martinsillantie 2A, Suomenoja, 02270 Espoo #10849159
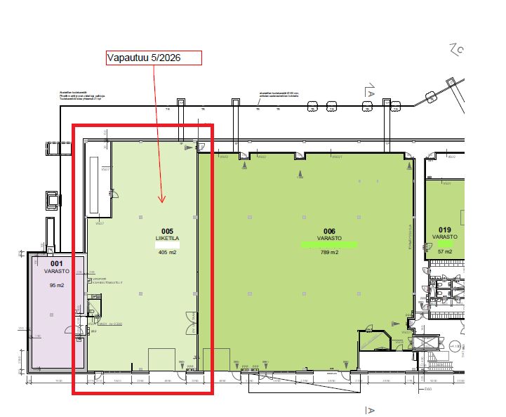
Finnoon Sisustustalo - Varasto / varastomyymälä 407 m²
Osoite
Martinsillantie 2A, 02270 Espoo
Tilatyyppi
Liiketilaa
407 m2
Varastotilaa
407 m2
Yhteensä
407 m2
Pohjapiirros
Kiinteistö
Tämä siisti ja käytännöllinen varastotila tarjoaa helpon ja sujuvan pääsyn katutasosta. Tilassa on nosto-ovi, joka tekee tavaran käsittelystä vaivatonta. Lisäksi tilasta löytyy oma wc ja minikeittiö, jotka tuovat arkeen mukavuutta ja toiminnallisuutta.
Mahdollisuus vuokrata lisäksi viereinen VSS-tila, n. 95 m².
Kysy lisätietoja!
Finnoon Sisustustalo
Alun perin sisustustalona tunnettu kiinteistö on kaksikerroksinen ja valmistunut vuonna 1988. Se on peruskorjattu vuonna 2012, ja tarjoaa nyt avarat, valoisat ja hyväkuntoiset toimitilat useammalle käyttäjälle. Tilat soveltuvat monipuolisesti erilaisiin liiketoimintoihin.
Sijainti
Finnoon Sisustustalo tarjoaa yrityksellesi erinomaisen sijainnin Suomenojalla vilkkaalla kauppapaikalla. Kiinteistö sijaitsee näkyvällä paikalla Länsiväylän varrella, aivan Finnoon liikenneympyrän tuntumassa. Alueelle on helppo saapua niin Espoosta, Kirkkonummelta kuin koko pääkaupunkiseudulta. Kiinteistön pihalla on runsaasti parkkitilaa, ja aivan vieressä sijaitsee bussipysäkki.
Palvelut
Finnoo on tänä päivänä kauppapaikka, jossa toimii vahvoja liiketilakäyttäjiä. Läheltä löytyy kauppakeskuksia ja päivittäistavarakauppoja, erikoisliikkeitä ja pienteollisuutta sekä vapaa-ajan palveluita, kuten urheilumahdollisuuksia ja perheille suunnattuja huvikeskuksia. Alueen ostovoimainen ja kasvava asiakaskunta tekee Finnoosta houkuttelevan sijainnin monenlaiselle liiketoiminnalle.
Ota yhteyttä
Kiinnostuitko? Ota yhteyttä ja tule tutustumaan tiloihin!
Toimitilavälityspalvelumme on tilanhakijalle maksuton.
Mahdollisuus vuokrata lisäksi viereinen VSS-tila, n. 95 m².
Kysy lisätietoja!
Finnoon Sisustustalo
Alun perin sisustustalona tunnettu kiinteistö on kaksikerroksinen ja valmistunut vuonna 1988. Se on peruskorjattu vuonna 2012, ja tarjoaa nyt avarat, valoisat ja hyväkuntoiset toimitilat useammalle käyttäjälle. Tilat soveltuvat monipuolisesti erilaisiin liiketoimintoihin.
Sijainti
Finnoon Sisustustalo tarjoaa yrityksellesi erinomaisen sijainnin Suomenojalla vilkkaalla kauppapaikalla. Kiinteistö sijaitsee näkyvällä paikalla Länsiväylän varrella, aivan Finnoon liikenneympyrän tuntumassa. Alueelle on helppo saapua niin Espoosta, Kirkkonummelta kuin koko pääkaupunkiseudulta. Kiinteistön pihalla on runsaasti parkkitilaa, ja aivan vieressä sijaitsee bussipysäkki.
Palvelut
Finnoo on tänä päivänä kauppapaikka, jossa toimii vahvoja liiketilakäyttäjiä. Läheltä löytyy kauppakeskuksia ja päivittäistavarakauppoja, erikoisliikkeitä ja pienteollisuutta sekä vapaa-ajan palveluita, kuten urheilumahdollisuuksia ja perheille suunnattuja huvikeskuksia. Alueen ostovoimainen ja kasvava asiakaskunta tekee Finnoosta houkuttelevan sijainnin monenlaiselle liiketoiminnalle.
Ota yhteyttä
Kiinnostuitko? Ota yhteyttä ja tule tutustumaan tiloihin!
Toimitilavälityspalvelumme on tilanhakijalle maksuton.
Vapautuu
Kysy
Kerros
1
Ota yhteyttä
Logistila Oy
Kylätie 11-13, 00320 HELSINKI
Karoliina Turppo
Näytä puhelinnumero
050 345 3258
Pyydä lisätietoa
