Myydään tuotantotilat - Oulu
Hiltusentie 20, Rusko / Takalaanila, 90620 Oulu #10849075
Myydään siisti toimitila 2016 valmistuneesta Ruskopark 2:sta.
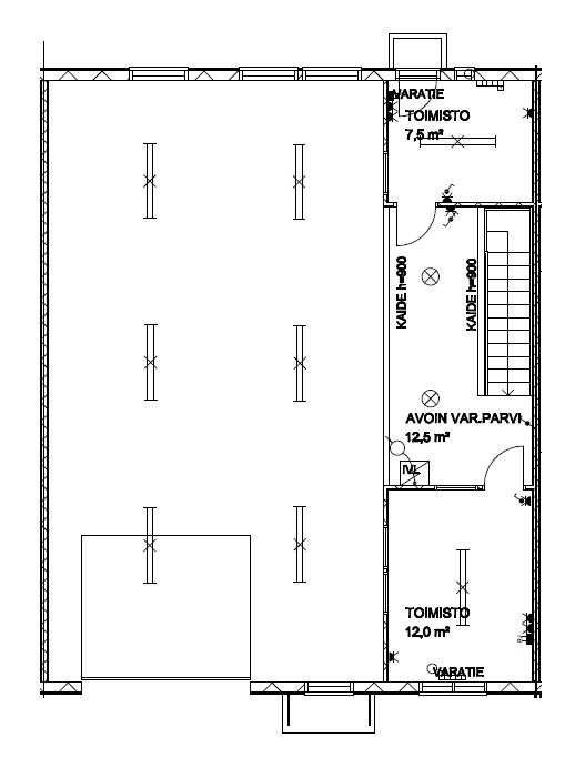
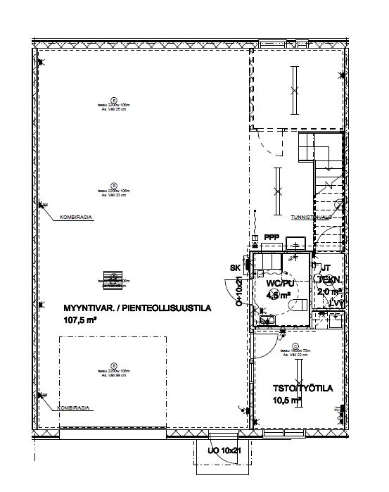
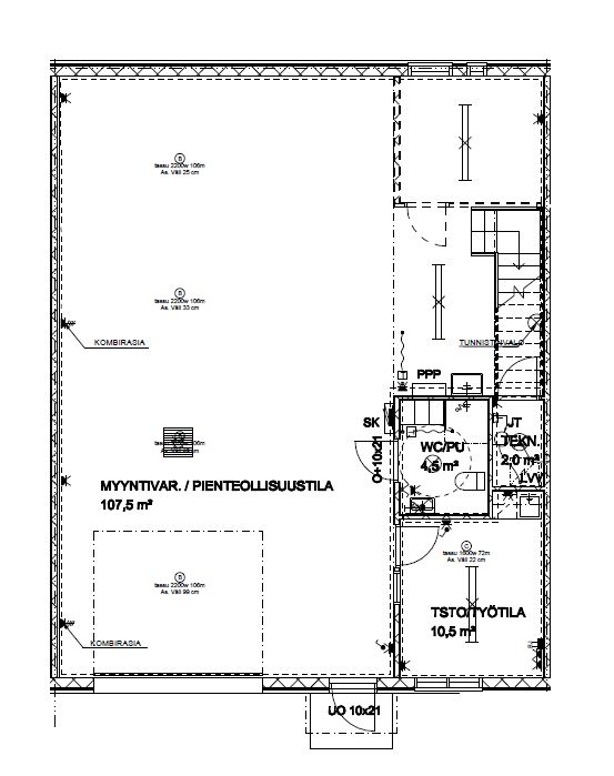
Tilan katutasossa on korkeaa hallitilaa, keittiötila, yksi erillinen huone sekä suihkullinen WC/pukuhuone. 2. kerroksessa on tilava avoparvi sekä yksi erillinen isompi huone. Toimistotilojen lattiat ovat laminaattia. Hallitilaa on iso nosto-ovi sekä erillinen käyntiovi. Tilan yhteyteen saat tunnisteet yrityksellesi. Tilalle on kaksi sähköpistokkeellista autopaikkaa, lisäksi tilan edustalle mahtuu pysäköimään.
Tässä tilaisuus ostaa omaksi, soita pian ja sovi näyttöaika!
Esittelyt ja lisätiedot:
Joni Romppainen
040 5400 672
joni.romppainen@kiinteistotahkola.fi
Osoite
Hiltusentie 20, 90620 Oulu
Tilatyyppi
Tuotantotilaa
160 m2
Myyntihinta
176000 €
Vapautuu
Heti
Ota yhteyttä
Pyydä lisätietoa
