Vuokrataan toimistotilat - Helsinki
Kaisaniemenkatu 4, Kluuvi, 00100 Helsinki #10848995
Muuttovalmis toimistotila modernissa läpitalon huoneistossa. Kiinteistössä on tehty putkiremontti vuoden 2025 aikana ja tämän yhteydessä uusittiin samalla kaikkien tilojen wc-pinnat sekä kalusteet.
Osoite
Kaisaniemenkatu 4, 00100 Helsinki
Tilatyyppi
Toimistotilaa
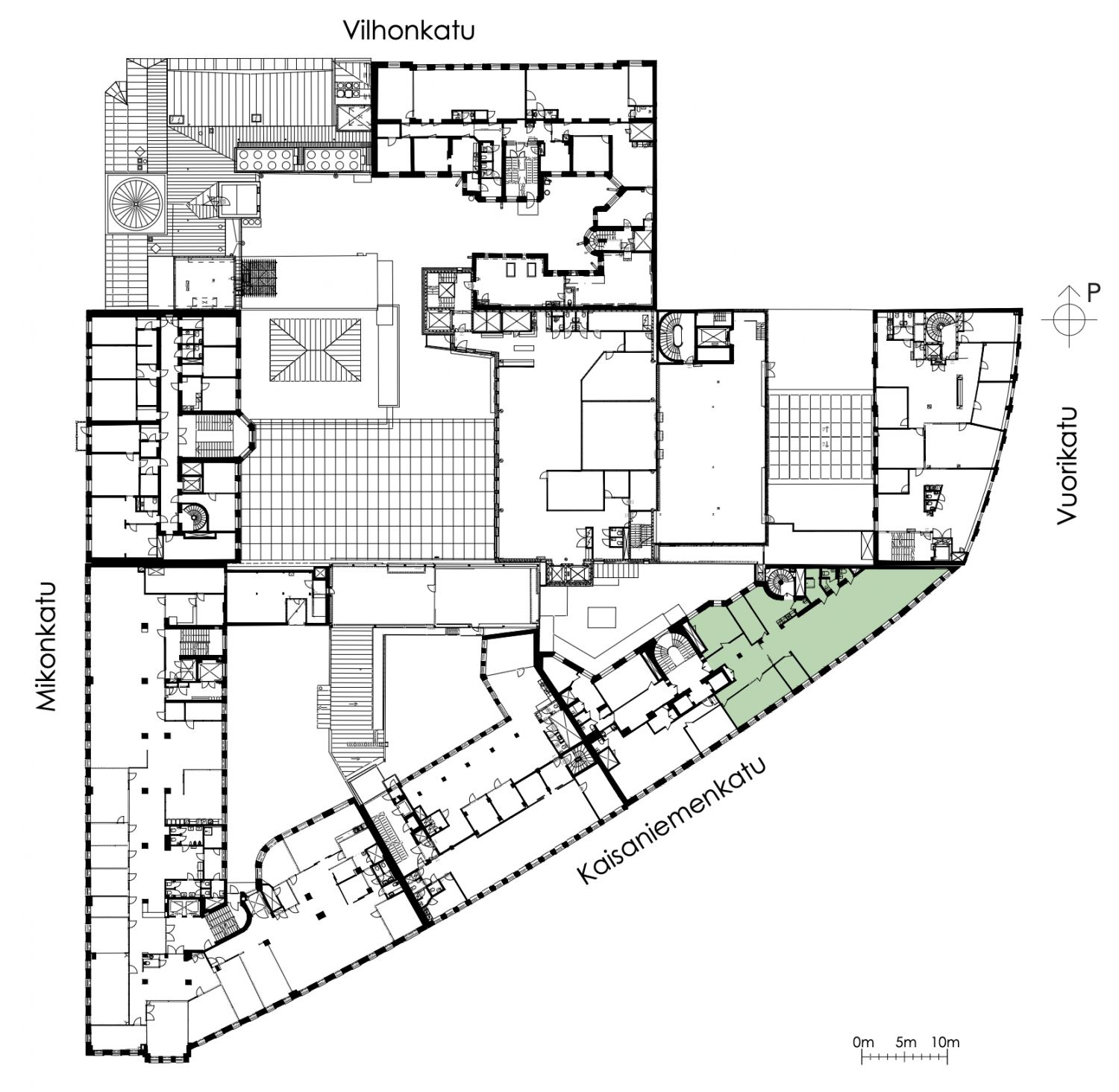
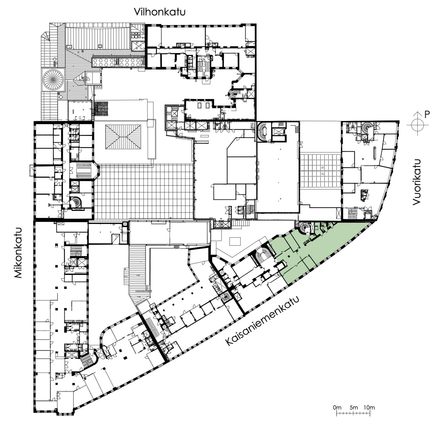
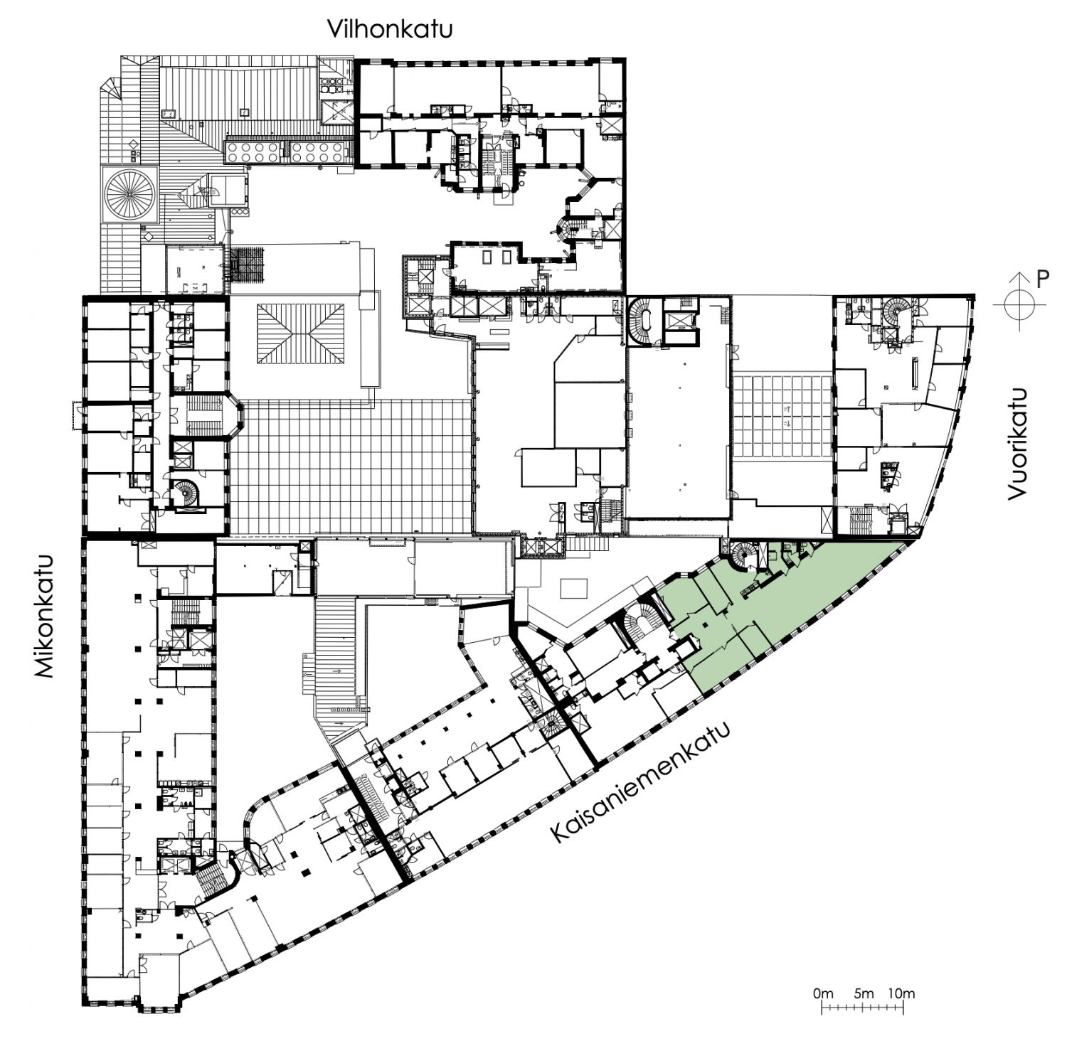
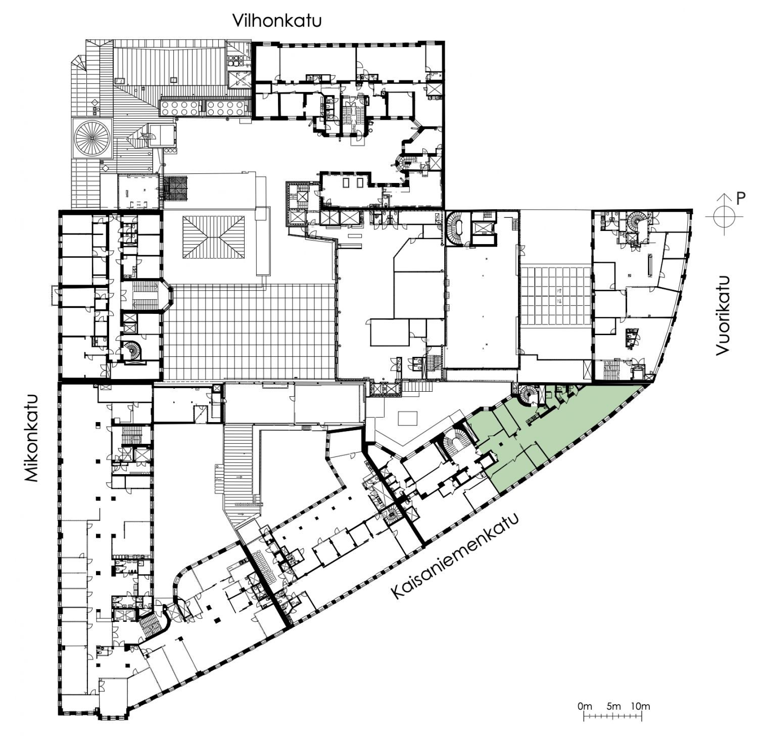
253 m2
Pohjapiirros
Kiinteistö
Monipuolinen toimisto- ja liikekiinteistö erinomaisella paikalla Helsingin ydinkeskustan Fennia-korttelissa.
Vuonna 1929 valmistunut rakennus Kaisaniemenkatu 4:ssä tunnetaan myös nimellä Paulon talo. Herman Paulonin rakennuttama talo on aikansa arkkitehtoninen taidonnäyte, jossa yhdistyvät uusklassistiset ja funktionalistiset tyylipiirteet. Talo toimi alun perin niin asuinrakennuksena kuin liiketiloinakin, ja se oli suunniteltu palvelemaan kasvavaa Helsingin liikekeskustaa.
Tänä päivänä kiinteistön katutasossa on liiketiloja ja ylemmissä kerroksissa on toimistotilaa. Kahdeksankerroksisen kiinteistön tilat ovat valoisat ja helposti muunneltavissa yrityksen tarpeiden mukaisesti. Kiinteistössä on tehty putkiremontti vuoden 2025 aikana ja tämän yhteydessä uusittiin samalla kaikkien tilojen wc-pinnat sekä kalusteet.
Kiinteistö palvelee erinomaisesti hyviä kulkuyhteyksiä ja keskustan palvelutarjontaa arvostavaa yritystä. Helsingin yliopiston metroaseman yläpuolella sijaitsevalle kiinteistölle on erinomaiset julkisen liikenteen yhteydet ympäri pääkaupunkiseutua. Keskeisen sijainnin ansiosta myös kaikki Helsingin keskustan palvelut ovat lyhyen kävelymatkan etäisyydellä.
Kaikille Fennia-korttelin kiinteistöille on myönnetty BREEAM In-Use Excellent -tason ympäristösertifikaatti ja koko kortteli toimii 100 % päästöttömällä energialla, kuten tuulisähköllä ja uusiutuvalla kaukolämmöllä.
Vuonna 1929 valmistunut rakennus Kaisaniemenkatu 4:ssä tunnetaan myös nimellä Paulon talo. Herman Paulonin rakennuttama talo on aikansa arkkitehtoninen taidonnäyte, jossa yhdistyvät uusklassistiset ja funktionalistiset tyylipiirteet. Talo toimi alun perin niin asuinrakennuksena kuin liiketiloinakin, ja se oli suunniteltu palvelemaan kasvavaa Helsingin liikekeskustaa.
Tänä päivänä kiinteistön katutasossa on liiketiloja ja ylemmissä kerroksissa on toimistotilaa. Kahdeksankerroksisen kiinteistön tilat ovat valoisat ja helposti muunneltavissa yrityksen tarpeiden mukaisesti. Kiinteistössä on tehty putkiremontti vuoden 2025 aikana ja tämän yhteydessä uusittiin samalla kaikkien tilojen wc-pinnat sekä kalusteet.
Kiinteistö palvelee erinomaisesti hyviä kulkuyhteyksiä ja keskustan palvelutarjontaa arvostavaa yritystä. Helsingin yliopiston metroaseman yläpuolella sijaitsevalle kiinteistölle on erinomaiset julkisen liikenteen yhteydet ympäri pääkaupunkiseutua. Keskeisen sijainnin ansiosta myös kaikki Helsingin keskustan palvelut ovat lyhyen kävelymatkan etäisyydellä.
Kaikille Fennia-korttelin kiinteistöille on myönnetty BREEAM In-Use Excellent -tason ympäristösertifikaatti ja koko kortteli toimii 100 % päästöttömällä energialla, kuten tuulisähköllä ja uusiutuvalla kaukolämmöllä.
Sijainti
Kiinteistön vieressä sijaitsevat Rautatieasema ja Rautatientorin linja-autoasema takaavat erinomaisen julkisen liikenteen saavutettavuuden, jota täydentää korttelin alapuolella sijaitseva Helsingin yliopiston metroasema.
Pysäköinti
Autopaikat P-Eliel ja P-Kluuvi
Palvelut
Fennia-korttelissa on mittava määrä ravintoloita ja muita palveluita. Keskeinen sijainti ydinkeskustassa takaa sen, että kaikki kaupalliset ja yrityspalvelut sijaitsevat lyhyen kävelymatkan etäisyydellä. Työmatkapyöräilijöita varten löytyy pyörävarasto sekä sosiaalitilat.
Kulkuyhteydet
Lähimmälle bussipysäkille 300 m
Lähimmälle juna-asemalle 300 m
Lähimmälle metroasemalle 150 m
Lähimmälle raitiovaunupysäkille 100 m
Lentokentälle 30 min
Lähimmälle juna-asemalle 300 m
Lähimmälle metroasemalle 150 m
Lähimmälle raitiovaunupysäkille 100 m
Lentokentälle 30 min
Vapautuu
Kysy
Rakennusvuosi
1929
Kerros
5
Energiatehokkuusluokka
C2018 (liiketilat) D2018 (toimistot)
Ympäristöluokitus
BREEAM In-Use Excellent,GRESB Global Sector Leader 2025
Ota yhteyttä
Sponda Oy
Yrjönkatu 29C, 00100 Helsinki
Näytä puhelinnumero
020 43131
Janika Tikkakoski
Leasing Manager
Näytä puhelinnumero
+358 40 589 2752
Sirpa Vuorimaa
Director, Retail
Näytä puhelinnumero
+358 40 7654 222
Sponda Oy
https://www.sponda.fiPyydä lisätietoa
