Vuokrataan varastotilat - Espoo
Koskelontie 13, Koskelo, 02920 Espoo #10848971
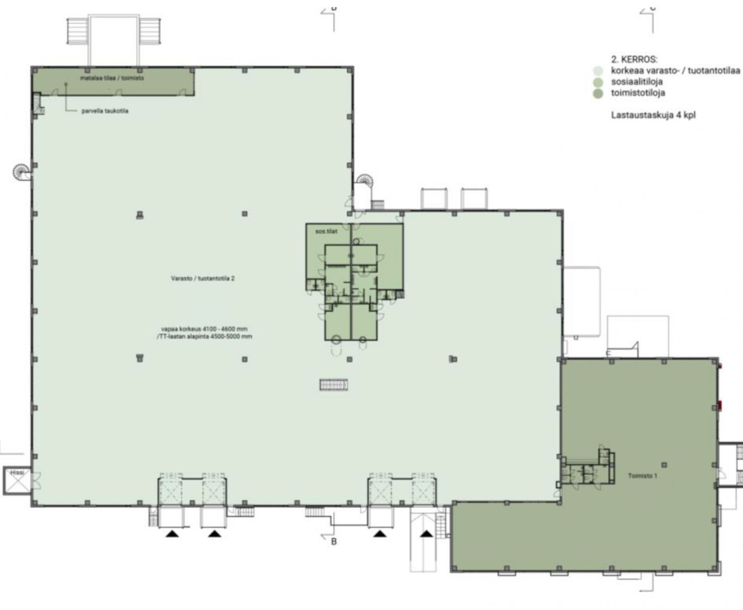
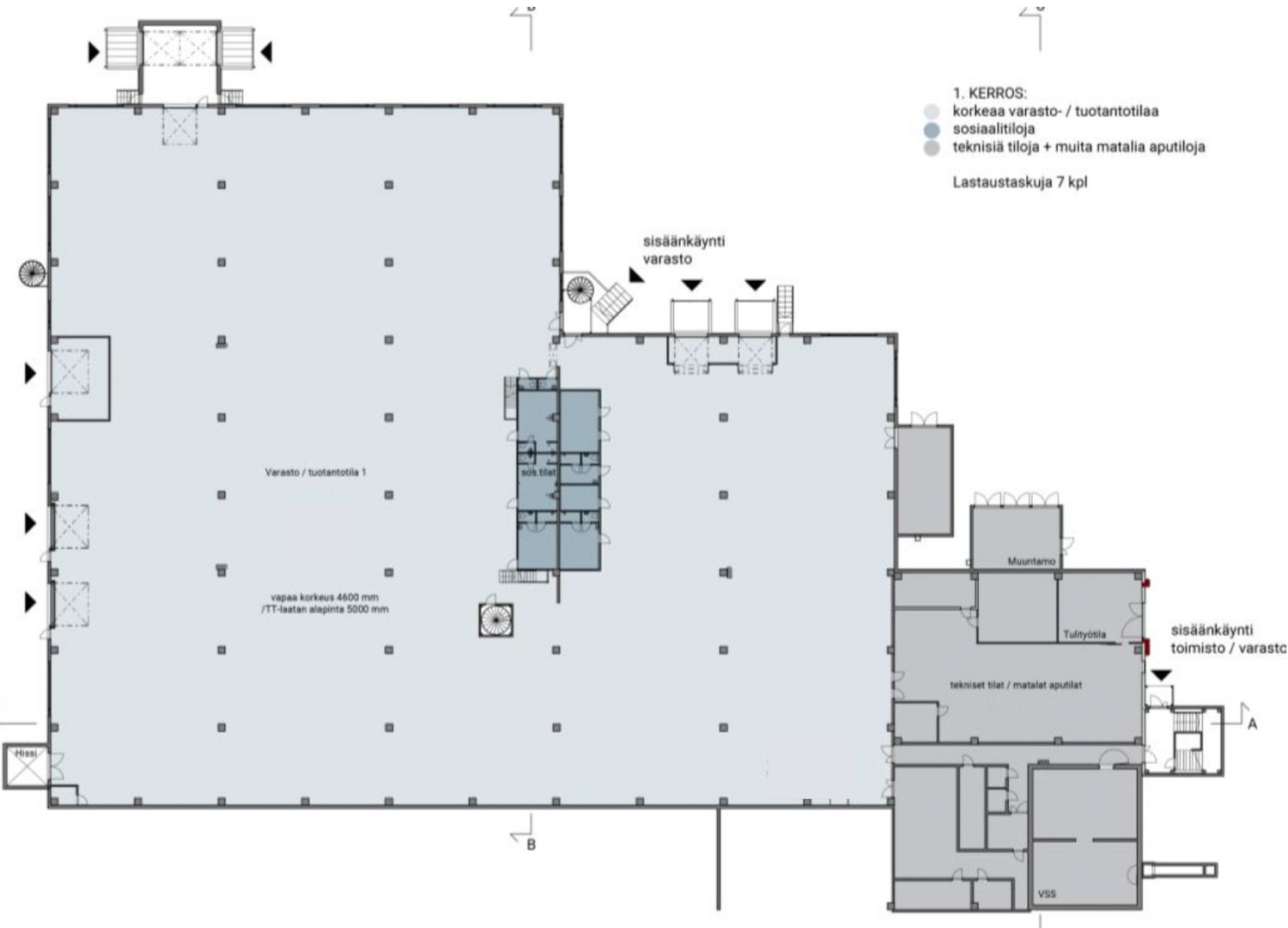
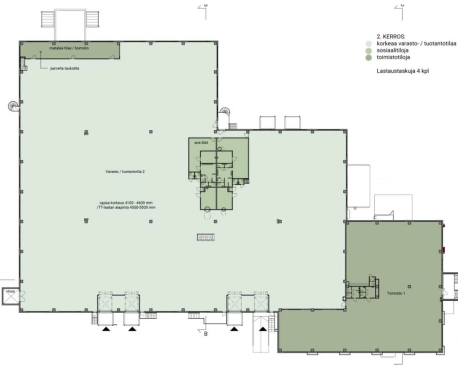
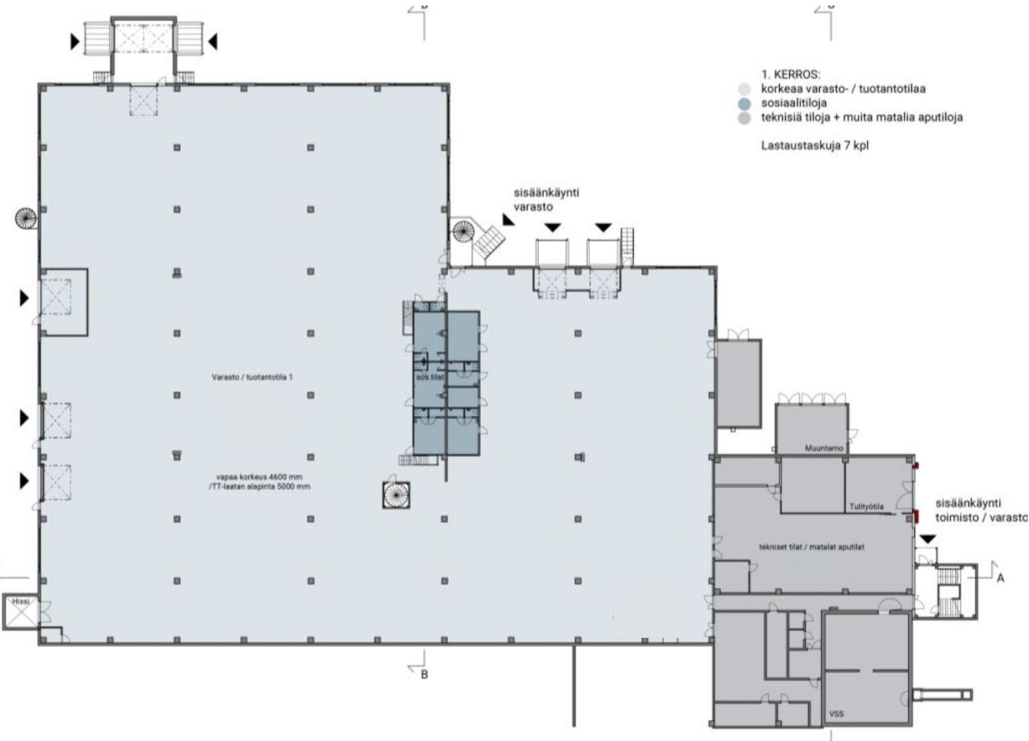
Lastausramppi nosto-ovella, lastaustasku/nosto-ovi * 3, lattiakantavuus 2 000 kg/m². Varasto 3 747,5m² ja toimisto 753,5m² sekä sosiaalitilat.
Osoite
Koskelontie 13, 02920 Espoo
Tilatyyppi
Varastotilaa
4501 m2
Vapautuu
Kysy
Ota yhteyttä
Pyydä lisätietoa
