Vuokrataan varastotilat - Espoo
Koskelontie 13, Koskelo, 02920 Espoo #10848970
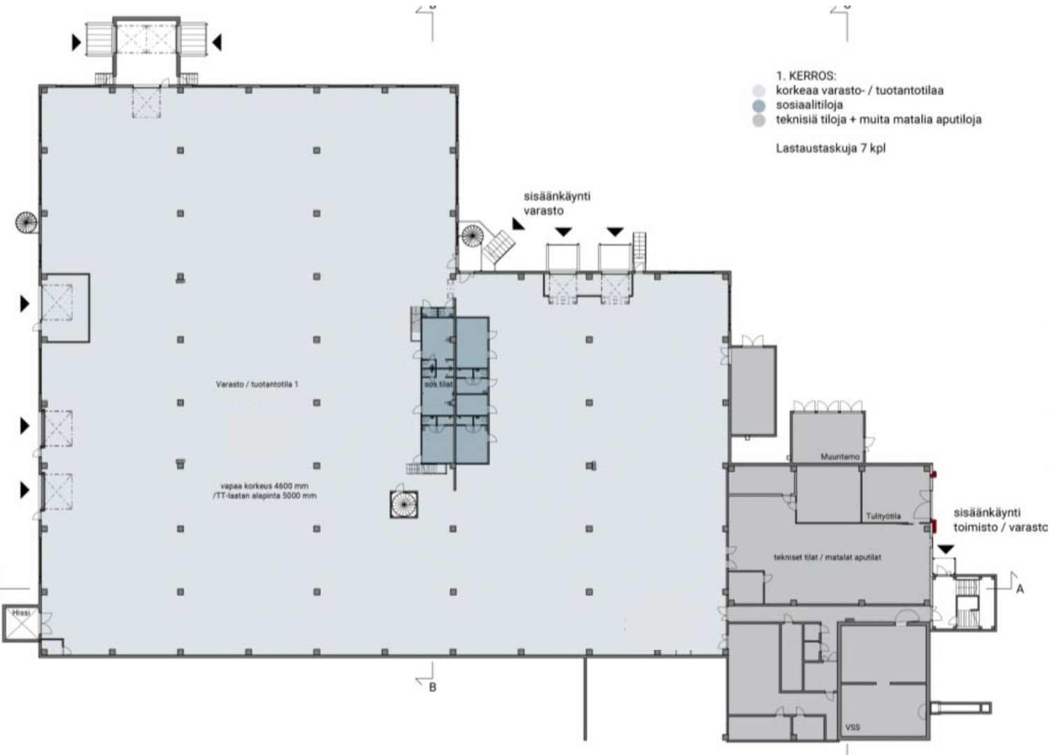
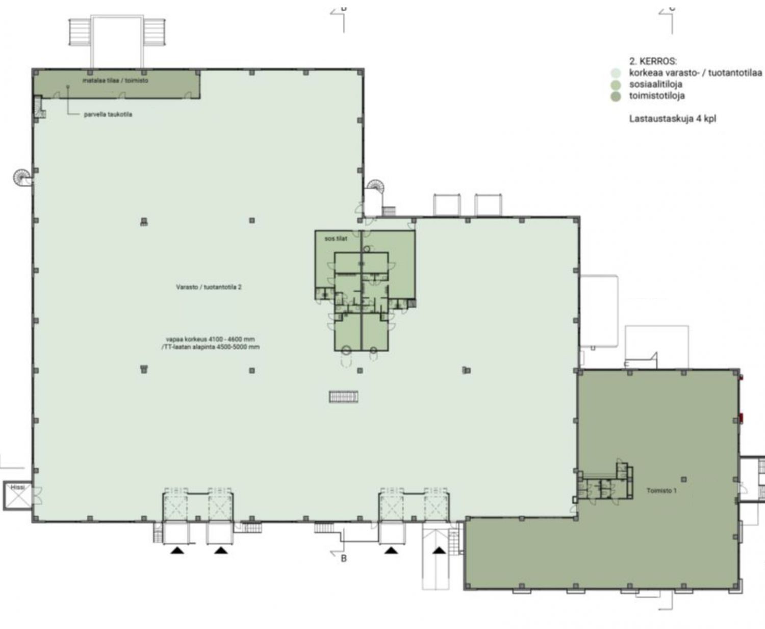
Lastaustasku/nosto-ovi * 4 , maantason nosto-ovi *3, lattiakantavuus 2 000 kg/m². Varasto-/tuotantotilaa 3 639 m², kellaritilaa sekä sosiaalitilat n 680m². Voi yhdistää 1.5 kerroksen 790 m2 toimistotilaan sisäportailla.
Osoite
Koskelontie 13, 02920 Espoo
Tilatyyppi
Varastotilaa
3799 m2
Vapautuu
Kysy
Ota yhteyttä
Pyydä lisätietoa
