Vuokrataan toimistotilat - Helsinki
Salmisaarenaukio 1, Ruoholahti, 00180 Helsinki #10848956
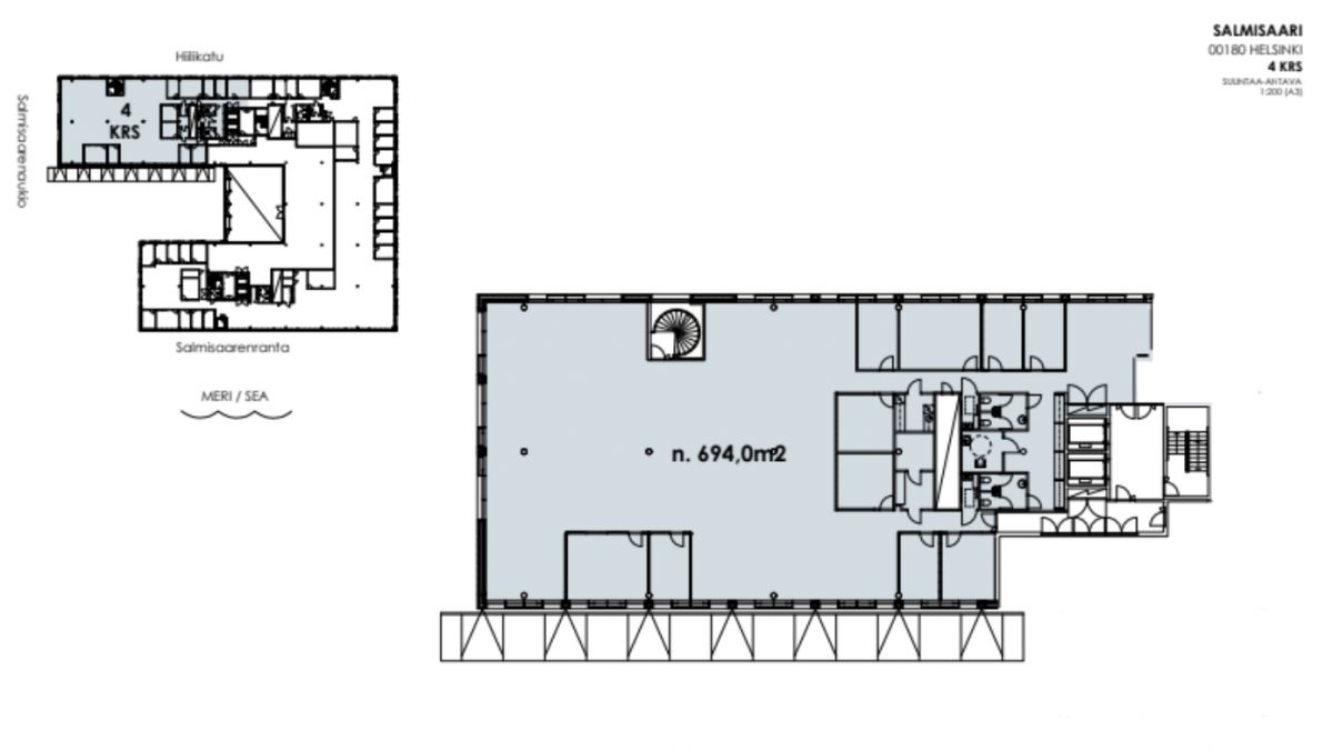
Vuokrataan 4. kerroksen tasokas toimistotila hienolla merinäköalalla. Valoisa toimisto koostuu avotilasta ja huoneista. Tilassa on huonekorkeus 4 metriä ja lattiasta kattoon ulottuvat ikkunat. Huonejako on helposti muokattavissa seuraavan käyttäjän tarpeiden mukaan.
Kiinteistössä toimii aulapalvelu ja lounasravintola Factory. Kokousmaailmasta on vuokrattavissa erikokoisia neuvotteluhuoneita. Kiinteistön alla on lämmin pysäköintihalli ja työmatkapyöräilijöitä palvelee modernit pukuhuone- ja suihkutilat sekä polkupyöräparkki.
Metrolle on n. 10 minuutin kävelymatka ja bussilinja 15 kulkee ruuhka-aikaan metroasemalta 4 minuutin välein. Lähin raitiovaunupysäkki on 500 metrin päässä ja kaupunkipyöräasema löytyy kiinteistön vierestä.
Läheltä löytyy Ruoholahden alueen monipuoliset palvelut kuten esimerkiksi Elixian kuntosali, kiipeilyareena, jäähalli ja beach volley-kenttiä. Ruoholahdessa on myös useita ruokakauppoja, lääkäriasemia, kahviloita ja ravintoloita.
Lisätietoja soita 020 730 4530 tai info@repoint.fi. Palvelumme on tilanhakijalle ilmainen.
Repoint Toimitilat Oy
Itälahdenkatu 22 B, 00210 Helsinki
Näytä puhelinnumero
020 730 4530
Lisätietoja soita Näytä puhelinnumero 020 730 4530 tai info@repoint.fi
https://repoint.fi/