Vuokrataan liiketilat - Helsinki
Kotisaarenkatu 3, Toukola, 00560 Helsinki #10848864
Liiketilaa Helsingistä
Osoite
Kotisaarenkatu 3, 00560 Helsinki
Tilatyyppi
Liiketilaa
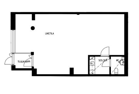
76 m2
Muuta
Vuokrattavana 76,5² katutason liiketila asuintalon yhteydessä. Tila sijaitsee erinomaisella paikalla, mikä tarjoaa hyvän näkyvyyden ja saavutettavuuden.
Liiketila soveltuu monenlaiseen kaupalliseen toimintaan, mutta ei ole tarkoitettu ravintolakäyttöön. Tilassa on avara pohjaratkaisu ja se mahdollistaa joustavia käyttöratkaisuja vuokralaisen tarpeiden mukaan.
Tila vapautuu 1.3.2026.
Tervetuloa tutustumaan, varaathan välittäjältä oman esittelyaikasi. Voit kysyä meiltä myös muita sopivia vaihtoehtoja, kauttamme löydät juuri Teidän tarpeisiinne sopivat tilat. Palvelumme on tilanhakijalle veloitukseton
Liiketila soveltuu monenlaiseen kaupalliseen toimintaan, mutta ei ole tarkoitettu ravintolakäyttöön. Tilassa on avara pohjaratkaisu ja se mahdollistaa joustavia käyttöratkaisuja vuokralaisen tarpeiden mukaan.
Tila vapautuu 1.3.2026.
Tervetuloa tutustumaan, varaathan välittäjältä oman esittelyaikasi. Voit kysyä meiltä myös muita sopivia vaihtoehtoja, kauttamme löydät juuri Teidän tarpeisiinne sopivat tilat. Palvelumme on tilanhakijalle veloitukseton
Vapautuu
Kysy
Kerros
katutaso
Ota yhteyttä
Tuloskiinteistöt Oy
Rikhardinkatu 2 B 5, 00130 Helsinki
Näytä puhelinnumero
(09) 6841 620
Jorma Ryynänen
Commercial Real Estate Advisor LKV, LVV
Näytä puhelinnumero
+358 40 708 4064
Otto Ahtola
Commercial Real Estate Advisor
Näytä puhelinnumero
+358 40 042 2830
Pyydä lisätietoa
