Vuokrataan toimistotilat - Oulu
Teknologiantie 5, Linnanmaa, 90590 Oulu #10848859
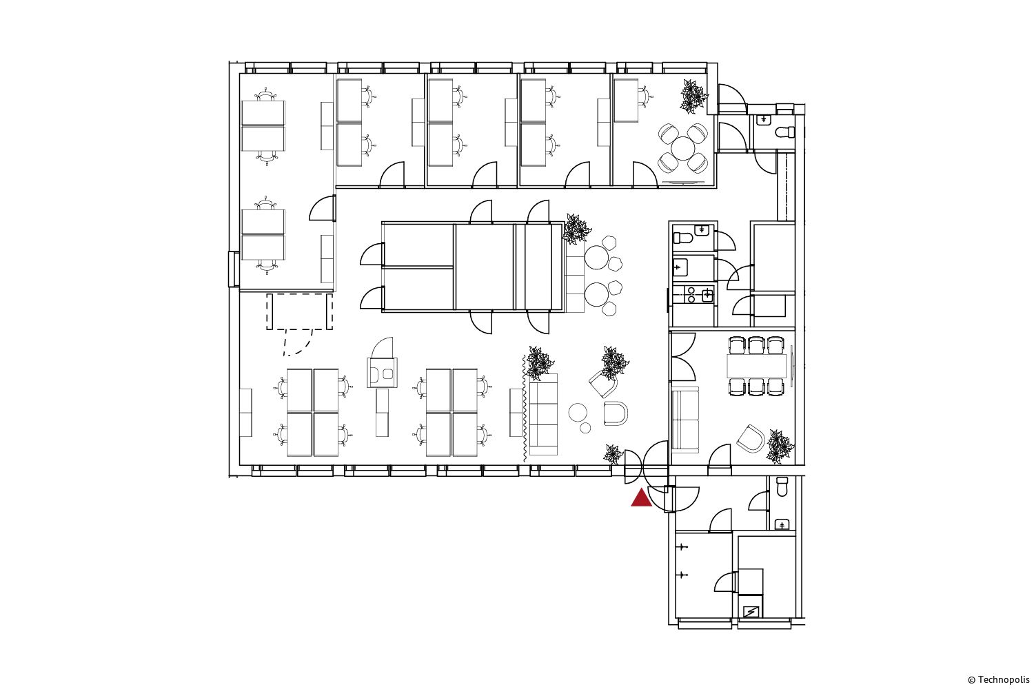
Ainutlaatuinen saunallinen toimitila vuokrattavissa Technopolis Linnanmaan kampuksella. Tässä tilassa on erillisiä työ- ja neuvotteluhuoneita, avotilaa, keittiö, sosiaalitilat saunatiloineen sekä wc:t. Ilmoitettu neliömäärä sisältää jyvityksen kiinteistön yhteisistä tiloista.
Linnanmaan kampus tarjoaa kattavat palvelut asiakkailleen. Aulapalvelu ja Compass Groupin ravintola Garden palvelevat Teknologiantie 1 kiinteistössä. Kokouksia varten löytyy sekä pieniä että suurempia kokous- ja koulutustiloja, jotka soveltuvat hyvin erilaisille tilaisuuksille ja tapahtumille.
Kohteeseen on helppo saapua niin autolla kuin julkisilla liikennevälineillä. Rakennuksen edustalla on pysäköintitilaa ja vieraspysäköinti on Technopoliksen asiakkaiden vieraiden käytettävissä ilmaiseksi. Lähialueella on monipuolisesti palveluita ja mm. Oulun Yliopisto, Linnanmaan Prisma ja Technopoliksen kuntosalikumppani ovat aivan naapurissa.
Technopolis
Elektroniikkatie 8 FIN-90590 Oulu
Näytä puhelinnumero
046 712 0000
Terhi Kestilä
Näytä puhelinnumero
040 719 9561
Myynti Technopolis Oulu
Technopolis on työympäristöjen asiantuntija. Tarjoamme joustavia ja tehokkaita toimitiloja sekä niihin liittyviä palveluita. Hoidamme kaiken työtilojen suunnittelusta sekä aula- ja kokouspalveluista ravintoloihin ja siivoukseen. Asiakaskokemus ja sen kehittäminen ovat toimintamme ytimessä. Meillä on 14 kampusta, joissa toimii 1200 asiakasyritystä ja niiden 35 000 työntekijää neljässä maassa Euroopassa.
https://technopolisglobal.com/fi