Vuokrataan toimistotilat - Espoo
Bertel Jungin Aukio 1, Leppävaara, 02600 Espoo #10848858
Alberga Business Park E - Toimisto 180 m²
Osoite
Bertel Jungin Aukio 1, 02600 Espoo
Tilatyyppi
Toimistotilaa
180 m2
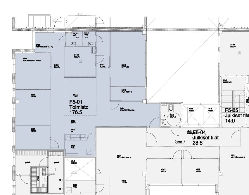
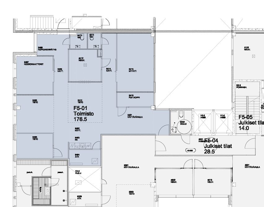
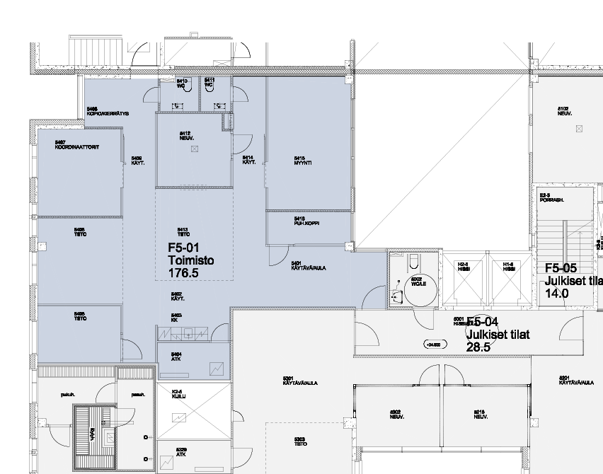
Pohjapiirros
Kiinteistö
Valoisa ja tehokas toimistotila Alberga Business Parkista
Leppävaaran Alberga Business Parkissa on vuokrattavissa viidennen kerroksen moderni ja hyvin suunniteltu toimistotila, jonka pinta-ala on noin 176,5 m² + jyvitettyjä yhteisiä tiloja noin 3,5 m², yhteensä noin 180 m². Tila tarjoaa erinomaiset puitteet nykyaikaiselle työskentelylle.
Toimistossa on huoneita ja avotilaa, jotka tukevat sekä tiimityötä että rauhallista keskittymistä. Lisäksi tilassa on keittiö ja kaksi erillistä WC-tilaa, jotka lisäävät käyttömukavuutta ja toiminnallisuutta arjessa.
Tilassa on nykyaikainen ilmastointi, ja kiinteistön sijainti on erinomainen. Käytössä on myös modernit tietoliikenneyhteydet, kuten CAT 6 -kaapelointi ja valokuitu, ja kulku kerrokseen hoituu vaivattomasti henkilöhissillä.
Alberga Business Park – Modernia toimitilaa menestyville yrityksille
Huippusijainti Leppävaarassa
Alberga Business Park sijaitsee erinomaisella paikalla Kehä I:n varrella, aivan Kauppakeskus Sellon ja Leppävaaran juna-aseman vieressä. Junalla pääset Helsingin keskustaan vain 20 minuutissa, ja Raidejokerin pysäkki on muutaman minuutin kävelymatkan päässä. Kiinteistöön on helppo tulla niin julkisilla kuin omalla autolla, kävellen tai pyörällä.
Työmatkapyöräilijöille on tarjolla pyöräparkit sekä siistit pukeutumis- ja suihkutilat. Autolla saapuville löytyy runsaasti pysäköintitilaa sekä sähköautojen latauspisteitä.
Etäisyydet
Raitiovaunupysäkki 410 m
Bussipysäkki 240 m
Juna-asema 510 m
Helsinki-Vantaan lentoasema 20 km
Monipuoliset palvelut yrityksille
Alberga Business Park tarjoaa kattavan valikoiman palveluita, jotka tukevat yritysten arkea ja viihtyvyyttä:
Aulapalvelu
Lounasravintola
Catering-palvelut kokouksiin ja tapahtumiin
Vuokrattavat kokoustilat
Edustussauna: tyylikäs saunaosasto yrityskäyttöön
Toimitilapalvelut: siivous, postitus ja muut yrityspalvelut
Autopesula pysäköintihallin yhteydessä
Hierontapalvelut
Pyörävarastot ja pukeutumistilat työmatkapyöräilijöille
Leppävaara on nopeasti kehittyvä yrityskeskittymä, joka tarjoaa runsaasti palveluita aivan Alberga Business Parkin läheisyydessä. Alueelta löytyy monipuolisia ravintoloita ja viihtyisiä kahviloita, jotka sopivat niin lounastauolle kuin asiakastapaamisiin. Liikunnan ystäville on tarjolla kuntosali, ja arjen tarpeisiin vastaavat kampaamo, parturi, ruokakauppa ja kioski. Lisäksi alueella toimii pesula ja autopesula, jotka helpottavat päivittäisiä askareita. Kulttuurin ja majoituksen osalta Leppävaarassa on kirjasto ja hotelli, ja suurempia ostoksia varten Kauppakeskus Sello tarjoaa laajan valikoiman liikkeitä. Terveyspalvelut ovat myös lähellä, sillä alueella sijaitsee lääkäriasema.
Vastuullisuus ja ympäristöystävällisyys
Alberga Business Park on suunniteltu kestävän kehityksen periaatteiden mukaisesti. Kiinteistöllä on kansainvälisen BREEAM-ympäristösertifioinnin Very Good -luokitus, joka kertoo energiatehokkaasta suunnittelusta, modernista talotekniikasta ja tehokkaasta kierrätyksestä.
Ota yhteyttä
Kiinnostuitko? Ota yhteyttä ja tule tutustumaan!
Toimitilavälityspalvelumme on tilanhakijalle maksuton.
Leppävaaran Alberga Business Parkissa on vuokrattavissa viidennen kerroksen moderni ja hyvin suunniteltu toimistotila, jonka pinta-ala on noin 176,5 m² + jyvitettyjä yhteisiä tiloja noin 3,5 m², yhteensä noin 180 m². Tila tarjoaa erinomaiset puitteet nykyaikaiselle työskentelylle.
Toimistossa on huoneita ja avotilaa, jotka tukevat sekä tiimityötä että rauhallista keskittymistä. Lisäksi tilassa on keittiö ja kaksi erillistä WC-tilaa, jotka lisäävät käyttömukavuutta ja toiminnallisuutta arjessa.
Tilassa on nykyaikainen ilmastointi, ja kiinteistön sijainti on erinomainen. Käytössä on myös modernit tietoliikenneyhteydet, kuten CAT 6 -kaapelointi ja valokuitu, ja kulku kerrokseen hoituu vaivattomasti henkilöhissillä.
Alberga Business Park – Modernia toimitilaa menestyville yrityksille
Huippusijainti Leppävaarassa
Alberga Business Park sijaitsee erinomaisella paikalla Kehä I:n varrella, aivan Kauppakeskus Sellon ja Leppävaaran juna-aseman vieressä. Junalla pääset Helsingin keskustaan vain 20 minuutissa, ja Raidejokerin pysäkki on muutaman minuutin kävelymatkan päässä. Kiinteistöön on helppo tulla niin julkisilla kuin omalla autolla, kävellen tai pyörällä.
Työmatkapyöräilijöille on tarjolla pyöräparkit sekä siistit pukeutumis- ja suihkutilat. Autolla saapuville löytyy runsaasti pysäköintitilaa sekä sähköautojen latauspisteitä.
Etäisyydet
Raitiovaunupysäkki 410 m
Bussipysäkki 240 m
Juna-asema 510 m
Helsinki-Vantaan lentoasema 20 km
Monipuoliset palvelut yrityksille
Alberga Business Park tarjoaa kattavan valikoiman palveluita, jotka tukevat yritysten arkea ja viihtyvyyttä:
Aulapalvelu
Lounasravintola
Catering-palvelut kokouksiin ja tapahtumiin
Vuokrattavat kokoustilat
Edustussauna: tyylikäs saunaosasto yrityskäyttöön
Toimitilapalvelut: siivous, postitus ja muut yrityspalvelut
Autopesula pysäköintihallin yhteydessä
Hierontapalvelut
Pyörävarastot ja pukeutumistilat työmatkapyöräilijöille
Leppävaara on nopeasti kehittyvä yrityskeskittymä, joka tarjoaa runsaasti palveluita aivan Alberga Business Parkin läheisyydessä. Alueelta löytyy monipuolisia ravintoloita ja viihtyisiä kahviloita, jotka sopivat niin lounastauolle kuin asiakastapaamisiin. Liikunnan ystäville on tarjolla kuntosali, ja arjen tarpeisiin vastaavat kampaamo, parturi, ruokakauppa ja kioski. Lisäksi alueella toimii pesula ja autopesula, jotka helpottavat päivittäisiä askareita. Kulttuurin ja majoituksen osalta Leppävaarassa on kirjasto ja hotelli, ja suurempia ostoksia varten Kauppakeskus Sello tarjoaa laajan valikoiman liikkeitä. Terveyspalvelut ovat myös lähellä, sillä alueella sijaitsee lääkäriasema.
Vastuullisuus ja ympäristöystävällisyys
Alberga Business Park on suunniteltu kestävän kehityksen periaatteiden mukaisesti. Kiinteistöllä on kansainvälisen BREEAM-ympäristösertifioinnin Very Good -luokitus, joka kertoo energiatehokkaasta suunnittelusta, modernista talotekniikasta ja tehokkaasta kierrätyksestä.
Ota yhteyttä
Kiinnostuitko? Ota yhteyttä ja tule tutustumaan!
Toimitilavälityspalvelumme on tilanhakijalle maksuton.
Vapautuu
Kysy
Kerros
5
Ota yhteyttä
Logistila Oy
Kylätie 11-13, 00320 HELSINKI
Karoliina Turppo
Näytä puhelinnumero
050 345 3258
Pyydä lisätietoa
