Vuokrataan toimistotilat - Helsinki
Porkkalankatu 22, Ruoholahti, 00180 Helsinki #10848847
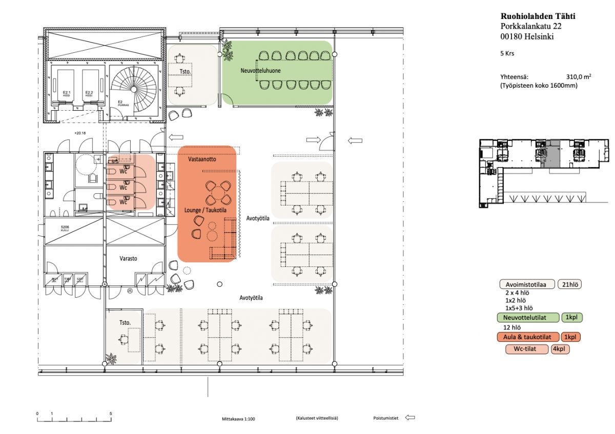
Vuokrataan tyyylikäs huonekonttori, jossa on myös pieni avotila keskellä tilaa lähellä keittiötä. 5 toimistohuonetta ja 4 eri kokoista omaa neuvottelutilaa. 2 wc:tä ja erillinen keittiö. Läpitalon huoneisto, josta ikkunat molemmin puolin tilaa Porkkalankadulle ja sisäpihalle.
Nykyaikainen toimistokiinteistö Ruoholahden Tähti sijaitsee keskeisellä paikalla, kehittyvässä liike-elämän keskuksessa Ruoholahdessa. Asiakasyritysten käytössä ovat monipuoliset palvelut kuten aula- ja pitopalvelu, lounasravintola sekä erikseen vuokrattavia neuvotteluhuoneita. Toimistokiinteistö Tähti sijaitsee lähellä Ruoholahden metroasemaa, joten julkiset liikenneyhteydet ovat hyvät.
Lisätietoja soita 020 730 4530 tai info@repoint.fi. Palvelumme on tilanhakijalle ilmainen.
Repoint Toimitilat Oy
Itälahdenkatu 22 B, 00210 Helsinki
Näytä puhelinnumero
020 730 4530
Lisätietoja soita Näytä puhelinnumero 020 730 4530 tai info@repoint.fi
https://repoint.fi/