Vuokrataan toimistotilat - Kerava
Kytömaantie 14, 02400 Kerava #10848841
Toimistoa Keravalla
Osoite
Kytömaantie 14, 02400 Kerava
Tilatyyppi
Toimistotilaa
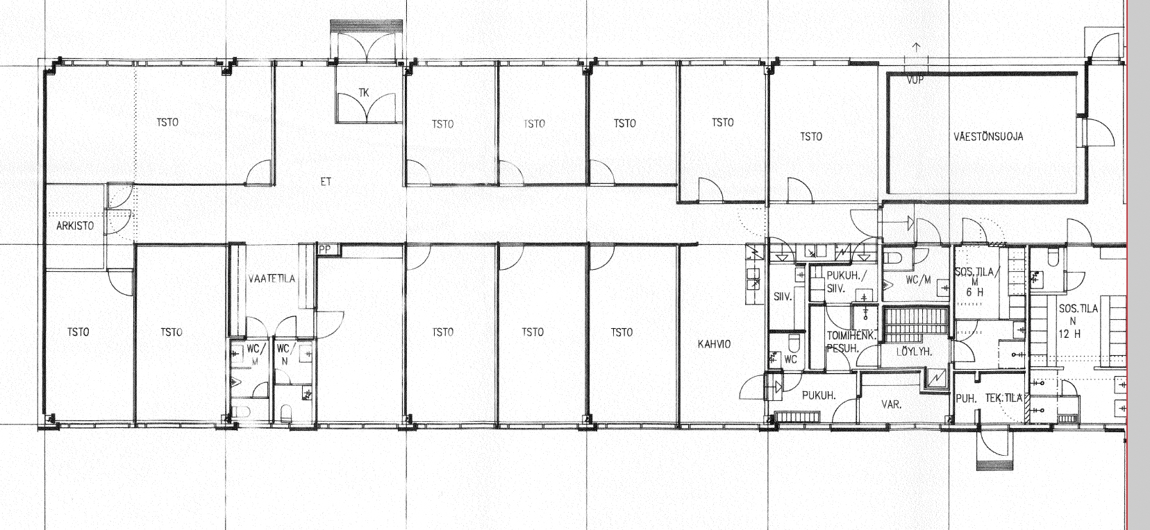
450 m2
Pohjapiirros
Vuokra
9,10 € / m² / kk + alv
Kiinteistö
Toimisto ja pukuhuonetilaa yhteensä n. 450 m². Kiinteistöllä hyvin paikoitustilaa autoille.
Toimisto on jäähdytetty.
Toimisto on jäähdytetty.
Vapautuu
Heti
Kerros
1
Energiatehokkuusluokka
Ei lain edellyttämää energiatodistusta
Katutasossa
Ota yhteyttä
ScanReal Oy LKV
Opus Business Park
Hitsaajankatu 24
00810 Helsinki
info@scanreal.fi
Puh:
Näytä puhelinnumero
020 730 8830
Sopivat toimitilat yhdellä otolla!
Kartoitamme toimitilatarpeesi ja etsimme yrityksellesi parhaiten sopivat vapaat toimitilat. Koska vuokranantajat maksavat palvelumme, on tämä yrityksellesi veloituksetonta.
Palvelumme on tilanhakijalle ilmainen
Pyydä lisätietoa
