Vuokrataan toimistotilat - Helsinki
Pursimiehenkatu 29-31, Punavuori, 00150 Helsinki #10848752
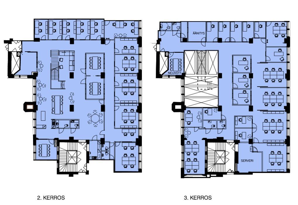
Vuokrataan kolmannen kerroksen 533m2 toimistotila Merikorttelista Punavuoresta. Tila koostuu työhuoneista, tiimitiloista ja neuvotteluhuoneista. Uniikki tilakokonaisuus dynaamisessa Merikorttelissa, trendikkäiden kahviloiden ja ravintoloiden lähellä. Tila remontoidaan vuokralaisen toiveiden mukaan. Osa ilmoituksen kuvista on yleiskuvia kiinteistön tiloista.
Alueella paljon laadukkaita ravintoloita ja kahviloita.
Pysäköintitilaa tarjolla korttelin omassa parkkihallissa sekä läheisissä pysäköintilaitoksissa.
Lisätietoja soita 020 730 4530 tai info@repoint.fi. Palvelumme on tilanhakijalle ilmainen.
Hissi
Repoint Toimitilat Oy
Itälahdenkatu 22 B, 00210 Helsinki
Näytä puhelinnumero
020 730 4530
Lisätietoja soita Näytä puhelinnumero 020 730 4530 tai info@repoint.fi
https://repoint.fi/