Vuokrataan toimistotilat - Helsinki
Paasivuorenkatu 3, Siltasaari, 00530 Helsinki #10848732
Vuokrataan 5. kerroksen toimistotila Siltasaaressa. Tiloissa on ilmastointi sekä nopeat tietoliikenneyhteydet. Erinomaiset liikenneyhteydet Hakaniementorilta. Ota yhteyttä ja sovi esittely, vuokrauspalvelumme on tilanhakijoille ilmainen.
Osoite
Paasivuorenkatu 3, 00530 Helsinki
Tilatyyppi
Toimistotilaa
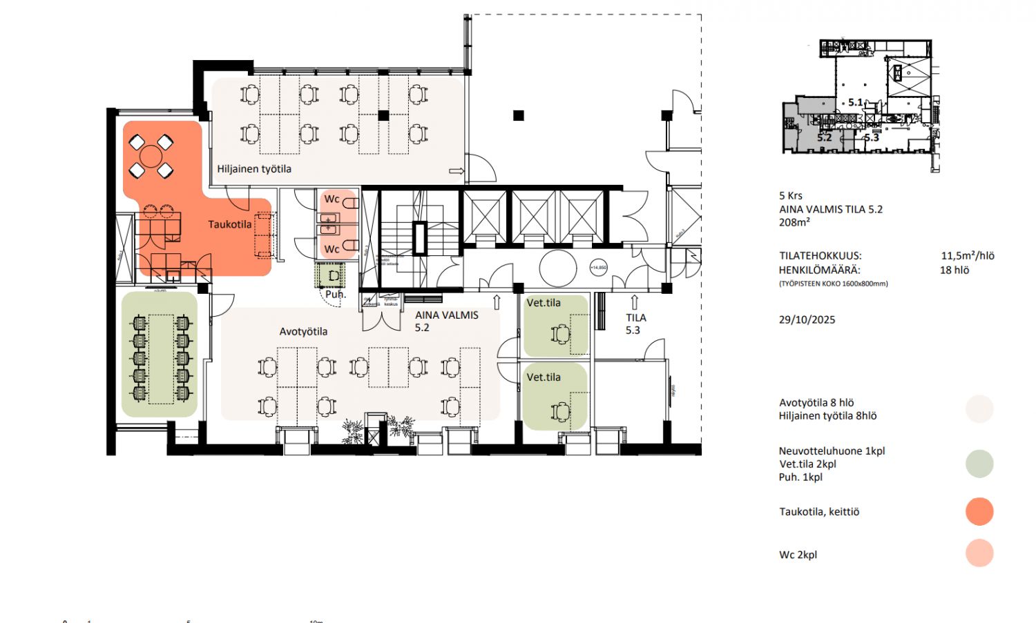
208 m2
Pohjapiirros
Kiinteistö
Jylhän tyylikäs toimitilakiinteistö hyvällä paikalla Helsingin Hakaniemessä.
Talo on peruskorjattu vuonna 2011 sen alkuperäistä tunnelmaa kunnioittaen. Esimerkiksi rakennuksen pankkisalin ja pääporrashuoneen luonnonkivilaatoitus ja jyhkeä tyyli on säilytetty tähän päivään. Kiinteistössä palvelee edustava tilaussauna, ja sisäpihalla on viihtyisä talvipuutarha. Ikkunanäkymät tiloista avautuvat Paasivuorenpuistikkoon.
Talo on peruskorjattu vuonna 2011 sen alkuperäistä tunnelmaa kunnioittaen. Esimerkiksi rakennuksen pankkisalin ja pääporrashuoneen luonnonkivilaatoitus ja jyhkeä tyyli on säilytetty tähän päivään. Kiinteistössä palvelee edustava tilaussauna, ja sisäpihalla on viihtyisä talvipuutarha. Ikkunanäkymät tiloista avautuvat Paasivuorenpuistikkoon.
Sijainti
Siltasaari
Pysäköinti
Autohalli
Kulkuyhteydet
Hyvät HSL yhteydet: metro, bussit ja ratikat.
Vapautuu
Heti
Kerros
5 / 7
Energiatehokkuusluokka
Ei lain edellyttämää energiatodistusta
Näkyvällä paikalla
Hissi
Ota yhteyttä
Senaatin Notariaatti Oy LKV
Lämmittäjänkatu 4 A
FIN-00880 Helsinki
Tel:
Näytä puhelinnumero
+358 9 7745 100
Pyydä lisätietoa
