Vuokrataan liiketilat - Helsinki
Itämerenkatu 21, Ruoholahti, 00180 Helsinki #10848726
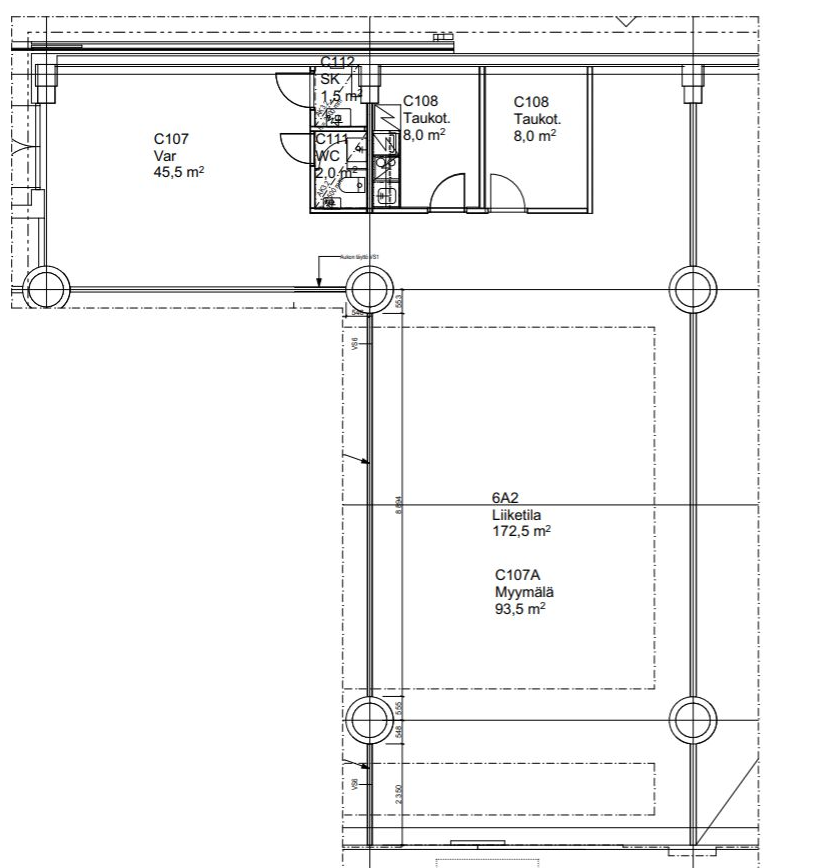
Vuokrataan Ruoholahdenkatu 21:stä katutason liiketila. Tilan takana minikeittö, wc sekä toimistohuone. Varastoalueelta suora yhteys lastauslaiturille. Ei sovellu ravintolatilaksi. Ota yhteyttä ja sovi esittely, vuokrauspalvelumme on tilanhakijoille maksuton.
Osoite
Itämerenkatu 21, 00180 Helsinki
Tilatyyppi
Liiketilaa
176 m2
Pohjapiirros
Palvelut
Kiinteistöstä löytyvät palvelut;
Auditorio / tapahtumatila
Aulapalvelut
Hotdesk -alue
Kuntosali
Lounasravintola / kahvila
Neuvottelutiloja
POOL-joustotilat
Parkkihalli
Sähköauton latauspiste
Pyöräparkki
Saunatilat
Wellness-palveluita
Päivittäistavarakauppa
Auditorio / tapahtumatila
Aulapalvelut
Hotdesk -alue
Kuntosali
Lounasravintola / kahvila
Neuvottelutiloja
POOL-joustotilat
Parkkihalli
Sähköauton latauspiste
Pyöräparkki
Saunatilat
Wellness-palveluita
Päivittäistavarakauppa
Vapautuu
Heti
Kerros
1
Ota yhteyttä
Senaatin Notariaatti Oy LKV
Lämmittäjänkatu 4 A
FIN-00880 Helsinki
Tel:
Näytä puhelinnumero
+358 9 7745 100
Pyydä lisätietoa
