Vuokrataan toimistotilat, työtilat - Helsinki
Kaupintie 11, Lassila, 00440 Helsinki #10848705
Erinomaisten yhteyksien päässä toimistotilaa vuokrattavana Helsingin Lassilassa! Hinta 999 €/kk
Osoite
Kaupintie 11, 00440 Helsinki
Tilatyyppi
Toimistotilaa
91 m2
Työtilaa
91 m2
Yhteensä
91 m2
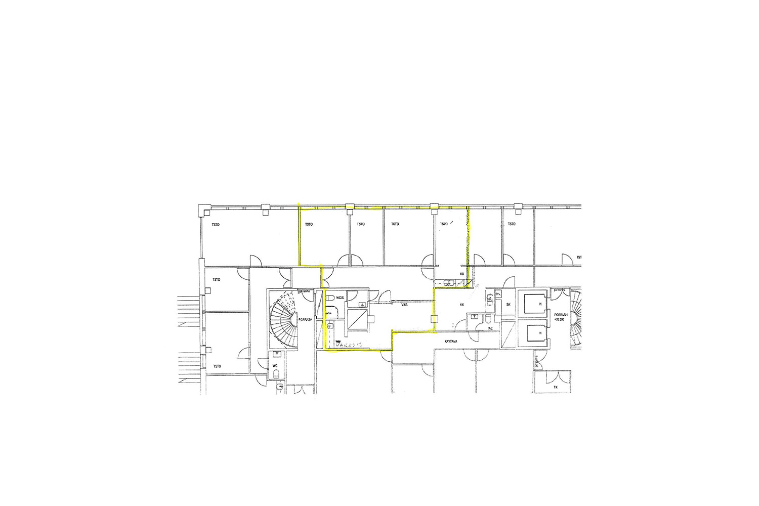
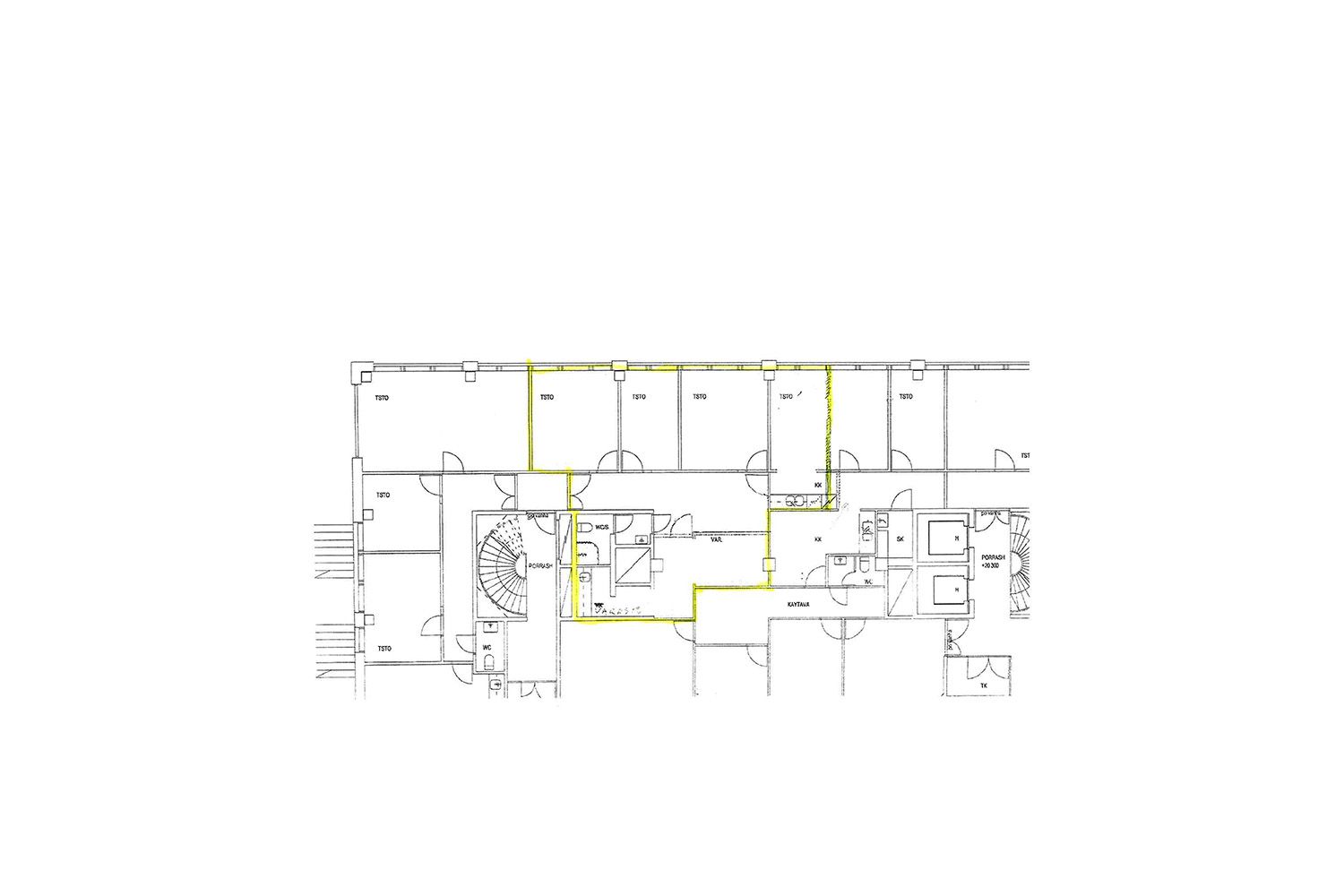
Pohjapiirros
Virtuaaliesittely
Vuokra
999 €/kk, alv 0%
Vuokraan sisältyy lämpö
Muuta
Erinomaisten yhteyksien päässä toimistotilaa vuokrattavana Helsingin Lassilassa!
Helsingin Lassilassa Pohjois- Haagassa vuokrattavana hyväkuntoista ja valoisaa toimistotilaa.
Tila sijaitsee ison toimistorakennuksen toisessa kerroksessa ja on pinta-alaltaan 91 m². Huoneiston sisäänkäynti Kaupintien puolelta (B-rappu) ja siellä on ikkunat sekä etupihan suuntaan, että Kaupintien suuntaan. Siisti ja hyväkuntoinen toimistotila, jossa 5 huonetta, keittiö, odotustila, wc sekä suihku. Lisäksi tilassa pieni ikkunaton tila, joka sopii hyvin varasto- tai arkistointitilaksi. Yhdessä huoneessa ilmalämpöpumppu (viilentävä) ja toisessa aukko viilennysjärjestelmälle.
Lämmitys ja vesi sisältyy vuokraan, mutta sähkö maksetaan kulutuksen mukaan ja se laskutetaan 2 kertaa vuodessa.
Tila soveltuu arvonlisäverovapaaseen käyttöön, mutta mikäli toimija on arvonlisäverovelvollinen lisätään vuokran arvonlisävero.
Autopaikkoja on mahdollista vuokrata rakennuksen parkkihallista hintaan 90 €/kk ja pihapaikkoja on myös 50 €/kk.
Loistavat liikenneyhteydet, kaikki julkisen liikenteen pysäkit löytyvät kävelyetäisyydeltä, mm. Pohjois-Haagan juna-asema.
Toimistotilaa loistavien yhteyksien päässä!
Kohdetiedot
Sijainti
Katuosoite: Kaupintie 11, 00440 Helsinki
Kaupunginosa: Lassila
Ympäristö: Lassilan yritys- ja toimistotaloja
Rakennus/huoneisto
Pinta-alat: noin 91 m²
Rakennustyyppi: Toimistotalo
Rakennusvuosi:1986
Energiatodistus: Ei lain vaatimaa todistusta
Huoneistoselitelmä: Toimistohuoneisto
Kunto, varusteet ja palvelut: Hyvä kunto. Eri kokoisia toimistohuoneita, WC, suihku ja keittiö sekä pieni varastotila
Pysäköinti: Paikoitustilaa parkkihallissa
Vapautuminen: Heti vapaa
Vuokrahinta ja kulut
Kuukausivuokra: 999 €/kk, alv 0%
Sähkö: Kulutuksen mukaan (laskutetaan 2 kertaa/vuosi)
Vesimaksu: Sisältyy vuokraan
Lämmitys: Kaukolämpö (sisältyy vuokraan)
Muut kulut: Minimisopimuskausi 12kk, vakuus 3kk vuokraa vastaava summa ja luottotietojen oltava kunnossa
Helsingin Lassilassa Pohjois- Haagassa vuokrattavana hyväkuntoista ja valoisaa toimistotilaa.
Tila sijaitsee ison toimistorakennuksen toisessa kerroksessa ja on pinta-alaltaan 91 m². Huoneiston sisäänkäynti Kaupintien puolelta (B-rappu) ja siellä on ikkunat sekä etupihan suuntaan, että Kaupintien suuntaan. Siisti ja hyväkuntoinen toimistotila, jossa 5 huonetta, keittiö, odotustila, wc sekä suihku. Lisäksi tilassa pieni ikkunaton tila, joka sopii hyvin varasto- tai arkistointitilaksi. Yhdessä huoneessa ilmalämpöpumppu (viilentävä) ja toisessa aukko viilennysjärjestelmälle.
Lämmitys ja vesi sisältyy vuokraan, mutta sähkö maksetaan kulutuksen mukaan ja se laskutetaan 2 kertaa vuodessa.
Tila soveltuu arvonlisäverovapaaseen käyttöön, mutta mikäli toimija on arvonlisäverovelvollinen lisätään vuokran arvonlisävero.
Autopaikkoja on mahdollista vuokrata rakennuksen parkkihallista hintaan 90 €/kk ja pihapaikkoja on myös 50 €/kk.
Loistavat liikenneyhteydet, kaikki julkisen liikenteen pysäkit löytyvät kävelyetäisyydeltä, mm. Pohjois-Haagan juna-asema.
Toimistotilaa loistavien yhteyksien päässä!
Kohdetiedot
Sijainti
Katuosoite: Kaupintie 11, 00440 Helsinki
Kaupunginosa: Lassila
Ympäristö: Lassilan yritys- ja toimistotaloja
Rakennus/huoneisto
Pinta-alat: noin 91 m²
Rakennustyyppi: Toimistotalo
Rakennusvuosi:1986
Energiatodistus: Ei lain vaatimaa todistusta
Huoneistoselitelmä: Toimistohuoneisto
Kunto, varusteet ja palvelut: Hyvä kunto. Eri kokoisia toimistohuoneita, WC, suihku ja keittiö sekä pieni varastotila
Pysäköinti: Paikoitustilaa parkkihallissa
Vapautuminen: Heti vapaa
Vuokrahinta ja kulut
Kuukausivuokra: 999 €/kk, alv 0%
Sähkö: Kulutuksen mukaan (laskutetaan 2 kertaa/vuosi)
Vesimaksu: Sisältyy vuokraan
Lämmitys: Kaukolämpö (sisältyy vuokraan)
Muut kulut: Minimisopimuskausi 12kk, vakuus 3kk vuokraa vastaava summa ja luottotietojen oltava kunnossa
Vapautuu
Heti
Rakennusvuosi
1986
Kerros
2 / 4
Hissi
Ota yhteyttä
Tilat.fi
KTM, LKV Antti Soivio
Näytä puhelinnumero
0400 446 553
OTM, LKV Riikka Tuominen
Näytä puhelinnumero
0400 551 790
KTM, LKV Maria-Sofia Puhakka
Näytä puhelinnumero
0400-150330
MBA, LKV Susanne Wallenius
Näytä puhelinnumero
0400-128877
Yrityksen virallinen nimi: LKV Tilat.fi Oy.
Toimitilojen välitykseen erikoistunut yritys.
Pyydä lisätietoa
