Lataa pohjapiirros [PDF]
Pohjapiirros
Lataa pohjapiirros [PDF]
Pohjapiirros
Vuokrataan varastotilat - Helsinki
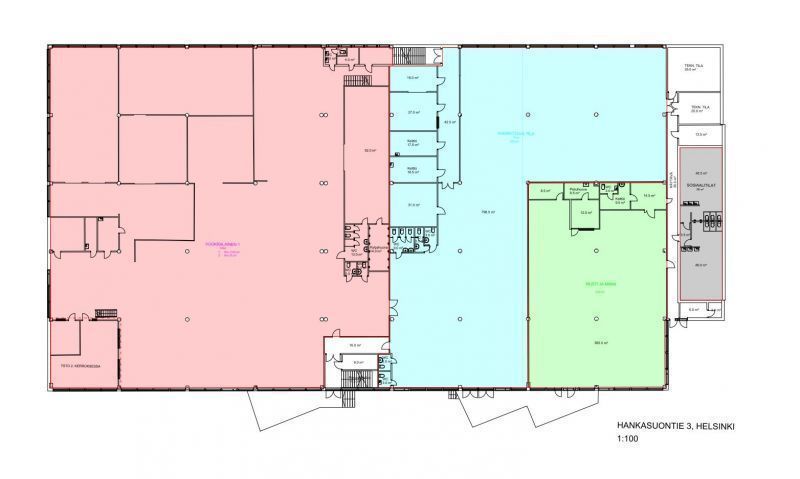
Hankasuontie 3, Konala, 00390 Helsinki #10848704
Vuokrattavana katutason varastotilaa lastauslaituriyhteydellä, tilan korkeus n. 5,5 metriä, lattiakantavuus 1.500 kg/m², pohjakuvassa 1.krs vihreällä. Lisäksi siistikuntoista ja valoisaa toimisto-/näyttely-/varastotilaa tarvittaessa 2. kerroksesta n. 300 m² - 2500 m². Myös 2. kerroksen tilat sijaitsevat osittain katutasossa ja niihin on suora lastauslaituriyhteys. Ota yhteyttä ja sovi esittely, vuokrauspalvelumme on tilanhakijoille ilmainen.
Osoite
Hankasuontie 3, 00390 Helsinki
Tilatyyppi
Varastotilaa
430 m2
Pohjapiirros
Sijainti
Kiinteistö sijaitsee Vihdintien varrella Konalan teollisuusalueella, ns. Konalan portissa.
Pysäköinti
Pihalla
Kulkuyhteydet
Linja-autot, Malminkartanon juna-asema.
Vapautuu
Heti
Energiatehokkuusluokka
Ei lain edellyttämää energiatodistusta
Ota yhteyttä
Senaatin Notariaatti Oy LKV
Lämmittäjänkatu 4 A
FIN-00880 Helsinki
Tel:
Näytä puhelinnumero
+358 9 7745 100
Pyydä lisätietoa
