Vuokrataan liiketilat - Helsinki
Itämerenkatu 21, Ruoholahti, 00180 Helsinki #10848698
Siistiä liiketilaa Ruoholahdesta
Osoite
Itämerenkatu 21, 00180 Helsinki
Tilatyyppi
Liiketilaa
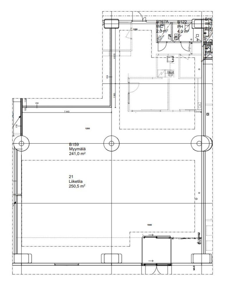
250 m2
Muuta
Vuokrattavana 250m² liiketila Helsingin Ruoholahdesta. Tila sijaitsee kiinteistön 1. kerroksessa ja tarjoaa erinomaiset puitteet monenlaiseen käyttöön.
Tila ei sovellu ravintolatilaksi.
Sijainti on erinomainen Ruoholahden palveluiden ja liikenneyhteyksien äärellä. Tilan naapuriliikkeitä ovat mm. Burger King, Fida ja Normal.
Tervetuloa tutustumaan, varaathan välittäjältä oman esittelyaikasi. Voit kysyä meiltä myös muita sopivia vaihtoehtoja, kauttamme löydät juuri teidän tarpeisiinne sopivat tilat. Palvelumme on tilanhakijalle veloitukseton!
Tila ei sovellu ravintolatilaksi.
Sijainti on erinomainen Ruoholahden palveluiden ja liikenneyhteyksien äärellä. Tilan naapuriliikkeitä ovat mm. Burger King, Fida ja Normal.
Tervetuloa tutustumaan, varaathan välittäjältä oman esittelyaikasi. Voit kysyä meiltä myös muita sopivia vaihtoehtoja, kauttamme löydät juuri teidän tarpeisiinne sopivat tilat. Palvelumme on tilanhakijalle veloitukseton!
Vapautuu
Kysy
Kerros
1
Ota yhteyttä
Tuloskiinteistöt Oy
Rikhardinkatu 2 B 5, 00130 Helsinki
Näytä puhelinnumero
(09) 6841 620
Nina Meyke
Commercial Real Estate Advisor
Näytä puhelinnumero
+358 50 466 1519
Jorma Ryynänen
Commercial Real Estate Advisor LKV, LVV
Näytä puhelinnumero
+358 40 708 4064
Pyydä lisätietoa
