Vuokrataan liiketilat - Helsinki
Itämerenkatu 21, Ruoholahti, 00180 Helsinki #10848697
Siistiä liiketilaa Ruoholahdesta
Osoite
Itämerenkatu 21, 00180 Helsinki
Tilatyyppi
Liiketilaa
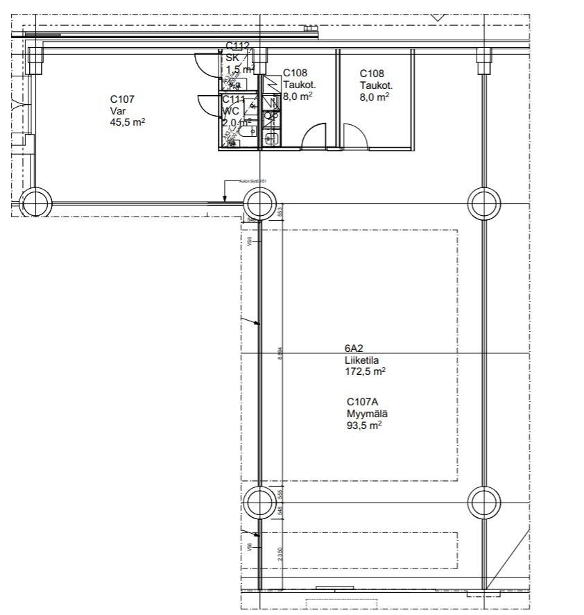
172 m2
Muuta
Vuokrattavana 172m² liiketila Helsingin Ruoholahdesta. Tila sijaitsee kiinteistön 1. kerroksessa ja tarjoaa erinomaiset puitteet monenlaiseen käyttöön. Tilassa on minikeittiö, wc sekä toimistohuone.
Tila ei sovellu ravintolatilaksi. Ja tila vapautuu 1.2.2026.
Sijainti on erinomainen Ruoholahden palveluiden ja liikenneyhteyksien äärellä.
Varastoalueelta suora yhteys lastauslaiturille.
Tervetuloa tutustumaan, varaathan välittäjältä oman esittelyaikasi. Voit kysyä meiltä myös muita sopivia vaihtoehtoja, kauttamme löydät juuri teidän tarpeisiinne sopivat tilat. Palvelumme on tilanhakijalle veloitukseton!
Tila ei sovellu ravintolatilaksi. Ja tila vapautuu 1.2.2026.
Sijainti on erinomainen Ruoholahden palveluiden ja liikenneyhteyksien äärellä.
Varastoalueelta suora yhteys lastauslaiturille.
Tervetuloa tutustumaan, varaathan välittäjältä oman esittelyaikasi. Voit kysyä meiltä myös muita sopivia vaihtoehtoja, kauttamme löydät juuri teidän tarpeisiinne sopivat tilat. Palvelumme on tilanhakijalle veloitukseton!
Vapautuu
Kysy
Kerros
1
Ota yhteyttä
Tuloskiinteistöt Oy
Rikhardinkatu 2 B 5, 00130 Helsinki
Näytä puhelinnumero
(09) 6841 620
Nina Meyke
Commercial Real Estate Advisor
Näytä puhelinnumero
+358 50 466 1519
Jorma Ryynänen
Commercial Real Estate Advisor LKV, LVV
Näytä puhelinnumero
+358 40 708 4064
Pyydä lisätietoa
