Myydään toimistotilat, liiketilat, näyttelytilat, tuotantotilat, varastotilat, työtilat, tontti, autotalli/-hallitilat - Masku
Teollisuuskaari 8 Masku, 21250 Masku #10848659
Teollisuushalli *Lämmintä & kylmää hallia *Iso piha *Kulkuportti
Osoite
Teollisuuskaari 8 Masku, 21250 Masku
Tilatyyppi
Toimistotilaa
42,5 m2
Liiketilaa
285 m2
Näyttelytilaa
285 m2
Tuotantotilaa
285 m2
Varastotilaa
285 m2
Työtilaa
285 m2
Tontti
3216 m2
Autotalli/-hallitilaa
285 m2
Yhteensä
285 m2
Myyntihinta
119000
Kiinteistö
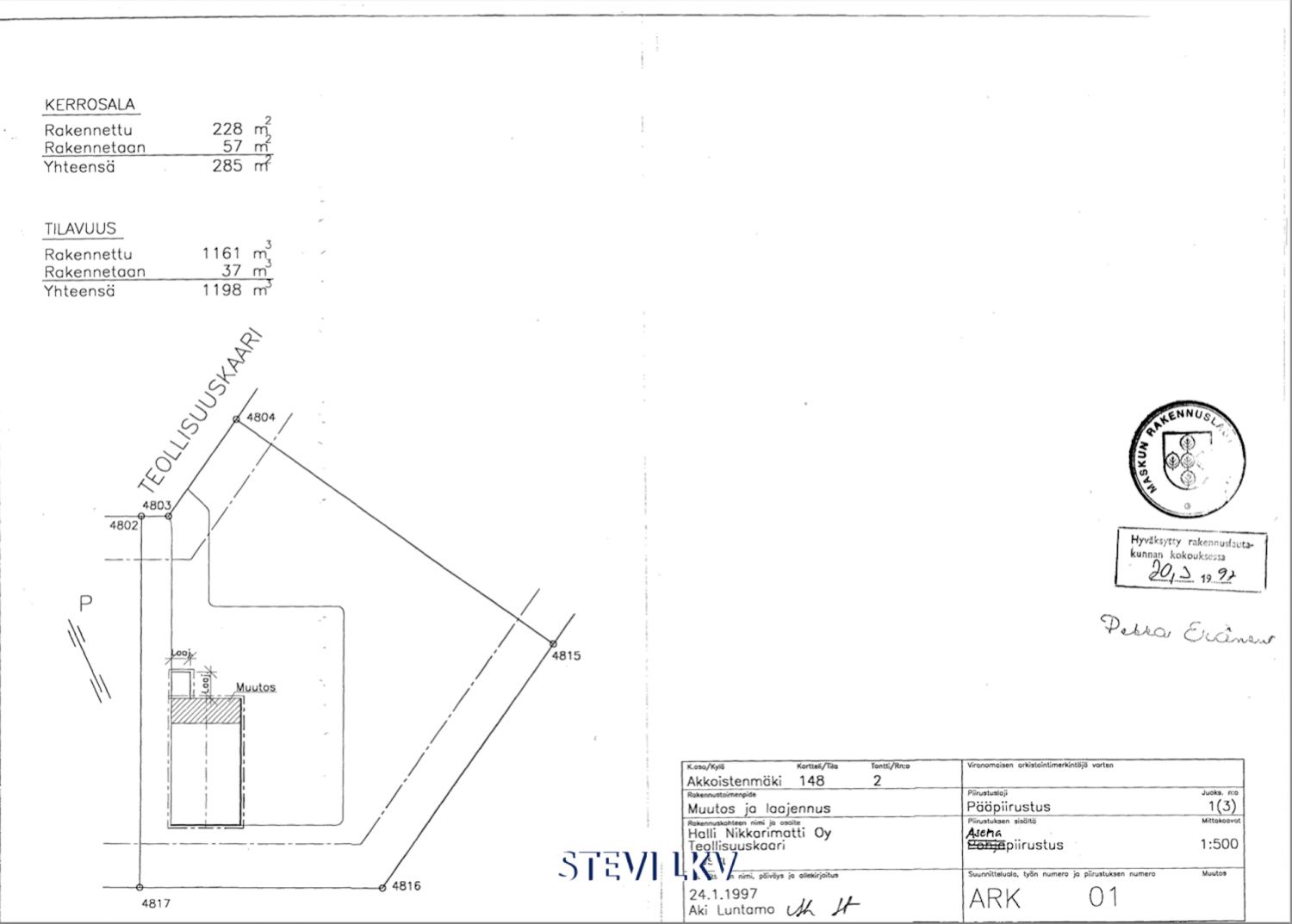
Kiinteistöllä sijaitsee vuonna 1990 rakennettu halli, joka on laajennettu 1997 (öljypoltin osa ja 2. kerroksen toimisto).
Iso tontti ja piha. Ajoliittymässä on ajoportti.
Tontin koko 3 216m2 ja oma tontti.
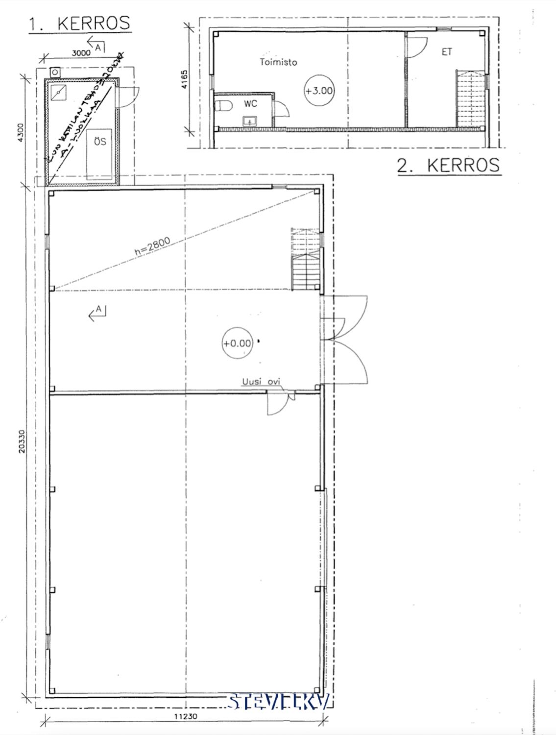
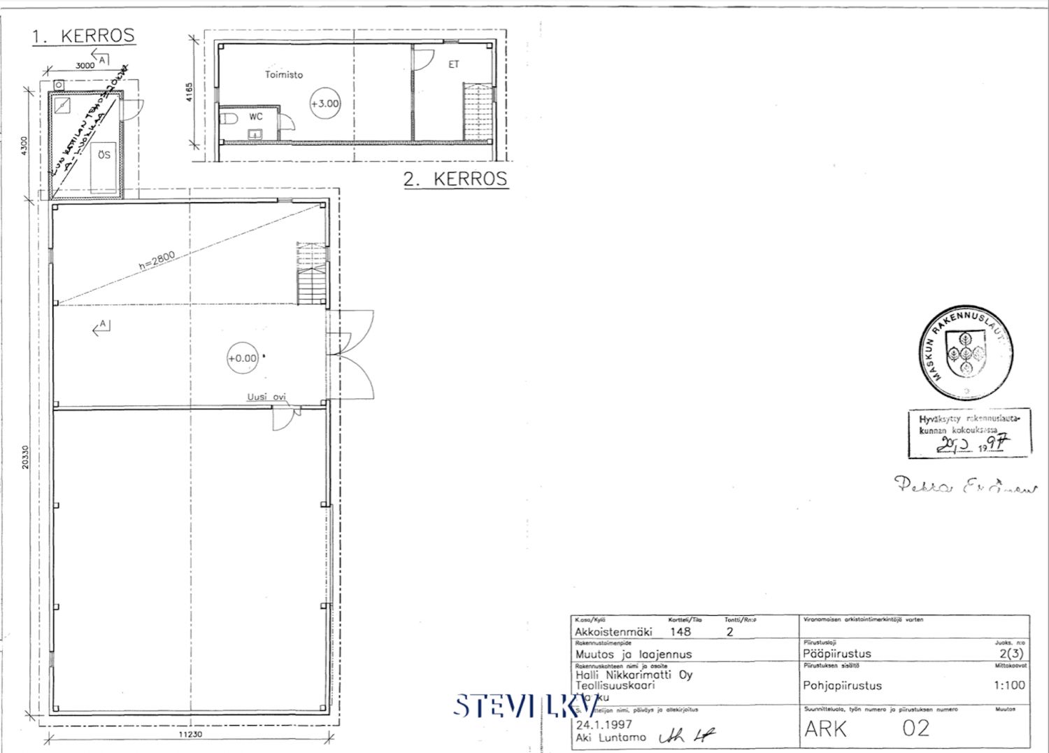
Hallin kerrosala on 285m2.
Kiinteistön koko rakennusoikeus on 804m2 eli rakennusoikeutta on vielä reilusti jäljellä noin 519m2.
Hallin oikeassa reunassa on lämmin / betonilattialla oleva hallitila noin 87m2.
2. kerroksen toimisto & wc on noin 42,5m2.
Kylmä halli noin 131m2.
Lämpimän hallin lämmitykseen on öljylämmitys (vesikiertoiset patterit) ja ilmalämpöpumppu.
Ennen kuin kytkee lämmitykset päälle, niin kannattaa tilata huolto molempiin laitteisiin, koska eivät ole hetkeen olleet vuoteen päällä (vesikiertoisista pattereista on vedet päästetty pois).
Ole yhteydessä, niin mennään porukassa katsomaan.
Toimitila terveisin,
Stefan Virtanen
Kiinteistönvälittäjä | LKV | KTM | Yrittäjä
stefan@stevilkv.com | 0400 999 900
www.stevilkv.com
Iso tontti ja piha. Ajoliittymässä on ajoportti.
Tontin koko 3 216m2 ja oma tontti.
Hallin kerrosala on 285m2.
Kiinteistön koko rakennusoikeus on 804m2 eli rakennusoikeutta on vielä reilusti jäljellä noin 519m2.
Hallin oikeassa reunassa on lämmin / betonilattialla oleva hallitila noin 87m2.
2. kerroksen toimisto & wc on noin 42,5m2.
Kylmä halli noin 131m2.
Lämpimän hallin lämmitykseen on öljylämmitys (vesikiertoiset patterit) ja ilmalämpöpumppu.
Ennen kuin kytkee lämmitykset päälle, niin kannattaa tilata huolto molempiin laitteisiin, koska eivät ole hetkeen olleet vuoteen päällä (vesikiertoisista pattereista on vedet päästetty pois).
Ole yhteydessä, niin mennään porukassa katsomaan.
Toimitila terveisin,
Stefan Virtanen
Kiinteistönvälittäjä | LKV | KTM | Yrittäjä
stefan@stevilkv.com | 0400 999 900
www.stevilkv.com
Sijainti
Mäksmäki, Maskun ja Naantalin läheisyydessä
Ympäristö
Teollisuutta ja liiketoimintaa
Pysäköinti
Pihalla
Palvelut
Alueen palvelut
Kulkuyhteydet
Hyvät kulkuyhteydet
Muuta
Kysy lisää Stevi puh. 0400 999 900 / stefan@stevilkv.com
Vapautuu
Heti
Kerros
1 / 2
Huoneiden lukumäärä
3
Ota yhteyttä
Stevi LKV | Kiinteistönvälitys & Vuokravälitys
Stefan Virtanen
LKV, KTM, Yrittäjä
Näytä puhelinnumero
0400 999 900
stefan@stevilkv.com
Reipasta palvelua ja hyvää konsultointia.
Soita tai laita spostia ja kerro tila tarpeesi; tämä on ilmainen palvelu tilaa etsivälle (vuokranantaja maksaa palkkion).
Toimitilojen myynti & vuokraus.
Pyydä lisätietoa
