Vuokrataan toimistotilat - Helsinki
Keskuskatu 1B, Keskusta, 00100 Helsinki #10848656
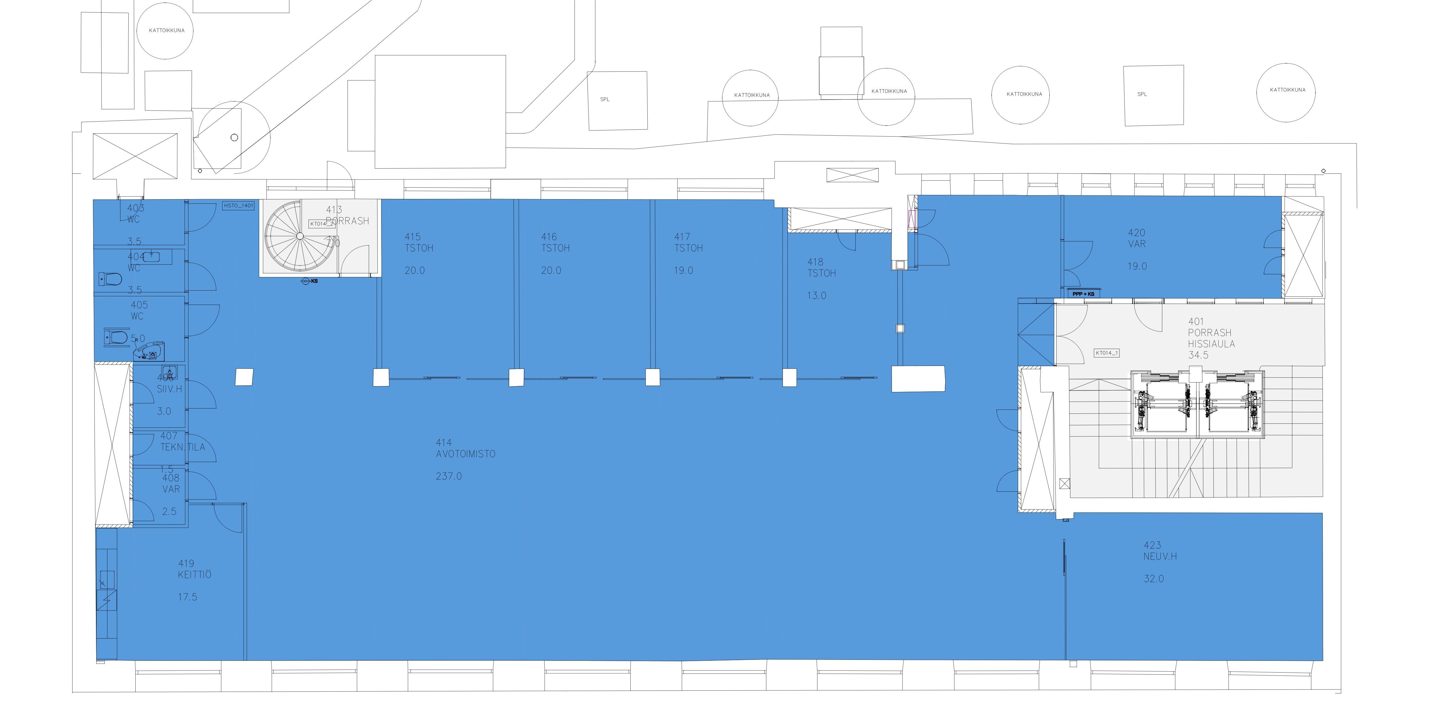
Valoisa ja tyylikäs, saneerattu 403 m² avotoimisto upean arvokiinteistön neljännestä kerroksesta.
Osoite
Keskuskatu 1B, 00100 Helsinki
Tilatyyppi
Toimistotilaa
403 m2
Pohjapiirros
Kiinteistö
Tyylikäs, nykyisellään avotilasta ja muutmasta toimitsohuoneesta koostuva toimistotila Keskuskatu 1B:n neljännessä kerroksessa. Tilassa lisäksi pieni keittiö, wc-tilat ja pieni varasto.
Helsingin Keskuskatu 1B on Eliel Saarisen vuonna 1921 suunnittelema arvokiinteistö, joka sijaitsee Helsingin business-keskustan ytimessä, keskustan tyylikkäimmän kävelykadun varrella. Kohteen tilat ovat pääosin erikokoisia toimistotiloja sekä katutason liiketilaa. Vuokrattavat toimistotilat on modernisoitu muutama vuosi sitten, kiinteistön arvokkuutta kunnioittaen.
Helsingin Keskuskatu 1B on Eliel Saarisen vuonna 1921 suunnittelema arvokiinteistö, joka sijaitsee Helsingin business-keskustan ytimessä, keskustan tyylikkäimmän kävelykadun varrella. Kohteen tilat ovat pääosin erikokoisia toimistotiloja sekä katutason liiketilaa. Vuokrattavat toimistotilat on modernisoitu muutama vuosi sitten, kiinteistön arvokkuutta kunnioittaen.
Kulkuyhteydet
Metroasema 400 m, Raitiovaunupysäkki 100 m, Bussipysäkki 100 m, Juna-asema 400 m, Lentoasema 19,4 km
Vapautuu
Heti
Kerros
4
Energiatehokkuusluokka
Ei lain edellyttämää energiatodistusta
Näkyvällä paikalla
Hissi
Ota yhteyttä
ScanReal Oy LKV
Opus Business Park
Hitsaajankatu 24
00810 Helsinki
info@scanreal.fi
Puh:
Näytä puhelinnumero
020 730 8830
Sopivat toimitilat yhdellä otolla!
Kartoitamme toimitilatarpeesi ja etsimme yrityksellesi parhaiten sopivat vapaat toimitilat. Koska vuokranantajat maksavat palvelumme, on tämä yrityksellesi veloituksetonta.
OTA YHTEYTTÄ - SOVI NÄYTTÖ!
Kaikki kohteemme eivät ole netissä, kerro tilatarpeesi niin kartoitamme vaihtoehdot.
Palvelumme on tilanhakijalle ilmainen
Pyydä lisätietoa
