Vuokrataan toimistotilat - Helsinki
Annankatu 27, Kamppi, 00100 Helsinki #10848644
Tyylikäs viidennen kerroksen 299 m² toimisto keskeiseltä paikalta Annankadulta.
Osoite
Annankatu 27, 00100 Helsinki
Tilatyyppi
Toimistotilaa
299 m2
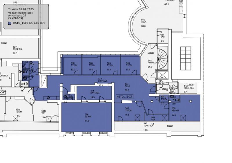
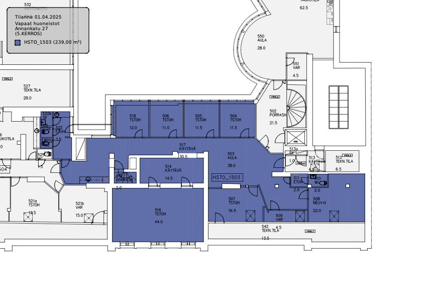
Pohjapiirros
Kiinteistö
Tyylikäs 5. kerroksen toimistokokonaisuus Annankadulta. Tilaan kuuluu 239 m² toimisto sekä 6. kerroksen 60 m² neuvottelutilan sisältävä torni.
Tila on aiemmin toiminut asianajotoimistona, ja se koostuu useista huoneista, pienestä keittiöstä ja wc-tiloista.
Arvokiinteistön ainutlaatuinen tunnelma sekä loistava sijainti Kampissa. Annankatu 27 on kaunis arvokiinteistö erinomaisella paikalla Kampissa keskustan palveluiden äärellä. Kiinteistössä on tarjolla monipuolista toimitilaa. Kiinteistössä käytetään vihreää kiinteistösähköä
Tila on aiemmin toiminut asianajotoimistona, ja se koostuu useista huoneista, pienestä keittiöstä ja wc-tiloista.
Arvokiinteistön ainutlaatuinen tunnelma sekä loistava sijainti Kampissa. Annankatu 27 on kaunis arvokiinteistö erinomaisella paikalla Kampissa keskustan palveluiden äärellä. Kiinteistössä on tarjolla monipuolista toimitilaa. Kiinteistössä käytetään vihreää kiinteistösähköä
Pysäköinti
Useita pysäköintilaitoksia kohtuullisen matkan päässä.
Palvelut
Mm. Kampin keskus lyhyen matkan päässä.
Kulkuyhteydet
Hyvällä paikalla Kampissa, lähellä metro- ja bussiasemaa. Metroasema 400 m, Raitiovaunupysäkki 200 m, Bussipysäkki 200 m, Juna-asema 500 m, Lentoasema 20,4 km
Vapautuu
Heti
Kerros
5
Energiatehokkuusluokka
Ei lain edellyttämää energiatodistusta
Näkyvällä paikalla
Hissi
Ota yhteyttä
ScanReal Oy LKV
Opus Business Park
Hitsaajankatu 24
00810 Helsinki
info@scanreal.fi
Puh:
Näytä puhelinnumero
020 730 8830
Sopivat toimitilat yhdellä otolla!
Kartoitamme toimitilatarpeesi ja etsimme yrityksellesi parhaiten sopivat vapaat toimitilat. Koska vuokranantajat maksavat palvelumme, on tämä yrityksellesi veloituksetonta.
OTA YHTEYTTÄ - SOVI NÄYTTÖ!
Kaikki kohteemme eivät ole netissä, kerro tilatarpeesi niin kartoitamme vaihtoehdot.
Palvelumme on tilanhakijalle ilmainen
Pyydä lisätietoa
