Vuokrataan liiketilat, tuotantotilat, varastotilat - Kuopio
Hallitila & Varastotila @ Kellolahdentie 9, Saarijärvi B-Alue, 70460 Kuopio #10848548
Halli- ja varastotila
Osoite
Hallitila & Varastotila @ Kellolahdentie 9, 70460 Kuopio
Tilatyyppi
Liiketilaa
239 m2
Tuotantotilaa
239 m2
Varastotilaa
239 m2
Yhteensä
239 m2
Kiinteistö
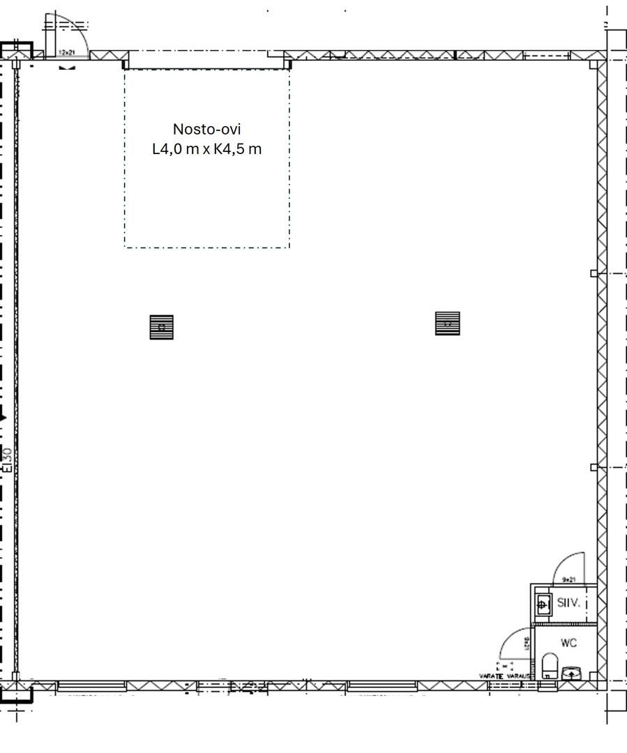
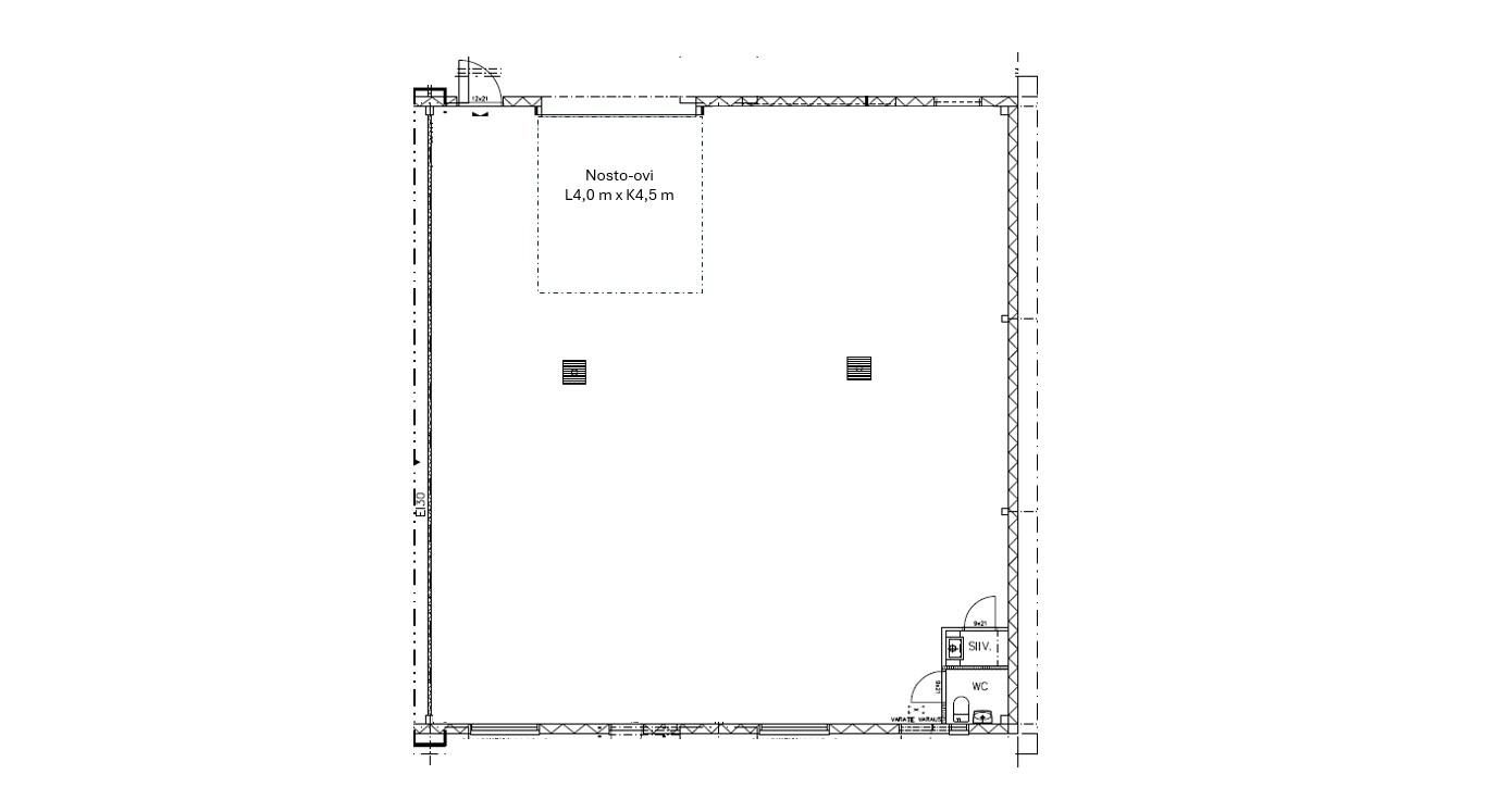
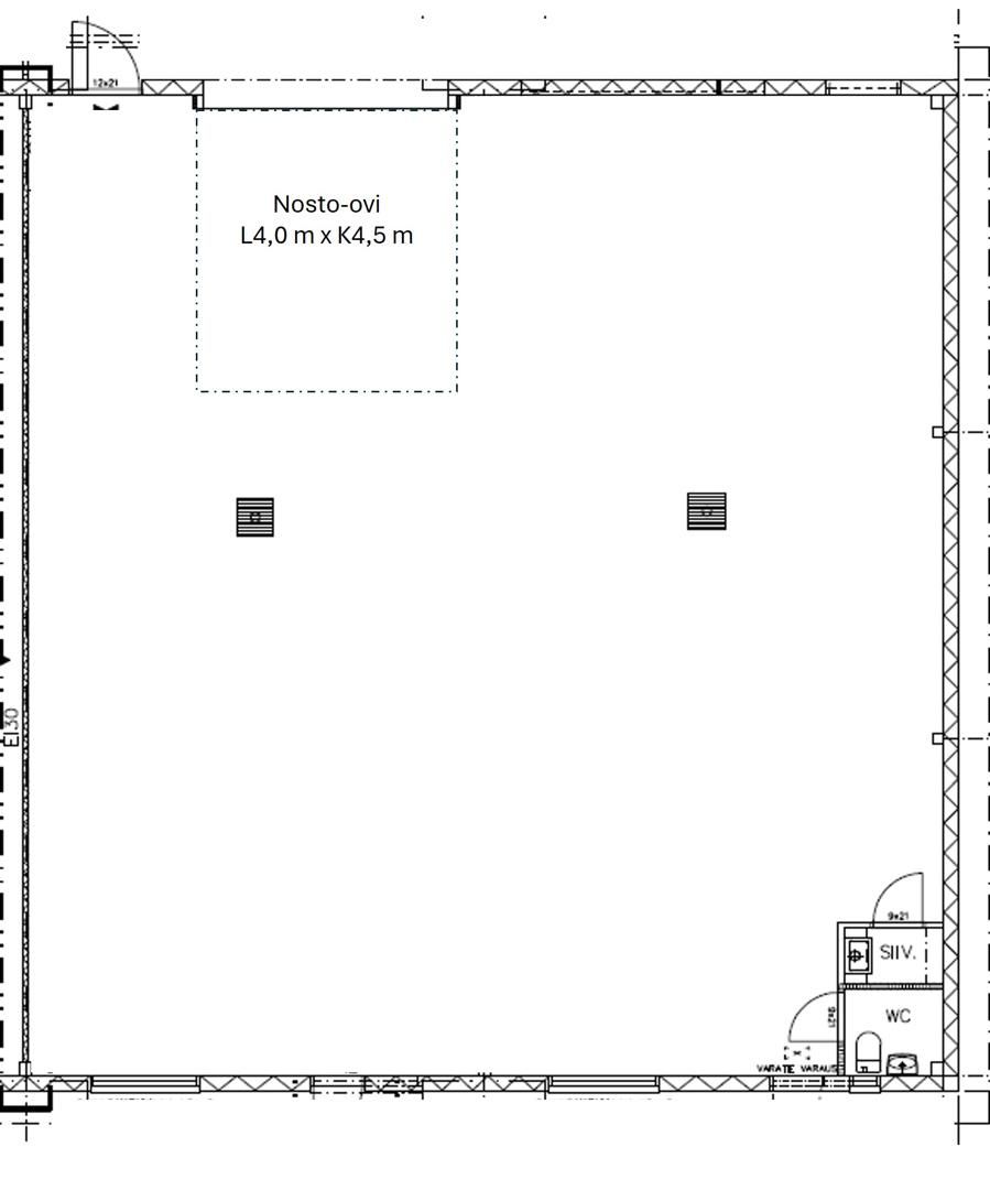
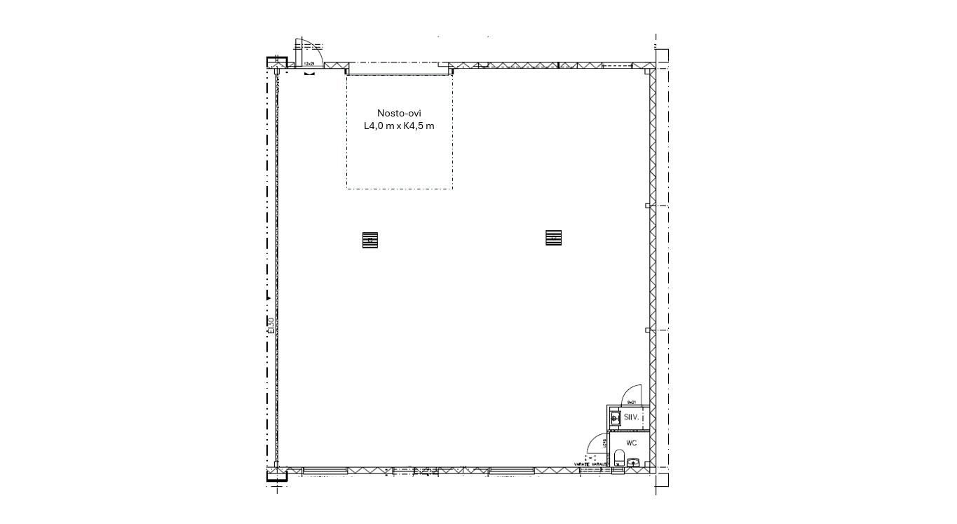
Hallitila ja/tai varastotila n. 239 m²
Kellolahdentien ja Liipasintien risteyksessä
Pian vapautuva siisti hallitilakokonaisuus!
Vuokrattavana tasokas ja täydellinen kokonaisuus yrittäjälle/yritykselle, joka tarvitsee samassa paketissa hallitilaa ja asianmukaiset sos. tilat sekä vaivattomat kulkuyhteydet.
Tilat soveltuvat hyvin muun muassa kevyeen tuotantoon, varastointiin, verkkokaupalle, myynti- ja asiakaspalveluun.
Kokonaisuus on tasokas ja fasiliteetit ovat kunnossa.
Kokonaisuus sisältää mm:
erillinen käyntiovi
nosto-ovi L4000 x K4500
sisäkorkeus n. 5,2 metriä
hyvä valaistus
siisti tasainenlattia
öljyn- hiekanerotuskaivot
kaukolämpö
lämmöntalteenotto
koneellinen ilmanvaihto
vesipisteitä
voimavirtapistokkeita 16A
WC ja SK
Parkkipaikat seinustalla ja piha-alueella.
Kiinteistö ja sijainti
Kokonaisuus on myös ulkopäin siisti ja ajanmukainen. Piha-alue on asfaltoitu ja pihaan on helppo kurvata suoraan Kellolahdentieltä.
Kellolahdentie on pääväylä Moottoritieltä ja kaupungista tultaessa. Liipasintie on Saarijärven B-alueen puolella ennen Suurahontien liikennevaloja.
Kiinteistön päätyyn voi laittaa näkyvälle paikalle valomainoksen tai logon.
Liipasintien yritysalue on tunnettu ja alueella on paljon palveluyrityksiä.
Soita! Puidaan lisää ja sovitaan katsastusaika.
Kellolahdentien ja Liipasintien risteyksessä
Pian vapautuva siisti hallitilakokonaisuus!
Vuokrattavana tasokas ja täydellinen kokonaisuus yrittäjälle/yritykselle, joka tarvitsee samassa paketissa hallitilaa ja asianmukaiset sos. tilat sekä vaivattomat kulkuyhteydet.
Tilat soveltuvat hyvin muun muassa kevyeen tuotantoon, varastointiin, verkkokaupalle, myynti- ja asiakaspalveluun.
Kokonaisuus on tasokas ja fasiliteetit ovat kunnossa.
Kokonaisuus sisältää mm:
erillinen käyntiovi
nosto-ovi L4000 x K4500
sisäkorkeus n. 5,2 metriä
hyvä valaistus
siisti tasainenlattia
öljyn- hiekanerotuskaivot
kaukolämpö
lämmöntalteenotto
koneellinen ilmanvaihto
vesipisteitä
voimavirtapistokkeita 16A
WC ja SK
Parkkipaikat seinustalla ja piha-alueella.
Kiinteistö ja sijainti
Kokonaisuus on myös ulkopäin siisti ja ajanmukainen. Piha-alue on asfaltoitu ja pihaan on helppo kurvata suoraan Kellolahdentieltä.
Kellolahdentie on pääväylä Moottoritieltä ja kaupungista tultaessa. Liipasintie on Saarijärven B-alueen puolella ennen Suurahontien liikennevaloja.
Kiinteistön päätyyn voi laittaa näkyvälle paikalle valomainoksen tai logon.
Liipasintien yritysalue on tunnettu ja alueella on paljon palveluyrityksiä.
Soita! Puidaan lisää ja sovitaan katsastusaika.
Vapautuu
Kysy
Kerros
Katutaso
Ota yhteyttä
LogisTila Oy
Ankkuritie 1, 70460 KUOPIO
Timo Puustinen
Näytä puhelinnumero
0400 33 00 30
Pyydä lisätietoa
