Vuokrataan varastotilat - Helsinki
Mekaanikonkatu 1, Herttoniemi, 00800 Helsinki #10848545
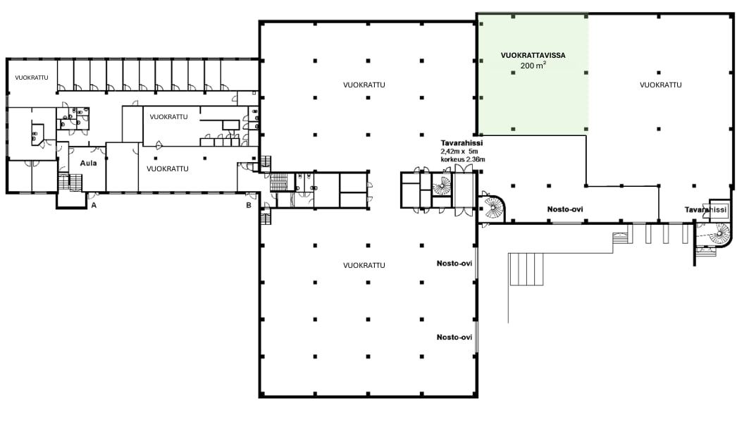
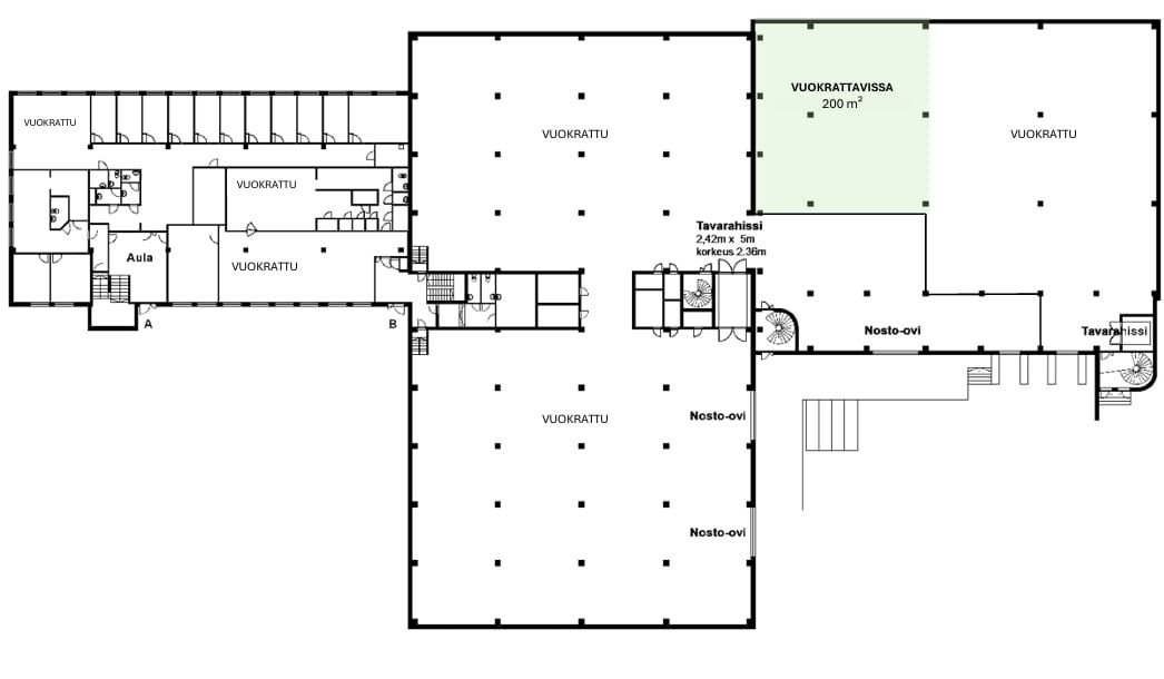
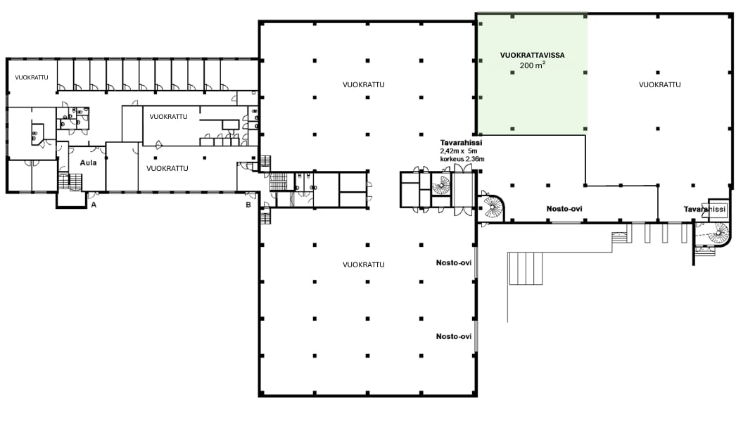
Nyt vuokrattavissa varasto kuuden metrin kattokorkeudella ja lastaslaituriyhteydellä. Varasto voidaan vuokrata myös 182 m2 toimistotilan kanssa. Mekaanikonkatu 1 sijaitsee Helsingin Herttoniemessä. Paikalle pääset helposti niin julkisilla kuin omalla autolla. Julkisten liikennevälineiden osalta kohteen lähettyvillä on bussi- ja metroyhteydet ja alueella on hyvät pysäköintimahdollisuudet autoileville. Lisäksi lähistöllä toimii ravintoloita sekä ostos- ja palvelukeskus Hertsi, joten palvelut ovat ykkösluokkaa.
Me Croisettella autamme teitä löytämään teille parhaat tilat! Olemme puolueettomia asiantuntijoita ja tunnemme toimitilamarkkinat, talot sekä tilat vankalla kokemuksella. Meillä on välityksessä kaikki toimitilat ja tiedämme niiden alustavat vuokratasot.
Tehtävämme on tehdä toimitilahaustanne onnistunutta ja helppoa. Saamme palkkiomme kiinteistönomistajalta, joten sinulle palvelumme on täysin maksuton. Jos kiinnostuit, ota yhteyttä!
Croisette Real Estate Partner
Erottajankatu 5 A 6, 00130 Helsinki
Näytä puhelinnumero
+358 400 585 857
Croisette Vuokraus
Näytä puhelinnumero
+358400585857
