Vuokrataan toimistotilat - Helsinki
Pukinmäenaukio 2, Pukinmäki, 00720 Helsinki #10848364
Pukinmäenaukio 2 - Toimisto 76 - 487 m² (esim. väistötilaksi)
Osoite
Pukinmäenaukio 2, 00720 Helsinki
Tilatyyppi
Toimistotilaa
76 - 487 m2
Pohjapiirros
Kiinteistö
Vuokrattavana monipuoliset toimitilat Helsingin Pukinmäessä
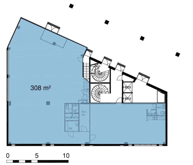
Katutasossa:
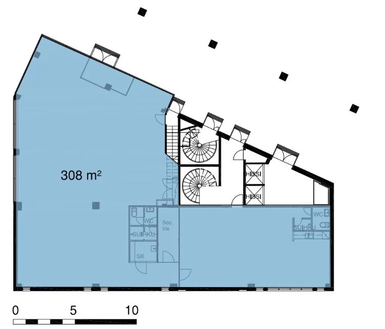
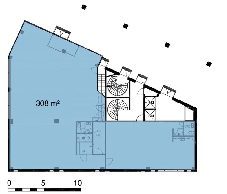
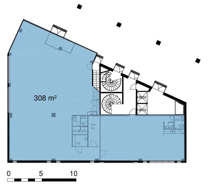
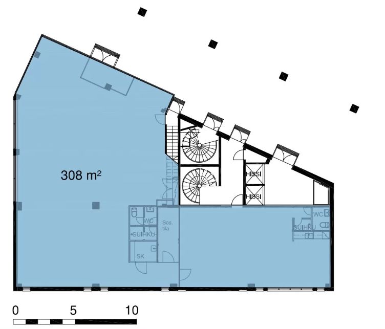
Avara 308 m² tila, ihanteellinen kirpputorille, harrastustoimintaan tai esimerkiksi tanssi- ja joogastudioksi sekä lasten kerhoille.
Toimistotilat:
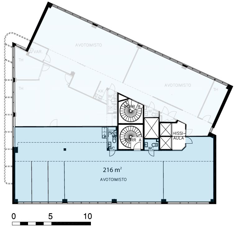
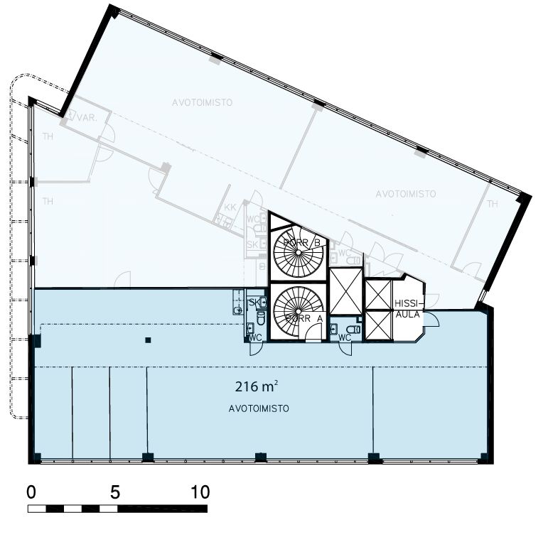
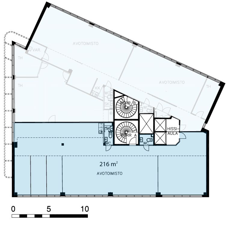
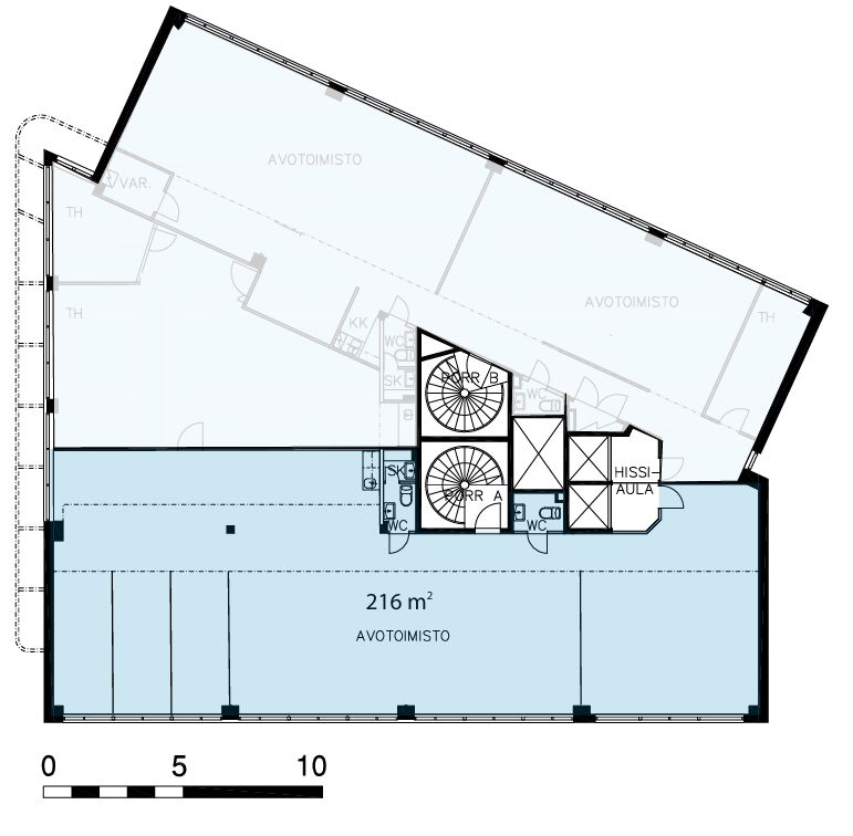
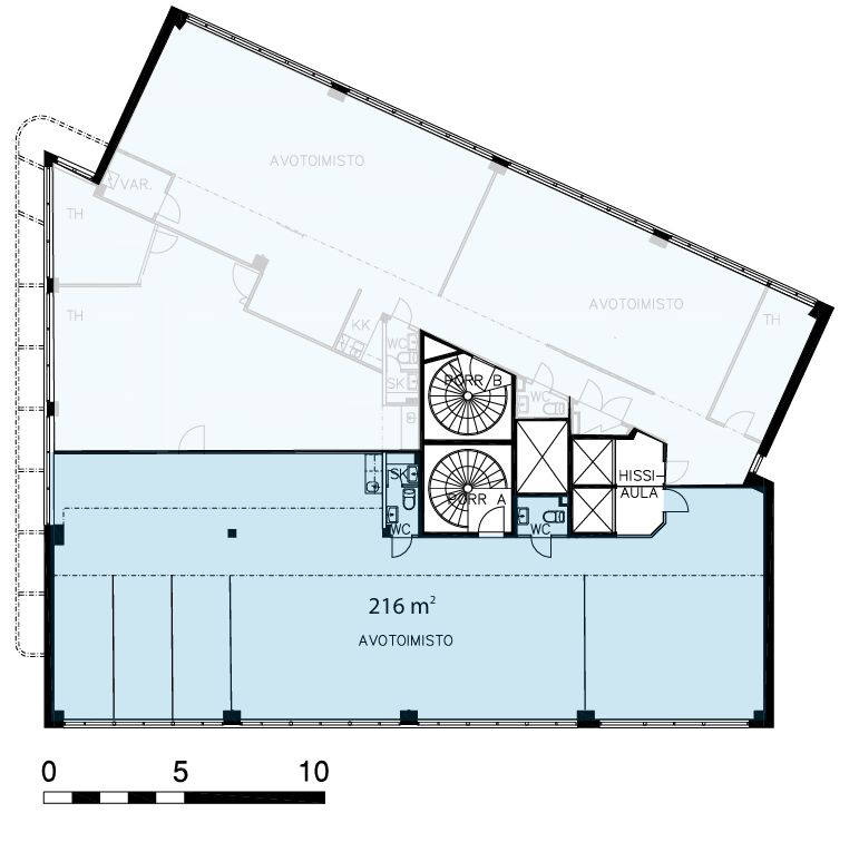
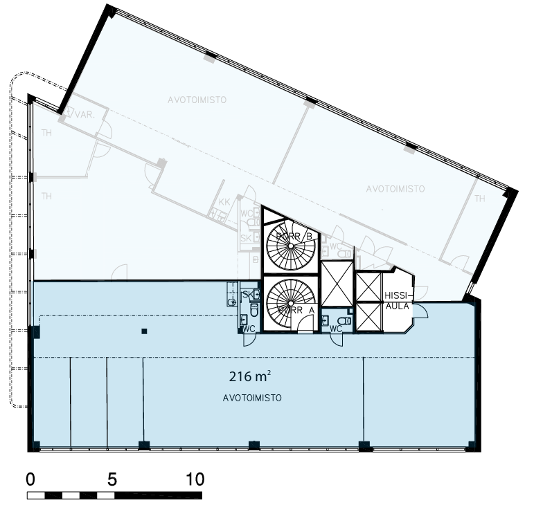
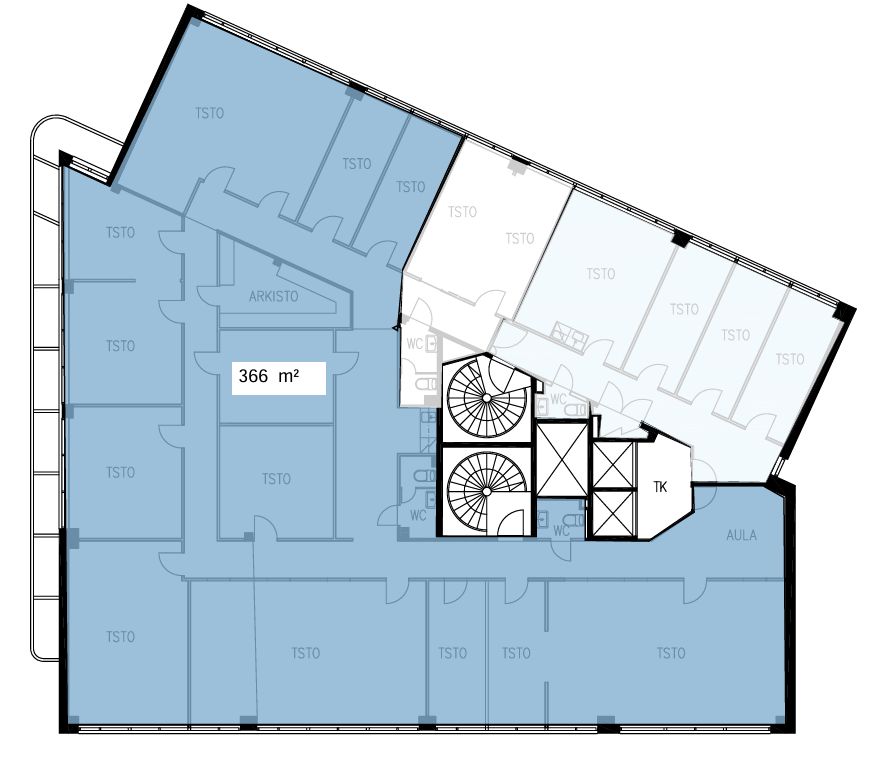
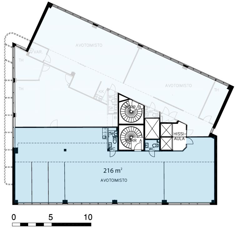
2. kerros: 216 m² ja 271 m²
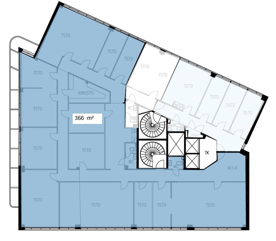
3.–5. kerros: tiloja alkaen 76 m²
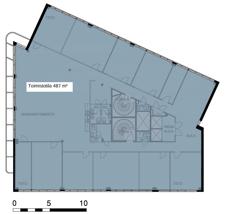
6. kerros: vapautumassa 487 m² kokonaisuus
Kaikissa toimistotiloissa on jäähdytys, kohtuullinen vuokra ja mahdollisuus toteuttaa sekä monitila- että huonetoimistoratkaisuja. Tilat sopivat myös väistötiloiksi.
Huomioithan, että tämän kohteen vuokrasopimus voi olla voimassa toistaiseksi 3 kk:n irtisanomisajalla.
Sijainti – Erinomainen saavutettavuus
Toimitilat sijaitsevat Pukinmäen juna-aseman ja Kehä I:n välittömässä läheisyydessä.
Juna-asemalle: 200 m
Linja-autopysäkille: 80 m
Lentoasemalle: alle 12 km
Junat kulkevat Pukinmäestä 10 minuutin välein Helsingin keskustaan ja lentokentälle. Kehä I:n bussiyhteydet vievät kätevästi sekä länteen että itään aina Otaniemeen ja Itäkeskukseen saakka. Helppo tulla myös autolla, pyörällä tai jalan.
Palvelut
Autopaikkoja vuokrattavissa
Lukittu pyörävarasto
Pukuhuoneet ja suihkut pyöräilijöille ja lenkkeilijöille
Vuokralaisten käytössä sauna- ja vapaa-ajantila
Ota yhteyttä
Kiinnostuitko? Ota yhteyttä ja tule tutustumaan!
Toimitilavälityspalvelumme on tilanhakijalle maksuton.
Katutasossa:
Avara 308 m² tila, ihanteellinen kirpputorille, harrastustoimintaan tai esimerkiksi tanssi- ja joogastudioksi sekä lasten kerhoille.
Toimistotilat:
2. kerros: 216 m² ja 271 m²
3.–5. kerros: tiloja alkaen 76 m²
6. kerros: vapautumassa 487 m² kokonaisuus
Kaikissa toimistotiloissa on jäähdytys, kohtuullinen vuokra ja mahdollisuus toteuttaa sekä monitila- että huonetoimistoratkaisuja. Tilat sopivat myös väistötiloiksi.
Huomioithan, että tämän kohteen vuokrasopimus voi olla voimassa toistaiseksi 3 kk:n irtisanomisajalla.
Sijainti – Erinomainen saavutettavuus
Toimitilat sijaitsevat Pukinmäen juna-aseman ja Kehä I:n välittömässä läheisyydessä.
Juna-asemalle: 200 m
Linja-autopysäkille: 80 m
Lentoasemalle: alle 12 km
Junat kulkevat Pukinmäestä 10 minuutin välein Helsingin keskustaan ja lentokentälle. Kehä I:n bussiyhteydet vievät kätevästi sekä länteen että itään aina Otaniemeen ja Itäkeskukseen saakka. Helppo tulla myös autolla, pyörällä tai jalan.
Palvelut
Autopaikkoja vuokrattavissa
Lukittu pyörävarasto
Pukuhuoneet ja suihkut pyöräilijöille ja lenkkeilijöille
Vuokralaisten käytössä sauna- ja vapaa-ajantila
Ota yhteyttä
Kiinnostuitko? Ota yhteyttä ja tule tutustumaan!
Toimitilavälityspalvelumme on tilanhakijalle maksuton.
Vapautuu
Kysy
Kerros
1-6
Ota yhteyttä
Logistila Oy
Kylätie 11-13, 00320 HELSINKI
Karoliina Turppo
Näytä puhelinnumero
050 345 3258
Pyydä lisätietoa
