Vuokrataan liiketilat - Espoo
Business Park Safiiri, Puolikkotie 8, Matinkylä, 02230 Espoo #10848355
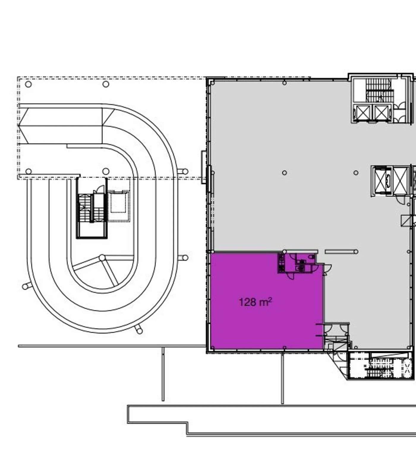
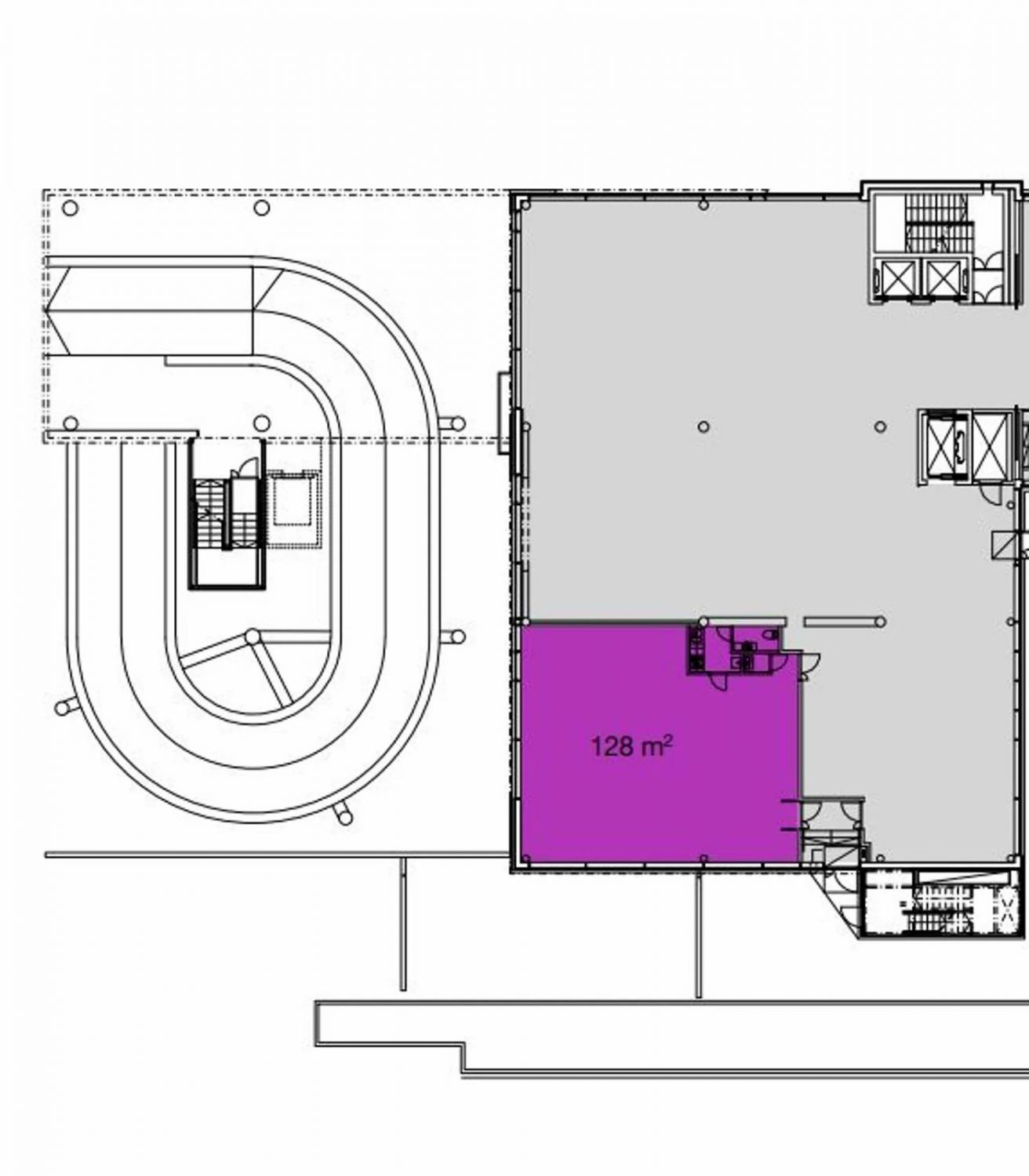
Vuokrattavana katutason liiketila 128m2 Business Park Safiirissa Iso Omenan kupeessa Länsiväylän varrella. Huoneistossa on iso avotila sekä 2 pientä huonetta, kk ja wc. Business Park hyvät palvelut ovat käytettävissä. SOITA ja SOVI ESITTELY. puh. 09-77 45 100.
Osoite
Puolikkotie 8, 02230 Espoo
Tilatyyppi
Liiketilaa
128 m2
Pohjapiirros
Kiinteistö
Business Park Safiiri on moderni toimitilakiinteistö aivan Iso Omenan kupeessa Länsiväylän varrella. Kohteen ensimmäinen vaihe on valmistunut vuonna 2012 ja toinen vuonna 2013. Kiinteistölle on myönnetty myös LEED Core and Shell- sekä Gold-luokan ympäristösertifikaatit.
Sijainti
Iso Omenan vieressä.
Ympäristö
Business Park Safiiri sijaitsee aivan kauppakeskus Iso Omenan vieressä. Iso Omenan palvelutarjontaan kuuluvat mm. lukuisat lounasravintolat ja kahvilat, päivittäistavarakaupat, vaateliikkeet, elokuvateatteri sekä hyvinvointi-, terveys- ja kuntosalipalvelut.
Pysäköinti
Parkkipaikkoja on talon omassa lämpimässä parkkihallissa ja sisäpihalla. Parkkihallista löytyy sähköauton latauspisteitä, ja siellä on myös varaus valmiina, mikäli vuokralainen haluaa hankkia oman latauslaitteen. Sisäpihalle on myös tulossa latauspisteitä.
Työmatkapyöräilijät voivat jättää pyöränsä työpäivän ajaksi pyöräparkkiin. Safiirista löytyvät myös suihku- ja pukuhuonetilat.
Työmatkapyöräilijät voivat jättää pyöränsä työpäivän ajaksi pyöräparkkiin. Safiirista löytyvät myös suihku- ja pukuhuonetilat.
Palvelut
Henkilöstöravintola, vuokrattavat neuvottelutilat, kuntosali sekä aulapalvelu.
Kulkuyhteydet
Länsimetro
Vapautuu
Heti
Rakennusvuosi
2012 - 2013
Katutasossa
Näkyvällä paikalla
Ota yhteyttä
Senaatin Notariaatti Oy LKV
Lämmittäjänkatu 4 A
FIN-00880 Helsinki
Tel:
Näytä puhelinnumero
+358 9 7745 100
Pyydä lisätietoa
