Vuokrataan toimistotilat - Helsinki
Panimokatu 2, Helsinki, Suomi, Kalasatama, 00580 Helsinki #10848349
Kalasataman Trooli on moderni toimistokohde, joka sijaitsee erinomaisella sijainnilla Kalasataman ja Teurastamon solmukohdassa. Oivallinen sijainti Itäväylän kupeessa, vain viiden minuutin kävelymatkan päässä Kalasataman metrosta takaa helpon saapumisen niin omalla autolla kuin julkisilla kulkuvälineillä. Troolissa on helppoa viihtyä, sillä kiinteistöä on uudistettu kokonaisvaltaisesti vuosien 2023–2024 aikana.
Osoite
Panimokatu 2, Helsinki, Suomi, 00580 Helsinki
Tilatyyppi
Toimistotilaa
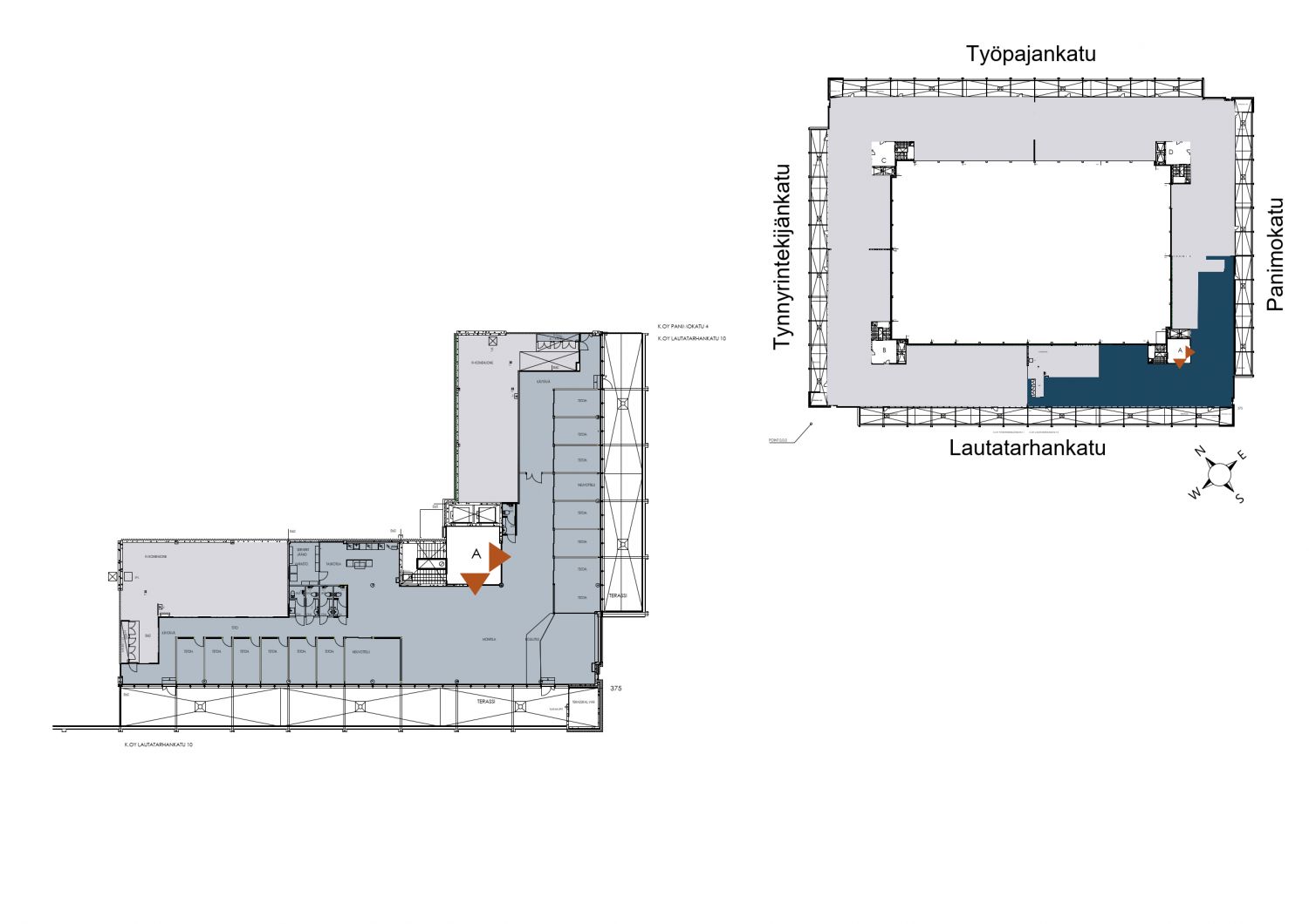
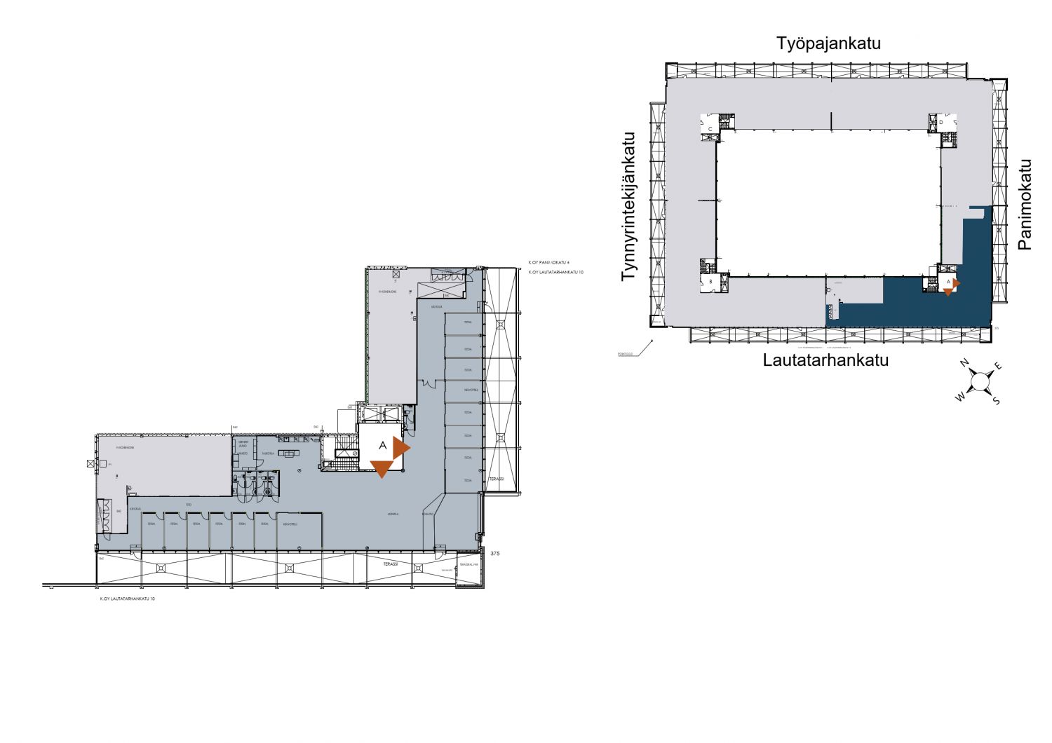
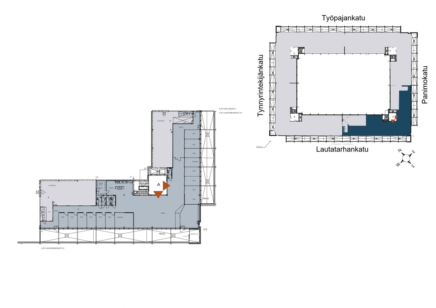
624 m2
Kiinteistö
Kalasataman Trooli
Ympäristö
Bussipysäkki: 50 m, Metroasema: 500 m, Raitiovaunupysäkki: 500 m, Juna-asema: 3,2 km, Lentoasema: 16,5 km
Pysäköinti
Saatavilla
Kulkuyhteydet
Valokuitu
Muuta
Moderni remontoitu toimistotila, jossa on upeimmat puitteet! Tässä toimistotilassa on kaikki, neuvottelutilat ja avotilaa, sekä yksittäisiä huoneita. Upeat terassitilat, joista näkymät suoraan Suvilahteen.
Tervetuloa tutustumaan tilaan!
Kalasataman Trooli on moderni toimistokohde, joka sijaitsee erinomaisella sijainnilla Kalasataman ja Teurastamon solmukohdassa. Oivallinen sijainti Itäväylän kupeessa, vain viiden minuutin kävelymatkan päässä Kalasataman metrosta takaa helpon saapumisen niin omalla autolla kuin julkisilla kulkuvälineillä. Troolissa on helppoa viihtyä, sillä kiinteistöä on uudistettu kokonaisvaltaisesti vuosien 2023–2024 aikana.
Tervetuloa tutustumaan tilaan!
Kalasataman Trooli on moderni toimistokohde, joka sijaitsee erinomaisella sijainnilla Kalasataman ja Teurastamon solmukohdassa. Oivallinen sijainti Itäväylän kupeessa, vain viiden minuutin kävelymatkan päässä Kalasataman metrosta takaa helpon saapumisen niin omalla autolla kuin julkisilla kulkuvälineillä. Troolissa on helppoa viihtyä, sillä kiinteistöä on uudistettu kokonaisvaltaisesti vuosien 2023–2024 aikana.
Vapautuu
Kysy
Rakennusvuosi
2002
Kerros
6
Energiatehokkuusluokka
C2018
Ota yhteyttä
LähiTapiola Kiinteistövarainhoito Oy
Anne-Mari Ijäs
Vuokrauspäällikkö
Näytä puhelinnumero
040 415 4137
Pyydä lisätietoa
