Vuokrataan toimistotilat - Tampere
Biokatu 10, 33520 Tampere #10848312
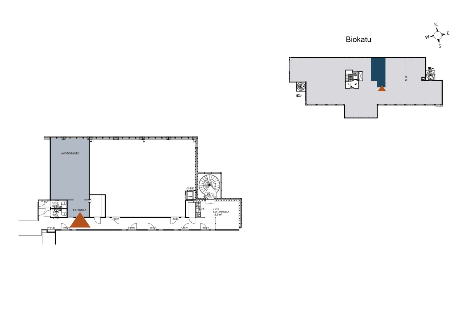
Vuokrattavana toimistotila 51 m2 3. kerroksessa. Toimitilaan on käynti yhteiskäytävältä. Käytävän varrella olevien yritysten käytössä on kaksi yhteiskäyttöistä keittiötilaa, taukotila, WC:t sekä varattava neuvottelutila. Kalusteet on mahdollista vuokrata erikseen.
Lisätietoja numerosta 020 7290 710. Lisää kohteita osoitteessa www.premises.fi.
Energialuokka F2007.Kerros: 3
Osoite
Biokatu 10, 33520 Tampere
Tilatyyppi
Toimistotilaa
51 m2
Ota yhteyttä
CRE PREMISES
Puh. Näytä puhelinnumero 020 7290 710
Vantaankoskentie 14
01670 VANTAA
Pyydä lisätietoa
