Vuokrataan toimistotilat - Oulu
Aapistie 1, 90220 Oulu #10848308
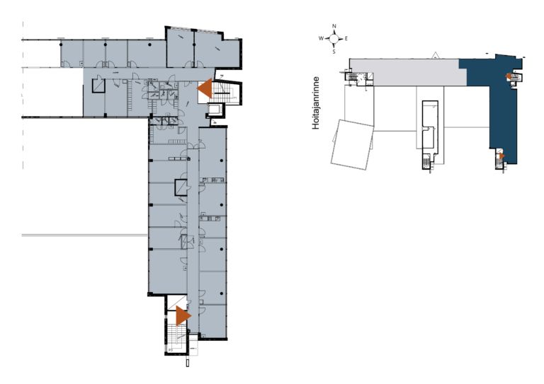
Vuokrataan Oulun Kotinkankaan sairaala-alueelta 4. kerroksen toimistotila. Tarjolla tehokas ja muunneltava toimistotila yhteensä 457 m2. Pohjaratkaisu on toimiva yksittäisiin tiimityöskentelyihin tai muokattavissa yrityksen tarpeiden mukaisesti.
Lisätietoja numerosta 020 7290 710. Lisää kohteita osoitteessa www.premises.fi.
Energialuokka E2013Kerros: 4
Osoite
Aapistie 1, 90220 Oulu
Tilatyyppi
Toimistotilaa
457 m2
Ota yhteyttä
CRE PREMISES
Puh. Näytä puhelinnumero 020 7290 710
Vantaankoskentie 14
01670 VANTAA
Pyydä lisätietoa
