Vuokrataan liiketilat - Helsinki
Simonkatu 9, Kamppi, 00100 Helsinki #10848306
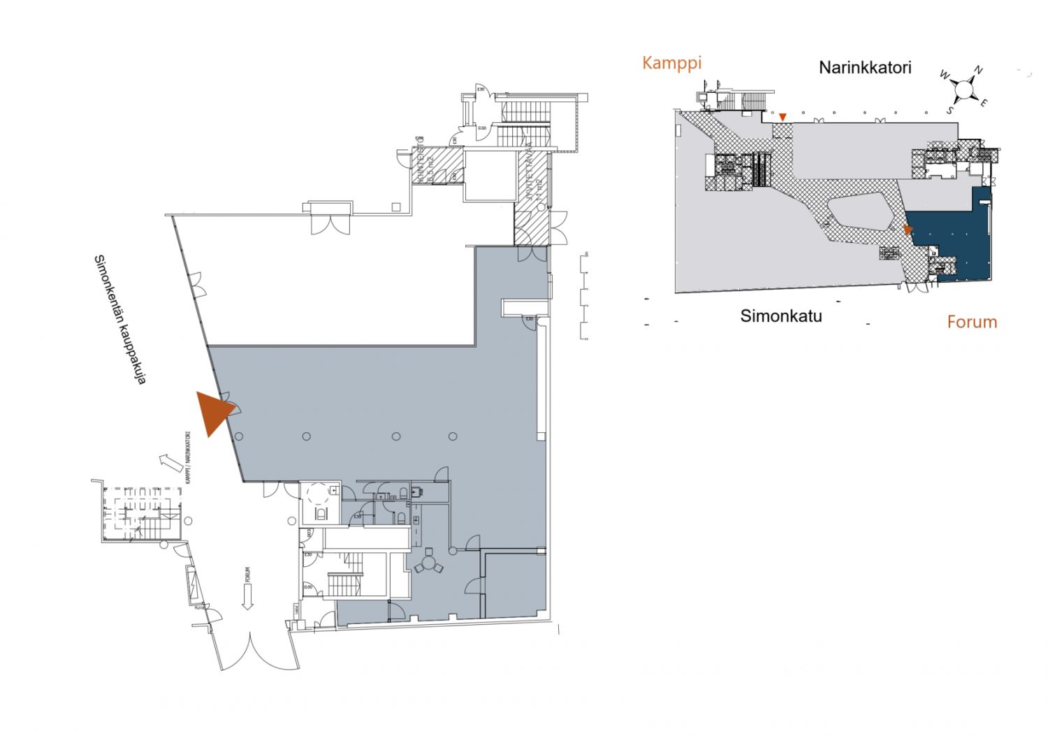
Vuokrataan Simonkentän uudistuvalta Kauppakujalta liiketiloja. Ohessa havainnollistavia kuvia uudistuvasta kauppakäytävästä.
Erinomaiset kulkuyhteydet ja palvelut ydinkeskustan alueella.
Lisätietoja 020 7290 710. Lisää kohteita www.premises.fi
Energialuokka E2007.Kerros: 1
Osoite
Simonkatu 9, 00100 Helsinki
Tilatyyppi
Liiketilaa
266 m2
Kulkuyhteydet
Erinomaiset liikenneyhteydet julkisilla Helsingin keskustasta. Metro, raitiovaunu, junat ja bussit alle 500 metrin päässä.
Ota yhteyttä
CRE PREMISES
Puh. Näytä puhelinnumero 020 7290 710
Vantaankoskentie 14
01670 VANTAA
Pyydä lisätietoa
