Vuokrataan toimistotilat, toimistohotelli - Oulu
Isokatu 56, 90100 Oulu #10848215
Vuokrataan aivan ydinkeskustan tuntumasta siisti 2.kerroksen toimistohuoneisto!
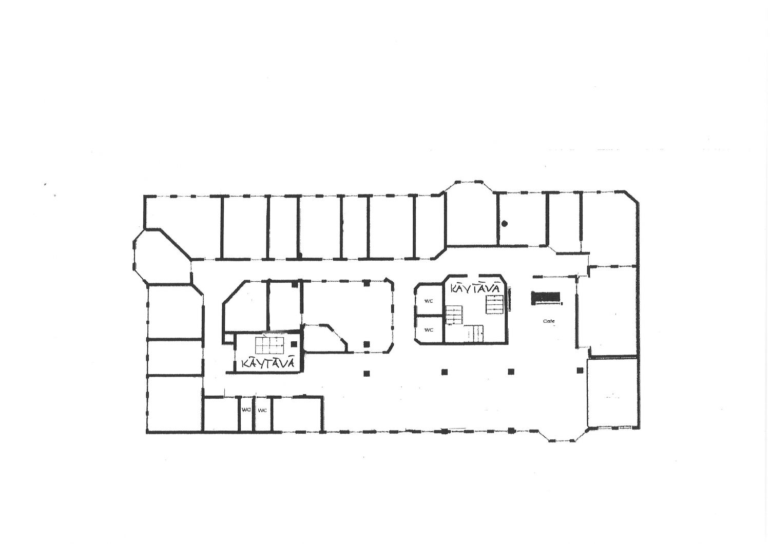
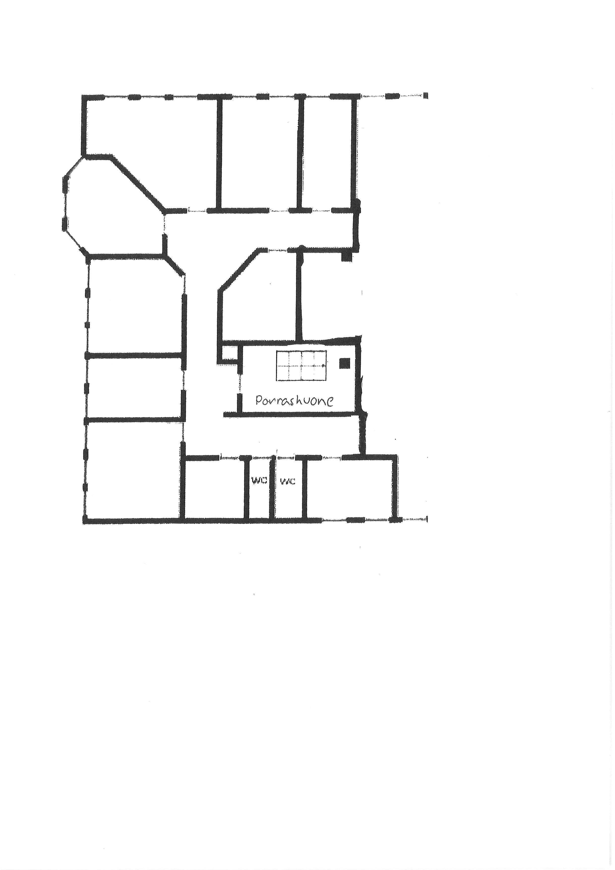
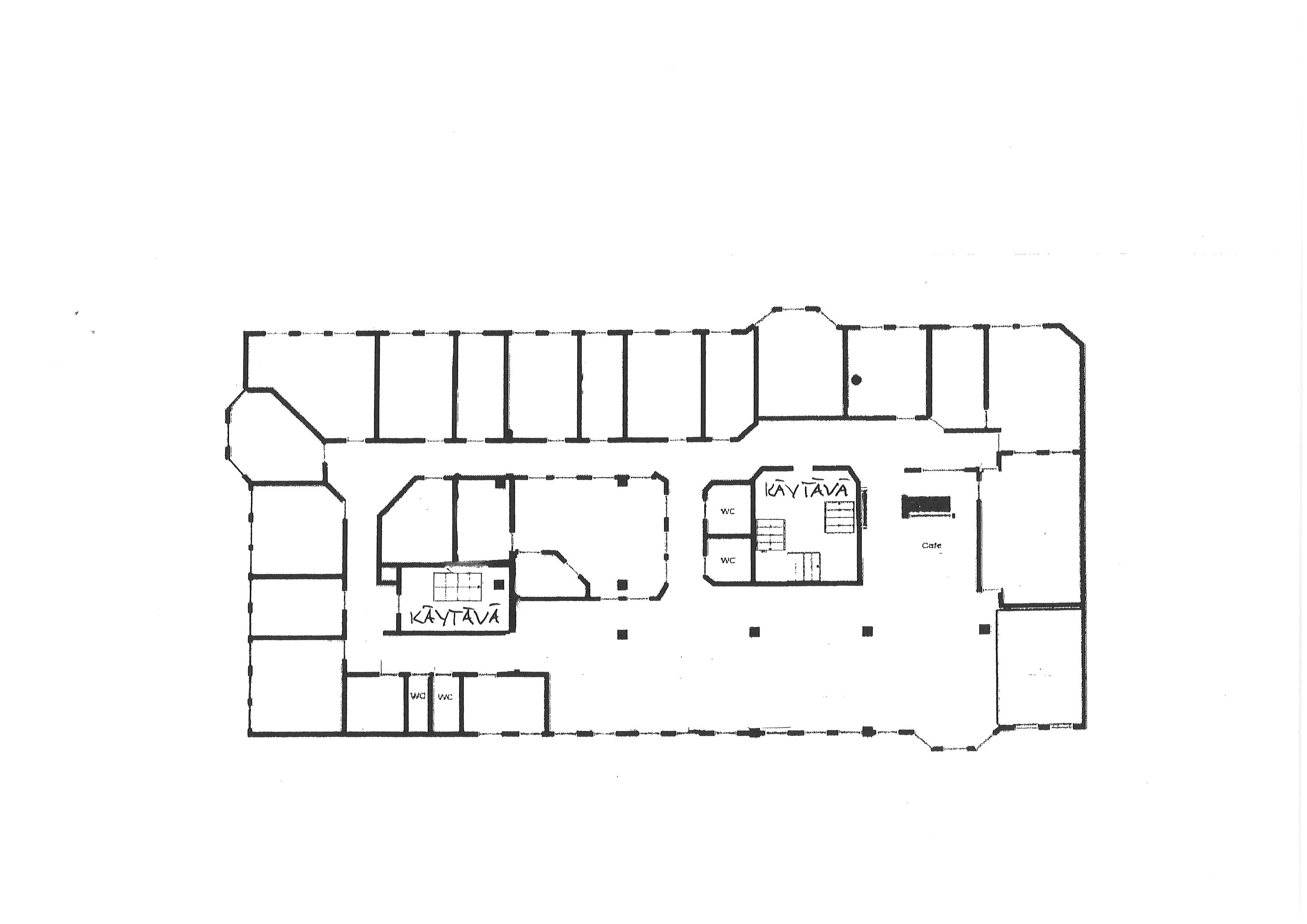
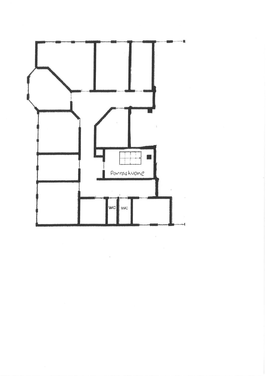
Koko kerroksen huoneisto takaa oman rauhansa. Sisäänkäyntejä voi olla kahdelta sivulta. Valmiina runsaasti huoneita ja avotilaa.
Osoite
Isokatu 56, 90100 Oulu
Tilatyyppi
Toimistotilaa
230 - 730 m2
Toimistohotelli
730 m2
Yhteensä
230 - 730 m2
Pohjapiirros
Vuokra
12,00€/m² + alv, lisäksi käyttösähkö ja vesi
Vuokraan sisältyy lämpö
Sijainti
Ydinkeskustan tuntumassa kulmikkain Technopoliksen kanssa
Pysäköinti
Saatavana ainakin 3 hallipaikkaa, 80€/kk/kpl +alv
Palvelut
Ydinkeskustan
Kulkuyhteydet
Bussit Torikatua ja Saaristonkatua pitkin
Muuta
Huoneistoa voidaan modifioida asiakkaan toiveiden mukaan ja tarpeen mukaan myös remontoida
Vapautuu
Kuukauden kuluttua vuokrasopimuksen allekirjoituksesta
Kerros
2 / 4
Huoneiden lukumäärä
20
Energiatehokkuusluokka
D2018
E-luku
251 kWhE/m²/vuosi
Näkyvällä paikalla
Ota yhteyttä
Pohjois-Suomen Toimitilat Oy
Harjapäänkatu 33, 90400 Oulu
Pekka Valkola
Näytä puhelinnumero
044 311 0555
Pyydä lisätietoa
