Vuokrataan toimistotilat - Helsinki
Valimotie 16, Pitäjänmäki, 00380 Helsinki #10848206
Täysin peruskorjattu ja vuokralaisen toiveiden mukaan viimeisteltävä toimistotila!
Osoite
Valimotie 16, 00380 Helsinki
Tilatyyppi
Toimistotilaa
746 m2
Kiinteistö
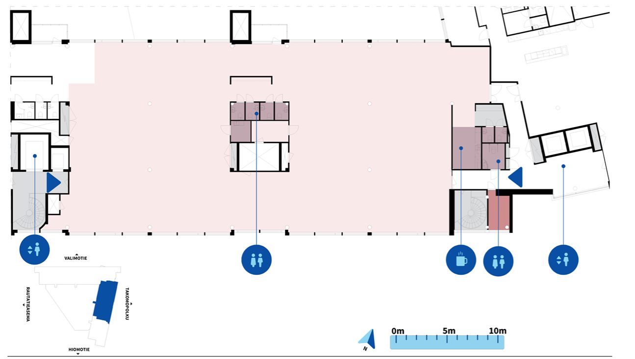
Kiinteistö on läpikäynyt kattavan peruskorjauksen, ja tila viimeistellään vuokralaisen toiveiden mukaan. Kokonaisuus on tarvittaessa jaettavissa kahteen osaan, 403 m² ja 343 m².
Valoisa toimistotila avautuu kahteen suuntaan, tarjoten runsaasti ikkunoita Takomopolulle sekä näkymän yli kattomaiseman. Pohjaratkaisu koostuu pääosin avotilasta, ja käytössä on oma keittiö sekä useita WC-tiloja, mukaan lukien inva-wc. Hissi sijaitsee kätevästi tilan sisäänkäynnin läheisyydessä.
Tyylikkäästi saneerattu täyden palvelun kiinteistö tarjoaa erinomaiset mukavuudet: oman lounasravintolan, aulapalvelun, näyttävät saunatilat kattoterassilla sekä runsaasti kokoustiloja. Sijainti Valimon juna-aseman välittömässä läheisyydessä takaa sujuvat kulkuyhteydet.
Sijainti on loistava – Valimon juna-asema on aivan vieressä, joten kulkuyhteydet ovat erinomaiset!
Tule katsomaan paikan päälle! Varaa oma esittelyaikasi välittäjältä – ja muista, että tilanhakijalle palvelumme on täysin veloitukseton! Jos tämä tila ei ole juuri se oikea, autamme mielellämme löytämään sopivamman vaihtoehdon.
Valoisa toimistotila avautuu kahteen suuntaan, tarjoten runsaasti ikkunoita Takomopolulle sekä näkymän yli kattomaiseman. Pohjaratkaisu koostuu pääosin avotilasta, ja käytössä on oma keittiö sekä useita WC-tiloja, mukaan lukien inva-wc. Hissi sijaitsee kätevästi tilan sisäänkäynnin läheisyydessä.
Tyylikkäästi saneerattu täyden palvelun kiinteistö tarjoaa erinomaiset mukavuudet: oman lounasravintolan, aulapalvelun, näyttävät saunatilat kattoterassilla sekä runsaasti kokoustiloja. Sijainti Valimon juna-aseman välittömässä läheisyydessä takaa sujuvat kulkuyhteydet.
Sijainti on loistava – Valimon juna-asema on aivan vieressä, joten kulkuyhteydet ovat erinomaiset!
Tule katsomaan paikan päälle! Varaa oma esittelyaikasi välittäjältä – ja muista, että tilanhakijalle palvelumme on täysin veloitukseton! Jos tämä tila ei ole juuri se oikea, autamme mielellämme löytämään sopivamman vaihtoehdon.
Vapautuu
Heti
Kerros
4 / 7
Energiatehokkuusluokka
Ei lain edellyttämää energiatodistusta
Ota yhteyttä
Comreal Oy LKV
Ville Laitinen
Näytä puhelinnumero
+358 40 663 8767
P.
Näytä puhelinnumero
020 744 1000
Läkkisepänkuja 6, 00620 Helsinki
Comreal Oy on kasvava ja osaava kiinteistöalan palveluntuottaja kiinteistöjen omistajille ja käyttäjille.
Kiinteistö on sijoittajalle hyvä sijoitus vain, jos siellä on tyytyväiset asiakkaat, eli vuokralaiset. Siksi laadukas asiakaspalvelu on toiminnan lähtökohta.
Pyydä lisätietoa
