Vuokrataan toimistotilat - Helsinki
Salomonkatu 17, Kamppi, Kamppi, 00100 Helsinki #10848191
Osoite
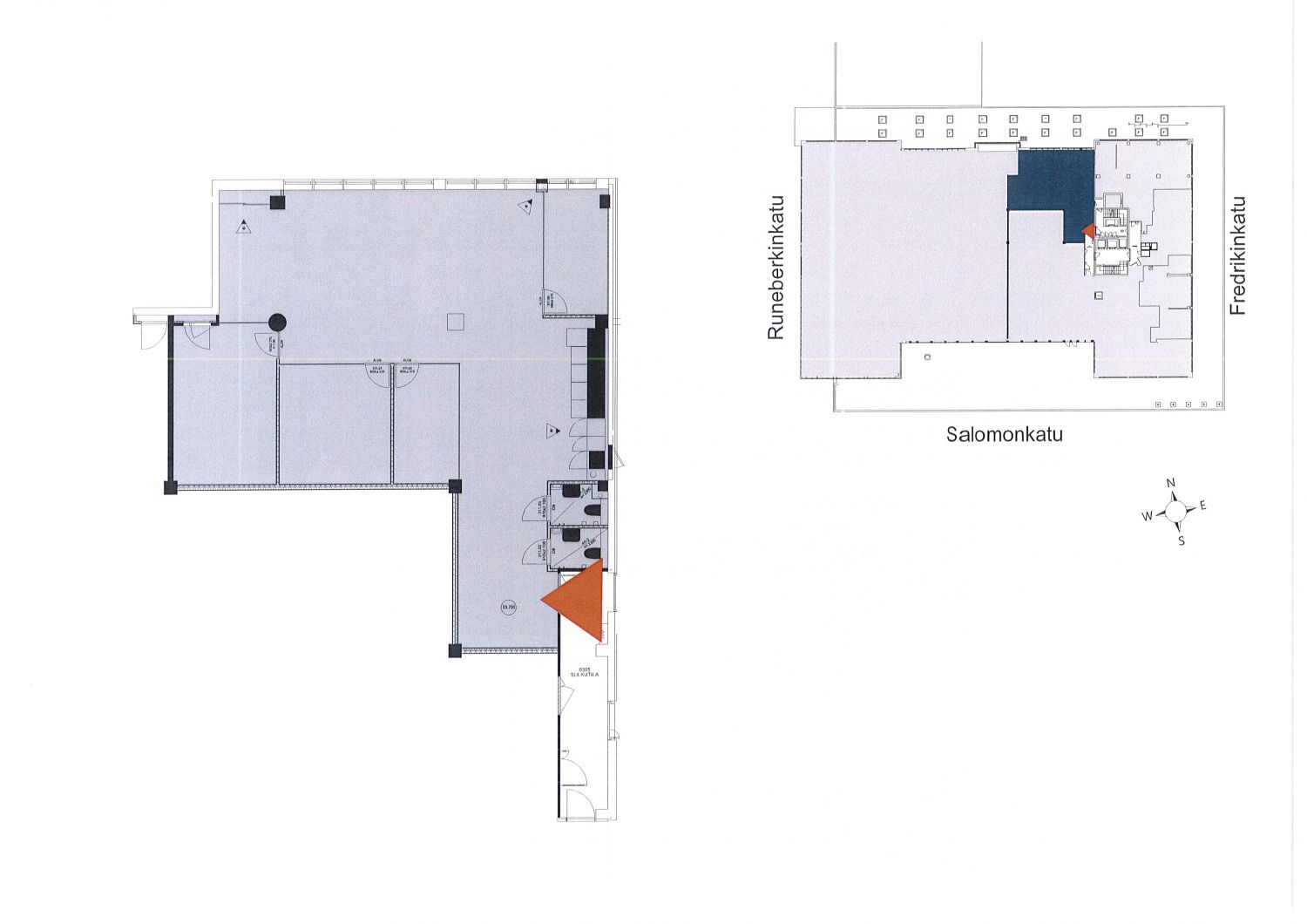
Salomonkatu 17, Kamppi, 00100 Helsinki
Tilatyyppi
Toimistotilaa
162 m2
Kiinteistö
Vuokrataan Autotalosta 3. kerroksen huonetoimisto 162 m².
Jäähdyttävä ilmastointi, valokuitu.
Jäähdyttävä ilmastointi, valokuitu.
Sijainti
Kiinteistö sijaitsee keskeisimmällä paikalla Helsingin Kampissa. Kohteeseen on erinomaiset liikenneyhteydet erityisesti julkisilla kulkuvälineillä.
Pysäköinti
Yksityisautoille on maanalaista pysäköintitilaa korttelin omassa autohallissa. Pyöräilijöille on siisti, lämmin pyöräparkki sekä sosiaalitilat suihkuineen.
Palvelut
Autotalon alakerrassa on kattava ravintolamaailma ja Kampin monipuoliset palvelut sijaitsevat kävelyetäisyydellä.
Kulkuyhteydet
Metroasema 100 m
Raitiovaunupysäkki 200 m
Bussipysäkki alle 100 m
Juna-asema 800 m
Lentoasema 19,4 km
Raitiovaunupysäkki 200 m
Bussipysäkki alle 100 m
Juna-asema 800 m
Lentoasema 19,4 km
Vapautuu
Heti
Rakennusvuosi
1958
Saneerausvuosi
2015
Kerros
3 / 13
Energiatehokkuusluokka
E2013
Näkyvällä paikalla
Hissi
Ota yhteyttä
Comreal Oy LKV
Tuula Leikas
Näytä puhelinnumero
040 531 3722
P.
Näytä puhelinnumero
020 744 1000
Läkkisepänkuja 6, 00620 Helsinki
Comreal Oy on kasvava ja osaava kiinteistöalan palveluntuottaja kiinteistöjen omistajille ja käyttäjille.
Kiinteistö on sijoittajalle hyvä sijoitus vain, jos siellä on tyytyväiset asiakkaat, eli vuokralaiset. Siksi laadukas asiakaspalvelu on toiminnan lähtökohta.
Pyydä lisätietoa
