Vuokrataan toimistotilat - Helsinki
Fredrikinkatu 48, Kamppi, 00100 Helsinki #10848180
Vapautumassa noin puolet kerroksesta 7. (264m2) sekä ylemmät kerrokset 8. ja 9. kokonaan. Yhteensä noin 1250m2. Näkymät upeat ja tilat muuntojoustavia! Kiinteistö on käynyt läpi perusteellisen korjaushankkeen, jossa sen toimitiloja on avarrettu ja tehty avotiloiksi soveltuviksi.
Ota yhteyttä ja sovi esittely, vuokrauspalvelumme on tilanhakijoille maksuton.
Osoite
Fredrikinkatu 48, 00100 Helsinki
Tilatyyppi
Toimistotilaa
1250 m2
Sijainti
Kamppi
Pysäköinti
Oma autohalli suoralla hissiyhteydellä ja pyöräparkki sekä suihkutilat pyöräilijöille.
Palvelut
Kampin kauppakeskus 150 metriä.
Kulkuyhteydet
Metron, keskusbussiaseman ja useiden raitiovaunulinjojen vieressä sekä juna-asema kävelymatkan päässä.
Vapautuu
Heti
Rakennusvuosi
1962
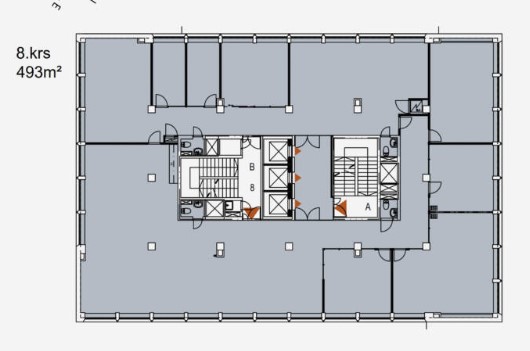
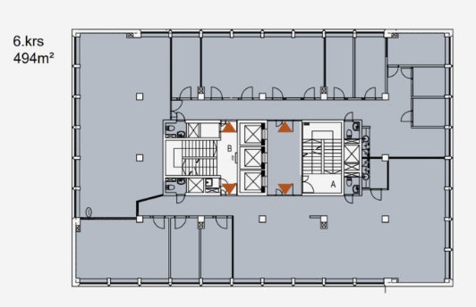
Kerros
7-9 / 11
Energiatehokkuusluokka
F2007
Näkyvällä paikalla
Hissi
Ota yhteyttä
Senaatin Notariaatti Oy LKV
Lämmittäjänkatu 4 A
FIN-00880 Helsinki
Tel:
Näytä puhelinnumero
+358 9 7745 100
Pyydä lisätietoa
