Vuokrataan toimistotilat - Helsinki
Salomonkatu 17, Kamppi, 00100 Helsinki #10848163
Vuokrataan upea monitilatoimisto B tornissa, kiinteistön 3:sta kerroksesta. Ota yhteyttä ja sovi esittely, vuokrauspalvelumme on tilanhakijoille maksuton.
Osoite
Salomonkatu 17, 00100 Helsinki
Tilatyyppi
Toimistotilaa
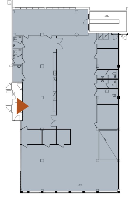
534 m2
Pohjapiirros
Kiinteistö
Kiinteistö Helsingin Autotalo peruskorjattu ja talotekniikka uudistettu.
Sijainti
Kamppi
Pysäköinti
Oma autohalli ja pyöräparkki.
Palvelut
Kampin kauppakeskus 150 metriä.
Kulkuyhteydet
Metron, keskusbussiaseman ja useiden raitiovaunulinjojen vieressä sekä juna-asema kävelymatkan päässä.
Vapautuu
Heti
Rakennusvuosi
1958
Saneerausvuosi
2015
Kerros
3 / 13
Energiatehokkuusluokka
E2013
Näkyvällä paikalla
Hissi
Ota yhteyttä
Senaatin Notariaatti Oy LKV
Lämmittäjänkatu 4 A
FIN-00880 Helsinki
Tel:
Näytä puhelinnumero
+358 9 7745 100
Pyydä lisätietoa
