Vuokrataan toimistotilat - Espoo
Länsituulentie 1, Tapiola, 02100 Espoo #10848155
Vuokrataan toimistotilaa esim. väliaikaiseen tarpeeseen. Vapautuu 1.1.2026. Vuokrasopimus voi olla voimassa vähintään elokuun 2026 loppuun.
Osoite
Länsituulentie 1, 02100 Espoo
Tilatyyppi
Toimistotilaa
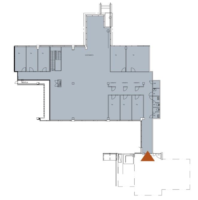
404 m2
Pohjapiirros
Kiinteistö
Länsikulma sijaitsee Tapiolan keskuksen ytimessä. Kiinteistössä toimivat mm. kuntosali, hammaslääkäriasema ja vuokrattavissa on mm. saunatilaa. Kellarissa on tarjolla vuokrattavia pienvarastotiloja.
Sijainti
Tapiola
Pysäköinti
Kiinteistössä on mahdollisuus vuokrata hallipaikkoja Tapiolan Paikotukselta.
Palvelut
Lähistöllä kauppakeskus AINOAn monipuoliset palvelut ovat helposti saavutettavissa sujuvoittamaan arkea.
Kulkuyhteydet
Länsikulmaan on erinomaiset julkiset liikenneyhteydet; lähin bussipysäkki on 100 metrin päässä ja metroasemalle on 300 metrin kävelymatka. Lentokentälle hurauttaa autolla alle puolessa tunnissa ja Helsingin keskustaan reilussa kymmenessä minuutissa. Lisäksi kiinteistö on erinomaisen pyörätieverkoston varrella, tuletpa mistä suunnasta tahansa.
Vapautuu
Heti
Rakennusvuosi
1985
Kerros
2
Energiatehokkuusluokka
C2018
Ota yhteyttä
Senaatin Notariaatti Oy LKV
Lämmittäjänkatu 4 A
FIN-00880 Helsinki
Tel:
Näytä puhelinnumero
+358 9 7745 100
Pyydä lisätietoa
