Vuokrataan toimistotilat - Espoo
Vanha Maantie 1, Leppävaara, 02650 Espoo #10848150
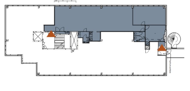
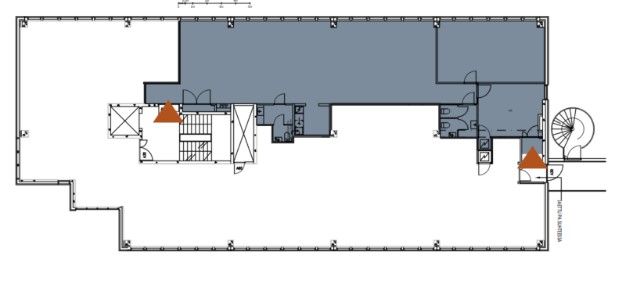
Vuokrataan siistikuntoista muuntojoustavaa toimistotilaa Sointu Business Parkin 4. kerroksessa, tila on tällä hetkellä huonekonttoria, mutta se on helposti muunneltavissa vuokralaisen toiveet ja tarpeet huomioiden myös avotoimistoksi (kts. kuvat). Sointu sijaitsee keskeisellä paikalla Leppävaarassa, kauppakeskus Galleriaa vastapäätä juna-aseman vieressä. Talossa on aulapalvelu, neuvottelutiloja, lounasravintola, saunaosasto katolla, kuntosali ja parkkihalli jossa myös sähkölatauspaikkoja.
Kiinteistö tunnettiin aiemmin Lähi-Vakuutusyhtiön pääkonttorina. Ota yhteyttä ja sovi esittely, vuokrauspalvelumme on tilanhakijoille ilmainen. Puh: 09 77 45 100.
Näkyvällä paikalla
Hissi
Senaatin Notariaatti Oy LKV
Lämmittäjänkatu 4 A
FIN-00880 Helsinki
Tel:
Näytä puhelinnumero
+358 9 7745 100
