Vuokrataan liiketilat, tuotantotilat, varastotilat - Kaarina
Krossinkatu 14, Krossi, 20780 Kaarina #10848078
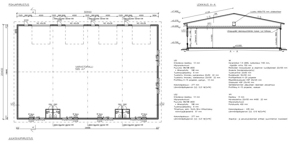
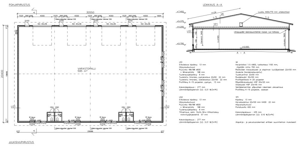
Sopimuksen mukaan tai viimeistään 1.2.2026 vapautuva toimitilahalli, joka soveltuu moneen käyttötarkoitukseen. Tila rakennuksen päätytila. Hallin korkeus 4 metriä. Sähkökäyttöinen nosto-ovi noin 3,9 metriä korkea ja 4 metriä leveä. Hallissa on lattiakaivo.
Tilassa on ilmalämpöpumppulämmitys. Yhdessä tiloista (150 m2) on valmiina toimistotilaa. Tilassa on viimeksi toiminut autokauppa, johon tila soveltuu erinomaisesti. Samassa pihassa toimii autoliike ja koukkupaja.
Tilojen yhteyteen on mahdollista saada lisähinnasta jopa + 20 autopaikkaa.
Ei korjaamo tai ei autopesula käyttöön.
RHG Real Estate
Hämeenkatu 2 B20, 20500 Turku
Juho Viljanen
LKV
Näytä puhelinnumero
040 741 7522
