Vuokrataan toimistotilat - Tampere
Biokatu 10, Kauppi, 33520 Tampere #10848074
Toimistotilaa Tampereen Kaupissa, TAYS:in alueella.
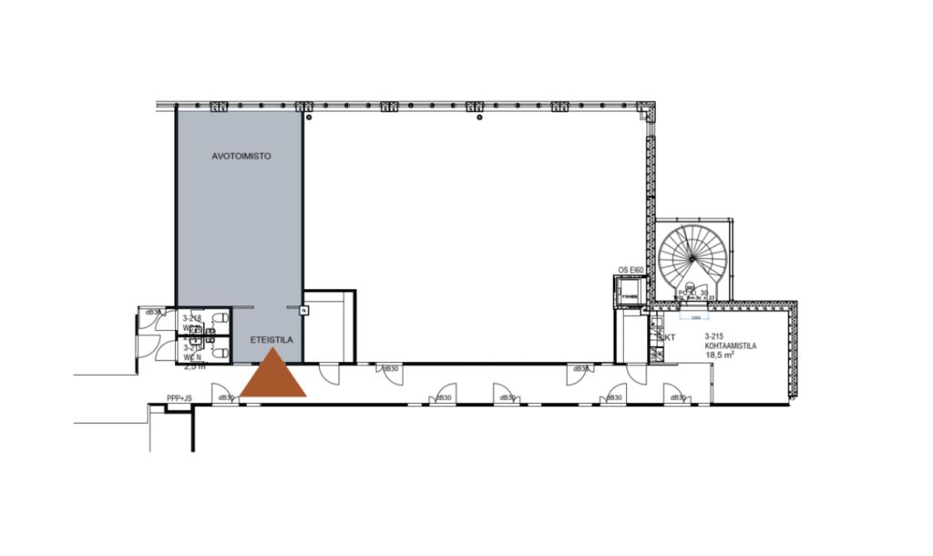
Tämä 51 m² avotoimistotila sijaitsee kiinteistön 3. kerroksessa. Käynti tilaan yhteiskäytävältä, käytävän varrella olevien yritysten käytössä on kaksi yhteiskäyttöistä keittiötilaa, taukotila, wc:t sekä varattava neuvottelutila.
Kiinteistö sijaitsee Kaupin kampusalueella lähellä Tampereen keskustaa hyvien liikkenneyhteyksien päässä. Alueella on yliopistollinen sairaala sekä suuri määrä terveys- ja hyvinvointialan toimijoita.
Kysy lisää numerosta 044 723 4700 tai info@bref.fi. Palvelumme on tilanhakijoille ilmainen.
Bureau Real Estate Finland Oy
Lars Sonckin kaari 16, 02600 Espoo
Näytä puhelinnumero
0447234700
Bureau Real Estate Finland Oy
https://www.bref.fi