Vuokrataan varastotilat - Helsinki
Hankasuontie 3, Konala, 00390 Helsinki #10848053
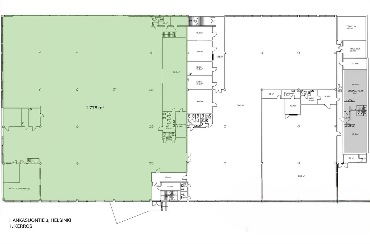
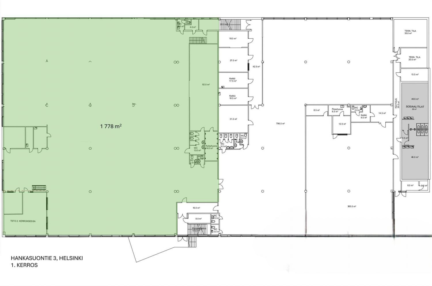
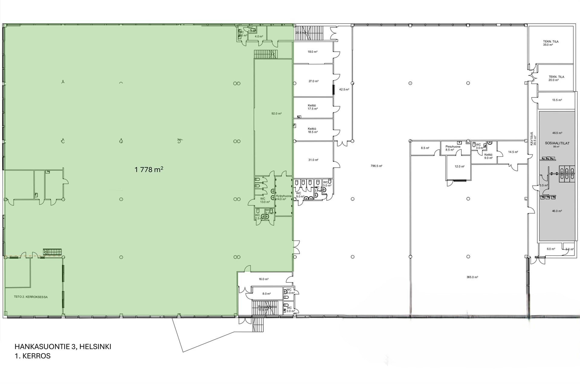
Nyt vuokrattavissa katutason varasto viiden metrin vapaalla korkeudella. Tilaan on erittäin hyvät kulku- ja lastausmahdollisuudet, mikä tekee arjen logistiikasta sujuvaa. Tila vuokrataan yhdessä toisen kerroksen kevytvarasto- tai toimistotilan kanssa, ja näiden tilojen välille on mahdollista toteuttaa tavarahissiyhteys tarpeen mukaan.
Tämä Konalassa, Hankasuontien erinomaisella paalupaikalla sijaitsevassa kiinteistössä tehdään kesän 2024 aikana laaja julkisivuremontti, joka kohentaa koko rakennuksen ilmettä ja nostaa sen edustavuutta merkittävästi. Samalla toteutetaan energiatehokkuushanke, jonka myötä tilojen ilmanvaihtoa parannetaan ja tehostetaan. Nämä uudistukset tekevät kiinteistöstä entistä modernimman ja paremmin nykyaikaisia vaatimuksia vastaavan.
Sijainti tarjoaa poikkeuksellisen hyvät mahdollisuudet näkyvyyteen ja mainontaan, sillä kiinteistö sijaitsee vilkkaalla paikalla ja erottuu selkeästi ympäristöstä. Pysäköintitilaa on runsaasti, mikä helpottaa sekä työntekijöiden että asiakkaiden asiointia. Rakennus sopii erinomaisesti monenlaiseen käyttöön, ja tilakokonaisuuksia voidaan muokata joustavasti vuokralaisen toiveiden mukaan.
Me Croisettella autamme teitä löytämään teille parhaat tilat! Olemme puolueettomia asiantuntijoita ja tunnemme toimitilamarkkinat, talot sekä tilat vankalla kokemuksella. Meillä on välityksessä kaikki toimitilat ja tiedämme niiden alustavat vuokratasot.
Tehtävämme on tehdä toimitilahaustanne onnistunutta ja helppoa. Saamme palkkiomme kiinteistönomistajalta, joten sinulle palvelumme on täysin maksuton. Jos kiinnostuit, ota yhteyttä sähköpostitse osoitteeseen vuokraus@croisette.fi tai soita numeroon +358 4 00585857.
Croisette Real Estate Partner
Erottajankatu 5 A 6, 00130 Helsinki
Näytä puhelinnumero
+358 400 585 857
Croisette Vuokraus
Näytä puhelinnumero
+358400585857
