Vuokrataan toimistotilat - Tampere
Finlaysoninkuja 19, Keskusta, 33210 Tampere #10847958
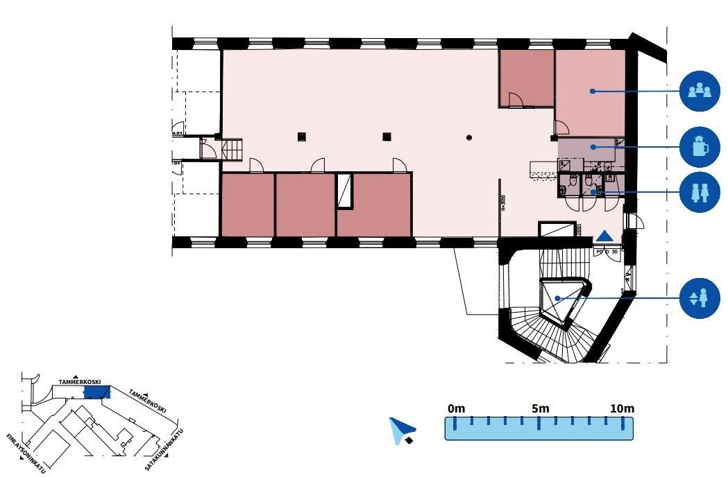
Läpitalon korkea ja avara toimisto, upea koskinäkymä, vapautuu 1.2.2026.
Tässä toimistotilassa on runsaasti ikkunoita kahteen suuntaan ja upeat koskimaisemat. Tilassa on oma taukokeittiö, neuvotteluhuone ja muutama työhuone sekä avotilaa. Kulku tiloihin hissillä tai portaita pitkin.
Perinteikäs Finlaysonin alue on vireä liike-elämän, vapaa-ajan ja kulttuuritapahtumien keskus, jossa toimivissa yli 100 yrityksessä työskentelee ja asioi päivittäin tuhansia ihmisiä. Alueen useat ravintolat ja kahvilat mahdollistavat maukkaat lounas- ja kahvihetket. Finlaysonin alueen vanhat tehdasrakennukset tarjoavat yrityksellesi uniikin toimintaympäristön Tammerkosken maisemissa. Alueen rakennukset ovat BREEAM In-Use -ympäristösertifioituja. Finlaysonin alue on helposti saavutettavissa omalla autolla, julkisin kulkuvälinein ja kevyellä liikenteellä. Keskustori ja rautatieasema ovat kävelymatkan etäisyydellä.
Lisätietoja Harri Talvitie, 041 314 7463, harri.talvitie@rhg.fi
Lisää kohteita www.rhg.fi
RHG Real Estate
Hämeenkatu 2 B20, 20500 Turku
Harri Talvitie
Toimitilavälittäjä
Näytä puhelinnumero
0413147463
