Vuokrataan liiketilat - Espoo
Nuijalantie 11-13, Nuijala, 02630 Espoo #10847949
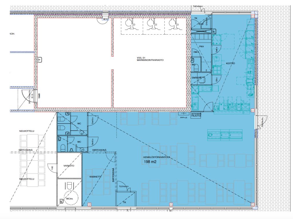
Ravintola-/liiketilaa Espoon Kilossa.
Tämä tila on kooltaan 197 m², ja se sijaitsee kiinteistön katutasossa. Tila koostuu ruokailusalista, kabinetista, varustellusta keittiötilasta sekä sosiaalitiloista. Tilaan on mahdollista toteuttaa myös muunlaista toimintaa, ja se voidaan remontoida myymälä-/liiketilakäyttöön.
Nuijalantie 11-13 on Turun moottoritien varrella sijaitseva toimisto-, tuotanto- ja varastokiinteistö. Kiinteistössä on koneellinen ilmanvaihto sekä CAT-6 kaapelointi.
Kysy lisää numerosta 044 723 4700 tai info@bref.fi. Palvelumme on tilanhakijoille ilmainen.
Bureau Real Estate Finland Oy
Lars Sonckin kaari 16, 02600 Espoo
Näytä puhelinnumero
0447234700
Bureau Real Estate Finland Oy
https://www.bref.fi