Vuokrataan toimistotilat - Helsinki
Säterintie 16, Pukinmäki, 00720 Helsinki #10847928
Säterintie 16 - Pientoimistoja 10,5 - 37,5 m²
Osoite
Säterintie 16, 00720 Helsinki
Tilatyyppi
Toimistotilaa
10 - 38 m2
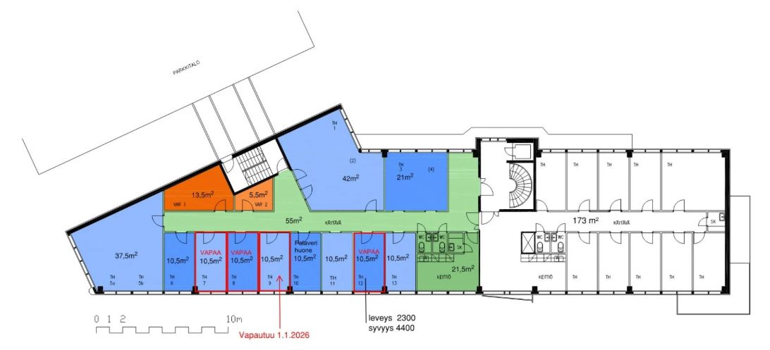
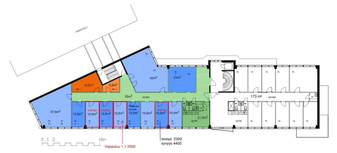
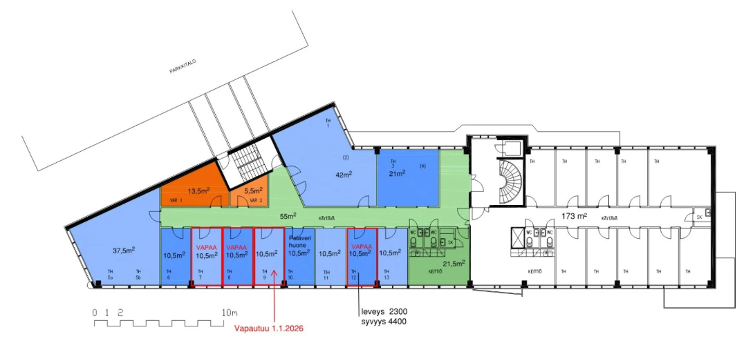
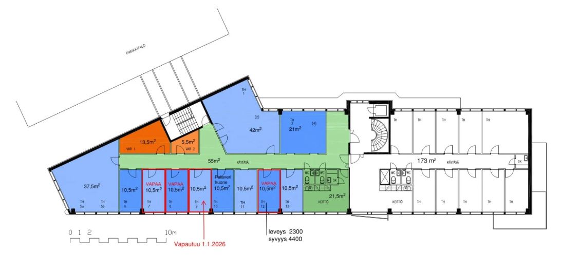
Pohjapiirros
Kiinteistö
Kiinteistön toisesta ja kolmannesta kerroksesta vuokrattavana pientoimistoja 10,5-11 m² ja 37,5 m². Tilat ovat valoisia, siistejä ja varustettu tuloilman jäähdytyksellä sekä koneellisella ilmanvaihdolla, mikä takaa miellyttävän työympäristön ympäri vuoden.
Kiinteistön on tarjolla myös pienvarastotilaa.
Säterintie 16 – Toimistotilaa hyvillä kulkuyhteyksillä
Sijainti – Erinomainen saavutettavuus
Pukinmäen juna-asema alle 400 m (junalla 10 min Helsingin keskustaan ja lentokentälle)
Linja-autopysäkki 50 m
Kehä I vieressä – nopeat yhteydet länteen, itään, Otaniemeen ja Itäkeskukseen
Lentoasema vain 12 km
Helppo saavutettavuus autolla ja pyörällä, lukollinen pyöräparkki käytettävissä
Palvelut
Valokuituyhteys nopeaan ja luotettavaan internetiin
Yhteiskäyttöiset neuvotteluhuoneet 2. ja 3. kerroksessa
Yhteiskeittiöt vuokralaisten käytössä
Pysäköinti: paikkoja vuokrattavissa viereisestä hallista ja kiinteistön pihalta
Ota yhteyttä
Kiinnostuitko? Ota yhteyttä ja tule tutustumaan!
Toimitilavälityspalvelumme on tilanhakijalle maksuton.
Kiinteistön on tarjolla myös pienvarastotilaa.
Säterintie 16 – Toimistotilaa hyvillä kulkuyhteyksillä
Sijainti – Erinomainen saavutettavuus
Pukinmäen juna-asema alle 400 m (junalla 10 min Helsingin keskustaan ja lentokentälle)
Linja-autopysäkki 50 m
Kehä I vieressä – nopeat yhteydet länteen, itään, Otaniemeen ja Itäkeskukseen
Lentoasema vain 12 km
Helppo saavutettavuus autolla ja pyörällä, lukollinen pyöräparkki käytettävissä
Palvelut
Valokuituyhteys nopeaan ja luotettavaan internetiin
Yhteiskäyttöiset neuvotteluhuoneet 2. ja 3. kerroksessa
Yhteiskeittiöt vuokralaisten käytössä
Pysäköinti: paikkoja vuokrattavissa viereisestä hallista ja kiinteistön pihalta
Ota yhteyttä
Kiinnostuitko? Ota yhteyttä ja tule tutustumaan!
Toimitilavälityspalvelumme on tilanhakijalle maksuton.
Vapautuu
Kysy
Kerros
2-3
Ota yhteyttä
Logistila Oy
Kylätie 11-13, 00320 HELSINKI
Karoliina Turppo
Näytä puhelinnumero
050 345 3258
Pyydä lisätietoa
