Vuokrataan toimistotilat, liiketilat, näyttelytilat, työtilat, muut tilat - Parainen
Tila 351 n.92 m², Rantatie 30, 21600 Parainen #10847891
VAPAUTUMASSA TOIMISTO, TYÖ- TAI LIIKETILAA 92M2 PARAISTEN KESKUSTASSA
Osoite
Rantatie 30, 21600 Parainen
Tilatyyppi
Toimistotilaa
92 m2
Liiketilaa
92 m2
Näyttelytilaa
92 m2
Työtilaa
92 m2
Muuta tilaa
92 m2
Yhteensä
92 m2
Tilajako
Monikäyttöistä tilaa n. 92 m² Paraisten keskustassa
Vuokra
799 eur/kk
Vuokraan sisältyy lämpö
Kiinteistö
Koy Paraisten Virastotalo
Sijainti
Paraisten ydinkeskustan tuntumassa
Ympäristö
Näkyvä ja tunnettu paikka
Pysäköinti
Rakennuksen edustalla runsaasti ilmaista pysäköintitilaa.
Palvelut
Kaikki Paraisten keskustan palvelut kävelymatkan päässä
Kulkuyhteydet
Hyvät joka suuntaan
Muuta
VAPAUTUMASSA TOIMISTO, TYÖ- TAI LIIKETILAA 92M2 PARAISTEN KESKUSTASSA
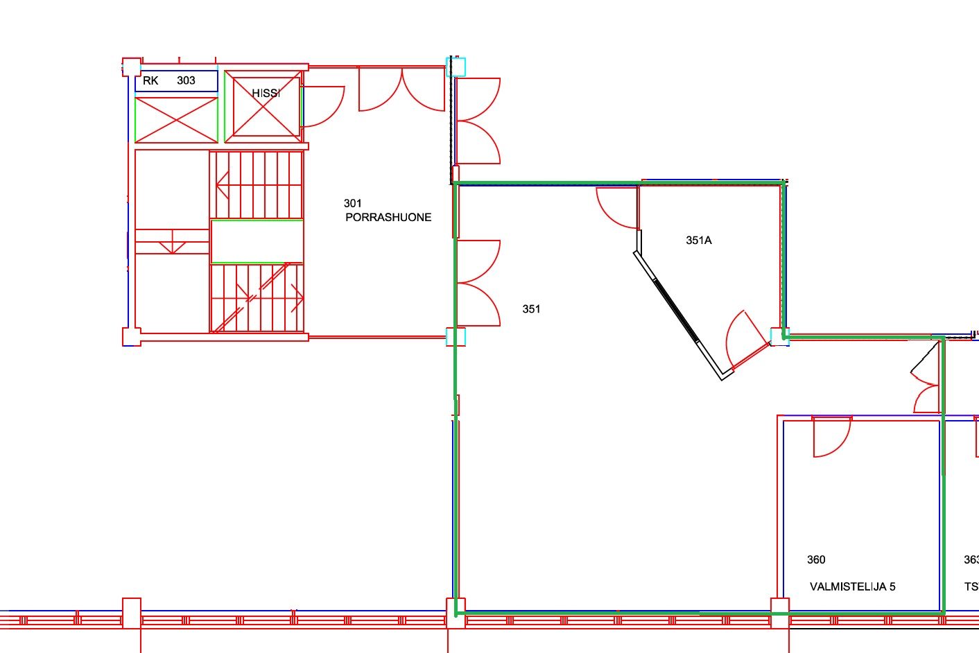
Tila nro 351
- Siistiä, vaaleaa ja valoisaa tilaa
- kulku tilaan porraskäytävä / hissi
- Vuokraan sisältyy lämmitys
- Vuokran lisäksi sähkö ja vesimaksu
- Yhteiskeittiö ja wc tilat yhteiskäytätävällä
- Mahdollisuus myös siivouspalveluun
- Mahdollista vuokrata myös ilman arvonlisäveroa
Tunnettu sijainti paraislaisille sekä helposti löydettävissä muualtakin tulleille.
Vuokrapyyntö
92m2 Koko tila 799€/kk+sähkö+vesi+alv
Pohjakuvaan rajattu vihreällä koko tila 92m2.
Normaalit sopimusehdot.
Luottotiedot tarkistetaan / takaaja.
Lisätiedot ja esittelyt:
Teemu Laaksonen
myynti@yritystiloja.fi
050-3738737
Tila nro 351
- Siistiä, vaaleaa ja valoisaa tilaa
- kulku tilaan porraskäytävä / hissi
- Vuokraan sisältyy lämmitys
- Vuokran lisäksi sähkö ja vesimaksu
- Yhteiskeittiö ja wc tilat yhteiskäytätävällä
- Mahdollisuus myös siivouspalveluun
- Mahdollista vuokrata myös ilman arvonlisäveroa
Tunnettu sijainti paraislaisille sekä helposti löydettävissä muualtakin tulleille.
Vuokrapyyntö
92m2 Koko tila 799€/kk+sähkö+vesi+alv
Pohjakuvaan rajattu vihreällä koko tila 92m2.
Normaalit sopimusehdot.
Luottotiedot tarkistetaan / takaaja.
Lisätiedot ja esittelyt:
Teemu Laaksonen
myynti@yritystiloja.fi
050-3738737
Vapautuu
1.4.2026 / sop.muk
Kerros
3 / 3
Näkyvällä paikalla
Hissi
Ota yhteyttä
A-Välitys
Teemu Laaksonen
myynti@yritystiloja.fi
Näytä puhelinnumero
050-3738737
Pyydä lisätietoa
